Lancing Road, City Centre
House with 3 bedrooms and 1 bathroom
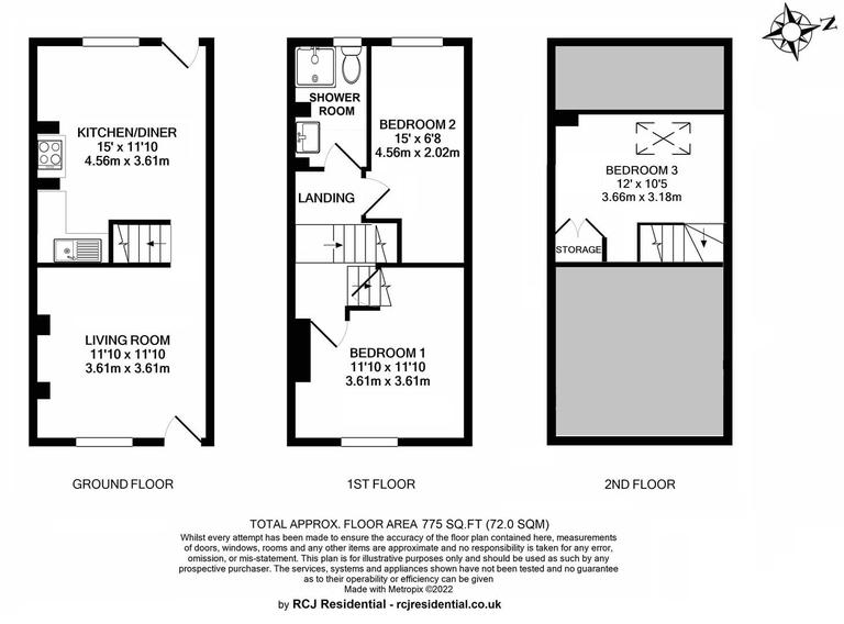
1 room available
Available from 1st July 2026
Bills included
We take the stress out of student living. All student homes have bills included!Plans and tours
Key features
Luxury 3 Bedroom Student Property
Spacious kitchen with dining table and modern appliances
Outdoor area for BBQs and socializing
Beautiful, modern bathroom
Prime location near Sheffield Hallam City Campus
Contents insurance included
Bills included
Location
Description
Exciting 3-Bedroom Student Pad Awaits You!
Welcome to your new student adventure in this stunning 3-bedroom home!
Key Highlights:
Whip up delicious meals in your large kitchen, complete with a dining table, dishwasher, and a washer dryer.
Enjoy the British summer with BBQs and al fresco dining in your lovely outdoor area. Relax in your lounge area after a day of studies.
There are 3 spacious bedrooms awaiting your personal touch. Freshen up in your beautiful, modern bathroom.
Just a stone's throw away from Sheffield Hallam City Campus, this location is perfect for students.
Our 3-bedroom properties are always in high demand. Don't wait – schedule a viewing now before it's gone!
Get ready for an incredible student experience – book your viewing today!
Availability
EPC rating
An Energy Performance Certificate (EPC) tells you how energy efficient a property is.
The details shown about this property are part of a property advertisement. UniHomes does not guarantee the accuracy or completeness of the advertisement or any related information, and has no control over its content. The advertisement does not serve as official property particulars. The information is provided and maintained by the Letting Agent. Please contact the agent directly if you have any queries about the information provided in the advertisement.
Lancing Road, City Centre
- House
- with 3 bedrooms
- and 1 bathroom
- 1 room available
Bills included
We take the stress out of student living. All student homes have bills included!£145 per person per week including bills
To arrange a viewing or find out more about this property .
If you need to contact the UniHomes Customer Service team because you haven't heard back from the letting agent following an enquiry (please allow 3 days) or any other reason call 0330 822 0266.
Please have the following reference number ready:
1824390012More property and tenancy information
Extra features
| Parking | Ask agent |
|---|---|
| Property accessibility | Ask agent |
Utilities and Council Tax
| Council Tax band Student exemptions may apply | Ask agent |
|---|---|
| Electricity supply | Ask agent |
| Water supply | Ask agent |
| Gas supply | Ask agent |
| Broadband | Ask agent |
Permitted payments and tenant information
Permitted payments
For properties in England, the Tenant Fees Act 2019 means that in addition to rent, lettings agents or landlords can only charge tenants the following payments associated with a tenancy:
- Holding deposits (a maximum of 1 week's rent);
- Deposits (a maximum deposit of 5 weeks' rent for annual rent below