Cross Street, City Centre
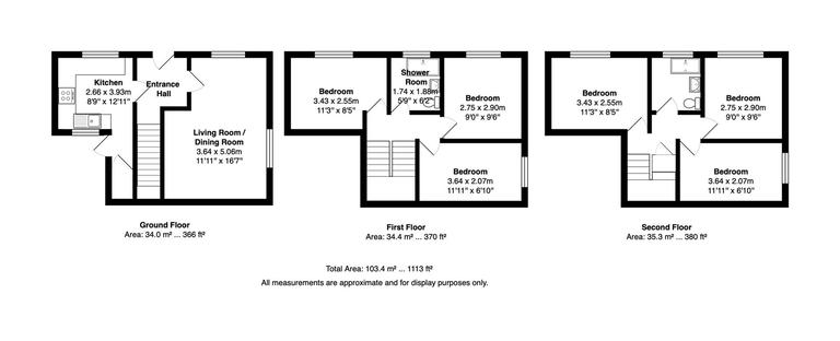
House with 6 bedrooms and 2 bathrooms
Available from 13th August 2026
Bills included
We take the stress out of student living. All student homes have bills included!Plans and tours
Key features
6 Bedrooms
2 Bathrooms
Neutral Decor
Central location
Bills included
Location
Description
SIX DOUBLE BEDROOMS | FURNISHED | | AVAILABLE 13/08/2026 | BILLS INCLUDED OPTIONAL
Nestled on Cross Street in the vibrant area of Hove, this fantastic terraced house is an ideal choice for students seeking a comfortable and convenient living space. Boasting six generously sized double bedrooms, this property offers ample room for both study and relaxation, making it perfect for group living.
The spacious living room serves as a welcoming communal area, perfect for socialising or unwinding after a long day of lectures. The house comes part furnished, providing essential furnishings while allowing you the freedom to personalise your space to suit your style.
One of the standout features of this property is its great location. Hove is known for its lively atmosphere, with a variety of shops, cafes, and parks just a stone's throw away. The proximity to public transport links ensures easy access to nearby universities and the bustling city of Brighton.
With two bathrooms, this house is designed to accommodate the needs of a busy student lifestyle, reducing the morning rush and providing convenience for all residents.
This six-bedroom student house on Cross Street is not just a place to live; it is a home where you can create lasting memories during your academic journey. Don't miss the opportunity to secure this wonderful property in a sought-after location.
Availability
EPC rating
An Energy Performance Certificate (EPC) tells you how energy efficient a property is.
The details shown about this property are part of a property advertisement. UniHomes does not guarantee the accuracy or completeness of the advertisement or any related information, and has no control over its content. The advertisement does not serve as official property particulars. The information is provided and maintained by the Letting Agent. Please contact the agent directly if you have any queries about the information provided in the advertisement.
Cross Street, City Centre
- House
- with 6 bedrooms
- and 2 bathrooms
Bills included
We take the stress out of student living. All student homes have bills included!£152 per person per week including bills
To arrange a viewing or find out more about this property .
If you need to contact the UniHomes Customer Service team because you haven't heard back from the letting agent following an enquiry (please allow 3 days) or any other reason call 0330 822 0266.
Please have the following reference number ready:
1824902424More property and tenancy information
Extra features
| Parking | Ask agent |
|---|---|
| Property accessibility | Ask agent |
Utilities and Council Tax
| Council Tax band Student exemptions may apply | Ask agent |
|---|---|
| Electricity supply | Ask agent |
| Water supply | Ask agent |
| Gas supply | Ask agent |
| Broadband | Ask agent |
Tenancy information
Permitted payments and tenant information
Permitted payments
For properties in England, the Tenant Fees Act 2019 means that in addition to rent, lettings agents or landlords can only charge tenants the following payments associated with a tenancy:
- Holding deposits (a maximum of 1 week's rent);
- Deposits (a maximum deposit of 5 weeks' rent for annual rent below £50,000);
- Payments to change a tenancy agreement eg. change of sharer (capped at £50 or any reasonable costs);
- Payments associated with early termination of a tenancy (capped at the landlord's loss or the agent's reasonably incurred costs);
- Utilities, communication services e.g. gas, electricity, internet. TV licence and council tax.
- Interest payments for the late payment of rent (up to 3% above Bank of England's annual percentage rate);
- Reasonable costs for replacement of lost keys or other security devices;
- Contractual damages in the event of the tenant's default of a tenancy agreement; and
- Any other permitted payments under the Tenant Fees Act 2019.
Tenant information
In addition to publishing relevant fees, lettings agents are also required to publish details of:
- the redress scheme they are a member of; and
- the name of the approved or designated Client Money Protection scheme they are a member of (if any).