Rothbury Terrace, Heaton
Apartment with 2 bedrooms and 1 bathroom
Available from 5th July 2026
Bills included
We take the stress out of student living. All student homes have bills included!Plans and tours
Key features
Available: July 2026
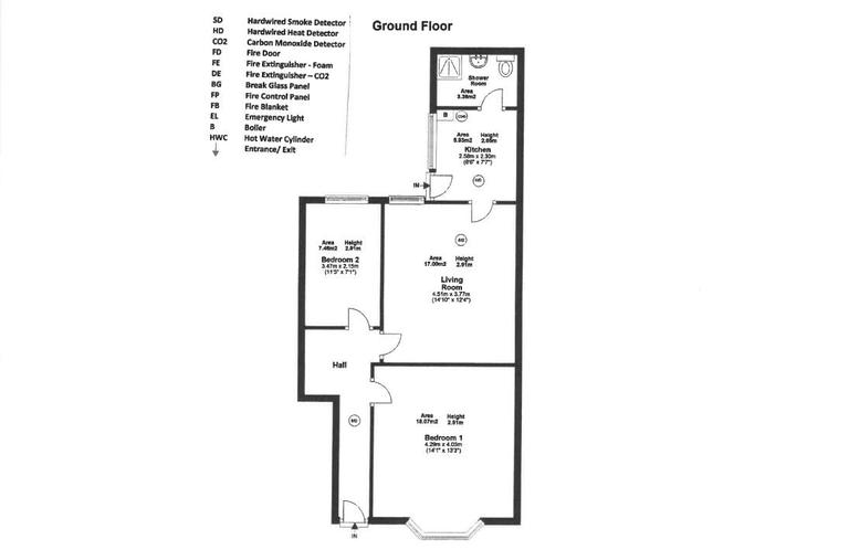
Two double bedrooms, complete with matching furniture
Spacious lounge with plush corner sofa
Recently refurbished kitchen
Modern, neutral interiors, with traditional features, such as original fireplaces
Spacious tiled bathroom
French doors lead out onto a fantastic private patio to the rear, including garden furniture
Double glazing
Bills included
Location
Description
Available: July 2026 - We present this fantastic two bedroom ground floor apartment in the centre of Heaton. Situated on one of the most popular streets in the area, this property features two double bedrooms, all complete with matching neutral furniture.
Availability
EPC rating
An Energy Performance Certificate (EPC) tells you how energy efficient a property is.
The details shown about this property are part of a property advertisement. UniHomes does not guarantee the accuracy or completeness of the advertisement or any related information, and has no control over its content. The advertisement does not serve as official property particulars. The information is provided and maintained by the Letting Agent. Please contact the agent directly if you have any queries about the information provided in the advertisement.
Rothbury Terrace, Heaton
- Apartment
- with 2 bedrooms
- and 1 bathroom
Bills included
We take the stress out of student living. All student homes have bills included!£183 per person per week including bills
To arrange a viewing or find out more about this property .
If you need to contact the UniHomes Customer Service team because you haven't heard back from the letting agent following an enquiry (please allow 3 days) or any other reason call 0330 822 0266.
Please have the following reference number ready:
1066744573More property and tenancy information
Extra features
| Parking | Ask agent |
|---|---|
| Property accessibility | Ask agent |
Utilities and Council Tax
| Council Tax band Student exemptions may apply | Ask agent |
|---|---|
| Electricity supply | Ask agent |
| Water supply | Ask agent |
| Gas supply | Ask agent |
| Broadband | Ask agent |
FEES TO TENANTS
Holding Deposit - Equivalent to one week’s rent
The holding deposit is required to secure the property and conduct the tenant application process including references, signing of contracts, deeds of guarantee and any administration involved in agreement to let.
The holding deposit is equivalent to one week’s rent. If applicants choose to split this between them, payments must equate to a week’s rent in total. For example, if the rent is £780pcm and there are three applicants, the holding deposit will be £180 in total but can be split to £60 each to collectively make the full week.
The agreed deadline for completion of paperwork will be outlined in your Tenancy Guide and Declaration Forms. On the basis that paperwork is completed as instructed by all applicants, the holding deposit will be allocated to the first month's rent.
Instances where a holding fee is non-refundable and the property is re-marketed includes;
- Provision of false or misleading information in the application process (eg. Not declaring adverse credit, stating income is higher than actual).
- Applicants/guarantors pull out of the application
- Applicants fail to complete the required application process in the agreed turnaround time
In special cases, a mutual extension agreement may be facilitated to finalise paperwork. If the applicants again break their deadline, then the holding deposit will be retained and the property re-marketed.
Damage Deposit - Usually equivalent to one month’s rent (up to 5 weeks, or 6 if annual rent exceeds £50,000)
In the majority of cases, your landlord will expect you to pay a damage deposit in advance of the tenancy start date which is lodged with one of the three government approved schemes; The TDS, DPS or MyDeposits.
Your landlord or agent (depending who manages the property) will protect your damage deposit and provide you with the related prescribed information.
The deposit will be held throughout the duration of your tenancy by either a custodial or insured scheme and returned to you after your tenancy ends, minus any agreed deductions (should any apply).
Deposits for property’s managed by Bricks & Mortar are protected with the Tenancy Deposit Scheme (TDS).
Please note: We CANNOT accept payments of the deposit by any third party. We can only accept payments of the deposit by named tenants only. Any attempt of payment by a third party will be refunded and not treated as form of payment towards the deposit.
First Month’s Rent
As part of the sign up procedure, you will be asked to provide the full month’s rent upon completion of the sign up procedure (therefore once contracts are signed). Usually this will be 15 days after making your application, subject to the agreed start date being significantly in advance. If your tenancy begins in less than 15 days from application, a mutual date for payment will be agreed on application to the property.
Once contracts are signed, your first month’s rent is non-refundable as you will be bound to the obligations of the contract.
Late Payment Interest - 3% above the bank rate, charged from day 15 of rent arrears (but backdated)
Should you fall into arrears with your rent, you may be subject to late payment interest at the above specified rate. Please note that interested will be backdated.
Change of Sharer/Tenancy Variation/Addendum (e.g. pets)/Agreed Early Surrender - £50 inc VAT
Once the tenancy becomes live and there are any changes to be made such as a change of sharer, pet addendum or variation to the agreed terms or if the landlord agrees to allow early surrender of tenancy without holding tenants to contract (in very rare instances) then a fee is payable to facilitate necessary documentation.
Early Tenancy Release - 42% inc VAT of a month’s rent (35% + VAT) minimum
As per the terms of the tenancy, tenants are liable to cover reasonable costs incurred to the landlord where tenants want to break their contract and leave early.
Tenants will only be released once suitable replacements are found and complete all necessary paperwork and payments and it is only at this time a deed of surrender will be issued.
The fee payable is to cover referencing new tenants, issuing new contracts, guarantor forms and anything involved to process a new tenancy application.
Tenants also will not be released from contract until the early release fee is paid. This cannot be deducted from the deposit which will only be released once the tenant is relieved of their tenancy obligations. Tenants must also continue to pay their rent in the specified terms set out in the agreement as again, they will not be released if in rental arrears.
It will be tenant responsibility to advertise the property and conduct viewings before putting these forward for the application process.
Should tenants require assistance in marketing and viewings, then a mutually agreed advertisement fee will be agreed to cover the cost of these additional services- this is usually the same as a landlords let fee, see below.
Utilities
Whilst not necessarily a ‘fee,’ utility payments are classed as permitted payments and should be adhered to as specified in your agreement.
If utilities are not included in the rent, it will be tenant responsibility to ensure the payment of gas, electric, water, TV licence, broadband, council tax and another other relevant utility services for the duration of the tenancy. If disconnection occurs due to defaulted payments, tenants will also incur reconnection charges.
Lost/Stolen Keys - £15p/h for staff time and the cost to replace the keys/fob
In the event you lose your keys and you are unable to facilitate getting replacements cut, Bricks & Mortar are able to facilitate this for you at a rate of £15p/h for the time involved along with the cost of the key(s)/fobs to be replaced.
Tenants are welcome to borrow these from the office to save on costs. Keys must however be returned to us within 24hrs or tenants will be liable for the cost of replacing the lock with new keys in order for us to guarantee security to the property.
If you are locked out of your property outside of office hours, unfortunately, it will be your responsibility to contact a locksmith for emergency access as an out of hours door opening service is not provided by our company.
IMPORTANT INFORMATION
For our fully managed properties, tenant deposits are protected with the Tenancy Deposit Scheme (TDS). For further details regarding this scheme, please go to https://www.tenancydepositscheme.com/.
Bricks & Mortar are also accredited by safeagent, membership number A4726 (formerly National Approved Letting Scheme (NALS)) and the Property Ombudsman Redress Scheme.
All of our client funds are protected through the safeagent Client Money Protection Scheme.
Bricks & Mortar facilitate our rent protection, landlord evict and insurance policies through a third party and receive a percentage for each referral.
Should Bricks & Mortar successfully refer you to any solicitors or surveyors in relation to a property sale, we also receive a small percentage for each referral- this varies from company to company and information of these percentages is available at request in advance of using them.