Monmouth Place, City Centre
House with 9 bedrooms and 3 bathrooms
Available immediately
Bills included
We take the stress out of student living. All student homes have bills included!Plans and tours
Key features
Additional kitchenette
Large communal lounge
City Centre Location
Communal cinema room with projector
Large open plan kitchen/lounge area
9 Double bedrooms
Great location
Close to amenities
Bills included
Location
Description
Unique, bright house, full of character with plenty of social space.
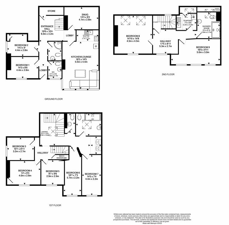
The landlord has recently renovated this unique nine bedroomed house located right in the centre of Bath 5 minutes walk from Kingsmead Square, the Odeon cinema and Sainsburys. The house has nine double bedrooms, a large open-plan kitchen/lounge perfect for socialising, as well as a separate snug/chill-out room perfect for movie nights! The spacious kitchen has 2 ovens, 2 hobs, 2 fridge freezers and bin storage. The lounge has plenty of soft seating for a cosy evening in together. There are also 3 shower rooms with WCs and 2 separate WCs. In addition, the top floor has kitchenette facilities with an under-counter fridge. Each bedroom is lockable and offers furnishings including a bed, mattress, desk/chair, wardrobe and a chest of drawers.
Offered: Part-Furnished.
Hold Fee: 120.00 per person.
Availability
EPC rating
An Energy Performance Certificate (EPC) tells you how energy efficient a property is.
The details shown about this property are part of a property advertisement. UniHomes does not guarantee the accuracy or completeness of the advertisement or any related information, and has no control over its content. The advertisement does not serve as official property particulars. The information is provided and maintained by the Letting Agent. Please contact the agent directly if you have any queries about the information provided in the advertisement.
Monmouth Place, City Centre
- House
- with 9 bedrooms
- and 3 bathrooms
Bills included
We take the stress out of student living. All student homes have bills included!£203.61 per person per week including bills
To arrange a viewing or find out more about this property .
If you need to contact the UniHomes Customer Service team because you haven't heard back from the letting agent following an enquiry (please allow 3 days) or any other reason call 0330 822 0266.
Please have the following reference number ready:
1087982900More property and tenancy information
Extra features
| Parking | Ask agent |
|---|---|
| Property accessibility | Ask agent |
Utilities and Council Tax
| Council Tax band Student exemptions may apply | Ask agent |
|---|---|
| Electricity supply | Ask agent |
| Water supply | Ask agent |
| Gas supply | Ask agent |
| Broadband | Ask agent |
Permitted payments and tenant information
Permitted payments
For properties in England, the Tenant Fees Act 2019 means that in addition to rent, lettings agents or landlords can only charge tenants the following payments associated with a tenancy:
- Holding deposits (a maximum of 1 week's rent);
- Deposits (a maximum deposit of 5 weeks' rent for annual rent below