Mansel Street, City Centre
Apartment with 2 bedrooms and 1 bathroom
Available from 1st July 2026
Bills included
We take the stress out of student living. All student homes have bills included!Plans and tours
Key features
Close to the university
Fully furnished
Low deposit
Spacious lounge
Bills included
Location
Description
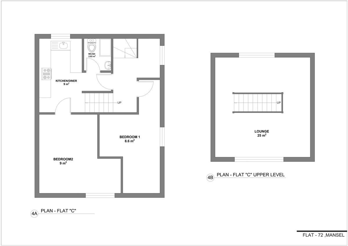
In the heart of the city centre and finished to an immaculate standard is this stunning two-bedroom apartment providing excellent links throughout Swansea and offering a luxurious home for your next year of studies.
Both bedrooms, come with a small double bed, study area, plenty of storage space, and wall-mounted 32” Smart TVs.
Uniquely, the kitchen is located on the ground level of the apartment, provided with plenty of storage space and modern appliances, and the living room is located in the converted loft giving it a quirky feel but providing the perfect place to relax after a day of studies.
The location is perfect to provide access to all the campuses across Swansea as well as being within walking distance of the city centre, local shops and a number of bars and restaurants.
Apartments to this standard and in this location are not often on the rental market so get in touch today to arrange a viewing before someone else snaps it up!
Disclaimer: This property is currently being renovated and will be ready for the 26/27 academic year. The photos used are of a similar property.
Availability
EPC rating
An Energy Performance Certificate (EPC) tells you how energy efficient a property is.
The details shown about this property are part of a property advertisement. UniHomes does not guarantee the accuracy or completeness of the advertisement or any related information, and has no control over its content. The advertisement does not serve as official property particulars. The information is provided and maintained by the Letting Agent. Please contact the agent directly if you have any queries about the information provided in the advertisement.
Mansel Street, City Centre
- Apartment
- with 2 bedrooms
- and 1 bathroom
Bills included
We take the stress out of student living. All student homes have bills included!£192.81 per person per week including bills
To arrange a viewing or find out more about this property .
If you need to contact the UniHomes Customer Service team because you haven't heard back from the letting agent following an enquiry (please allow 3 days) or any other reason call 0330 822 0266.
Please have the following reference number ready:
1143998563More property and tenancy information
Extra features
| Parking | Ask agent |
|---|---|
| Property accessibility | Ask agent |
Utilities and Council Tax
| Council Tax band Student exemptions may apply | Ask agent |
|---|---|
| Electricity supply | Included |
| Water supply | Included |
| Gas supply | Included |
| Broadband | Included |
Tenancy information
Permitted payments and tenant information
Permitted payments
For properties in England, the Tenant Fees Act 2019 means that in addition to rent, lettings agents or landlords can only charge tenants the following payments associated with a tenancy:
- Holding deposits (a maximum of 1 week's rent);
- Deposits (a maximum deposit of 5 weeks' rent for annual rent below £50,000);
- Payments to change a tenancy agreement eg. change of sharer (capped at £50 or any reasonable costs);
- Payments associated with early termination of a tenancy (capped at the landlord's loss or the agent's reasonably incurred costs);
- Utilities, communication services e.g. gas, electricity, internet. TV licence and council tax.
- Interest payments for the late payment of rent (up to 3% above Bank of England's annual percentage rate);
- Reasonable costs for replacement of lost keys or other security devices;
- Contractual damages in the event of the tenant's default of a tenancy agreement; and
- Any other permitted payments under the Tenant Fees Act 2019.
Tenant information
In addition to publishing relevant fees, lettings agents are also required to publish details of:
- the redress scheme they are a member of; and
- the name of the approved or designated Client Money Protection scheme they are a member of (if any).