Headingley Mount, Headingley
House with 3 bedrooms and 2 bathrooms
Available from 1st July 2026
Bills included
We take the stress out of student living. All student homes have bills included!Plans and tours
Key features
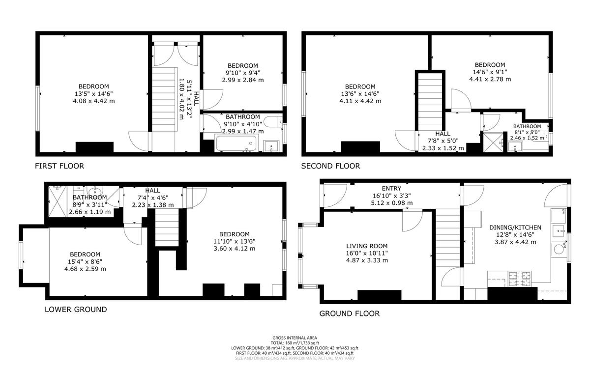
3 bedrooms available in 6 bed house share
3 bathrooms
Large bedrooms
Spacious lounge
Bills included
Location
Description
New for 2026: Join a curated house share in one of our high‑quality student homes
We know it’s hard to form a larger group this early — and even harder to find a great house without one. So we’re fixing the problem.
You can now sign up as an individual or a smaller group, and we’ll match you with like‑minded students to form a friendly, balanced household. It’s everything students love about living in a proper home, without the stress of organising a big group yourself.
Experience high‑spec living just steps from Headingley Stadium and a short walk to central Headingley. Managed by Ixana Property, finalists in five categories at this year’s HMO Awards, this home reflects our commitment to quality, comfort and reliable, hands‑on management. Our annual tenant satisfaction survey reports 100% satisfaction with communication, maintenance response times and overall property quality, showing the care and attention we put into every home.
---
All‑Inclusive Price:
• Council tax included
• Virgin Business’s fastest fibre WiFi
• Bi‑weekly cleaner for communal areas
---
Spacious Bedrooms:
• Six double bedrooms
• Stylish high‑end furnishings
• Double bed with new luxury mattress
• Chest of drawers, wardrobe, desk, chair and bedside table
• 33‑inch Smart TV in every room
• Plenty of sockets and floating display shelving
---
Modern Bathrooms:
• Three separate bathrooms
• One on each floor
• No queues during busy mornings
---
Fully Equipped Kitchen:
• Large kitchen ideal for cooking and socialising
• Double range oven with 6 burners
• Two full‑size fridge freezers
• Dishwasher
• Plenty of storage and workspace
---
Comfortable Living Room:
• Separate lounge
• 50‑inch Smart TV
• Two luxury sofas and an occasional chair
• Wood flooring
---
Tenancy Management App:
• Easy logging and tracking of maintenance issues
• Clear communication with the landlord
• Fast, transparent updates
---
Amenities and Facilities:
• All
• High‑quality furnishings throughout
• Excellent location near Headingley Stadium and central Headingley
• Reliable, responsive management from Ixana Property
---
About Ixana Property:
Ixana Property is a family‑run Leeds landlord specialising in high‑quality student and professional accommodation. We personally oversee every stage of our homes, from design and refurbishment to maintenance and tenant support. Our approach is hands‑on, transparent and service‑focused, with fast communication and a genuine commitment to providing well‑maintained, comfortable homes. We were finalists in five categories at this year’s HMO Awards, and our annual tenant satisfaction survey reports 100% satisfaction across communication, maintenance response times and overall property quality. Many tenants choose to stay with us for multiple years because they value the standard of our homes and the reliability of our management.
Availability
EPC rating
An Energy Performance Certificate (EPC) tells you how energy efficient a property is.
The details shown about this property are part of a property advertisement. UniHomes does not guarantee the accuracy or completeness of the advertisement or any related information, and has no control over its content. The advertisement does not serve as official property particulars. The information is provided and maintained by the Letting Agent. Please contact the agent directly if you have any queries about the information provided in the advertisement.
Headingley Mount, Headingley
- House
- with 3 bedrooms
- and 2 bathrooms
Bills included
We take the stress out of student living. All student homes have bills included!£145 per person per week including bills
To arrange a viewing or find out more about this property .
If you need to contact the UniHomes Customer Service team because you haven't heard back from the letting agent following an enquiry (please allow 3 days) or any other reason call 0330 822 0266.
Please have the following reference number ready:
1318885670More property and tenancy information
Extra features
| Parking | Ask agent |
|---|---|
| Property accessibility | Ask agent |
Utilities and Council Tax
| Council Tax band Student exemptions may apply | Ask agent |
|---|---|
| Electricity supply | Ask agent |
| Water supply | Ask agent |
| Gas supply | Ask agent |
| Broadband | Ask agent |
Tenancy information
Permitted payments and tenant information
Permitted payments
For properties in England, the Tenant Fees Act 2019 means that in addition to rent, lettings agents or landlords can only charge tenants the following payments associated with a tenancy:
- Holding deposits (a maximum of 1 week's rent);
- Deposits (a maximum deposit of 5 weeks' rent for annual rent below £50,000);
- Payments to change a tenancy agreement eg. change of sharer (capped at £50 or any reasonable costs);
- Payments associated with early termination of a tenancy (capped at the landlord's loss or the agent's reasonably incurred costs);
- Utilities, communication services e.g. gas, electricity, internet. TV licence and council tax.
- Interest payments for the late payment of rent (up to 3% above Bank of England's annual percentage rate);
- Reasonable costs for replacement of lost keys or other security devices;
- Contractual damages in the event of the tenant's default of a tenancy agreement; and
- Any other permitted payments under the Tenant Fees Act 2019.
Tenant information
In addition to publishing relevant fees, lettings agents are also required to publish details of:
- the redress scheme they are a member of; and
- the name of the approved or designated Client Money Protection scheme they are a member of (if any).