Sandhurst Road, The Polygon
House with 4 bedrooms and 1 bathroom
Available from 13th July 2026
Bills included
We take the stress out of student living. All student homes have bills included!Plans and tours
Key features
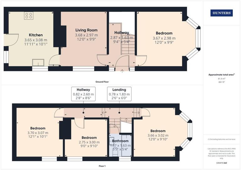
Four bed setached student house
All bedrooms are doubles
Separate lounge & kitchen
On road permit parking applied throughout Southampton City Council
Located within The Polygon
Enclosed garden with side access
EPC: D
Council tax: Exempt for full time students
Bills included
Location
Description
Four bedroom, detached, student house is brought to the market furnished and available in August.
The house comes equipped with four double bedrooms, three of these on the first floor alongside the bathroom (shower over bath) and the fourth bedroom on the ground floor. Each bedroom comes with bed, storage space, desk and chair. The lounge is to the left of the main entrance, leading into the kitchen and enclosed rear garden. The kitchen will come with white goods, dinning table and chairs. The lounge has two sofas and coffee table. The house is located within The Polygon, 0.7 miles to Lidl, 0.8 miles to Solent University (East Park Terrace), 0.5 miles to London Road bus stop for U1A/U2B and 0.7 miles to Westquay.
The house has further benefits of gas central heating, some understairs storage, permit parking (applied through Southampton City Council) and double glazing.
The tenancy entered into is an AST (assured shorthold tenancy) where each tenant and chosen guarantor is joint and severally liable for the duration for the tenancy.
The package is offered by a third party and is not included within the tenancy agreement or a service offered by the landlord directly.
Availability
EPC rating
An Energy Performance Certificate (EPC) tells you how energy efficient a property is.
The details shown about this property are part of a property advertisement. UniHomes does not guarantee the accuracy or completeness of the advertisement or any related information, and has no control over its content. The advertisement does not serve as official property particulars. The information is provided and maintained by the Letting Agent. Please contact the agent directly if you have any queries about the information provided in the advertisement.
Sandhurst Road, The Polygon
- House
- with 4 bedrooms
- and 1 bathroom
Bills included
We take the stress out of student living. All student homes have bills included!£126.97 per person per week including bills
To arrange a viewing or find out more about this property .
If you need to contact the UniHomes Customer Service team because you haven't heard back from the letting agent following an enquiry (please allow 3 days) or any other reason call 0330 822 0266.
Please have the following reference number ready:
1533451559More property and tenancy information
Extra features
| Parking | Ask agent |
|---|---|
| Property accessibility | Ask agent |
Utilities and Council Tax
| Council Tax band Student exemptions may apply | Ask agent |
|---|---|
| Electricity supply | Ask agent |
| Water supply | Ask agent |
| Gas supply | Ask agent |
| Broadband | Ask agent |
Permitted payments and tenant information
Permitted payments
For properties in England, the Tenant Fees Act 2019 means that in addition to rent, lettings agents or landlords can only charge tenants the following payments associated with a tenancy:
- Holding deposits (a maximum of 1 week's rent);
- Deposits (a maximum deposit of 5 weeks' rent for annual rent below