4A Brook Drive, City Centre
House with 8 bedrooms and 3 bathrooms
Available from 1st July 2026
Bills included
We take the stress out of student living. All student homes have bills included!Plans and tours
Key features
Large rooms
Free Parking
No Deposit
Close to the university
Fully furnished
Large kitchen
Utility Room with Washing and Drying Machine
Dishwasher
Bills included
Location
Description
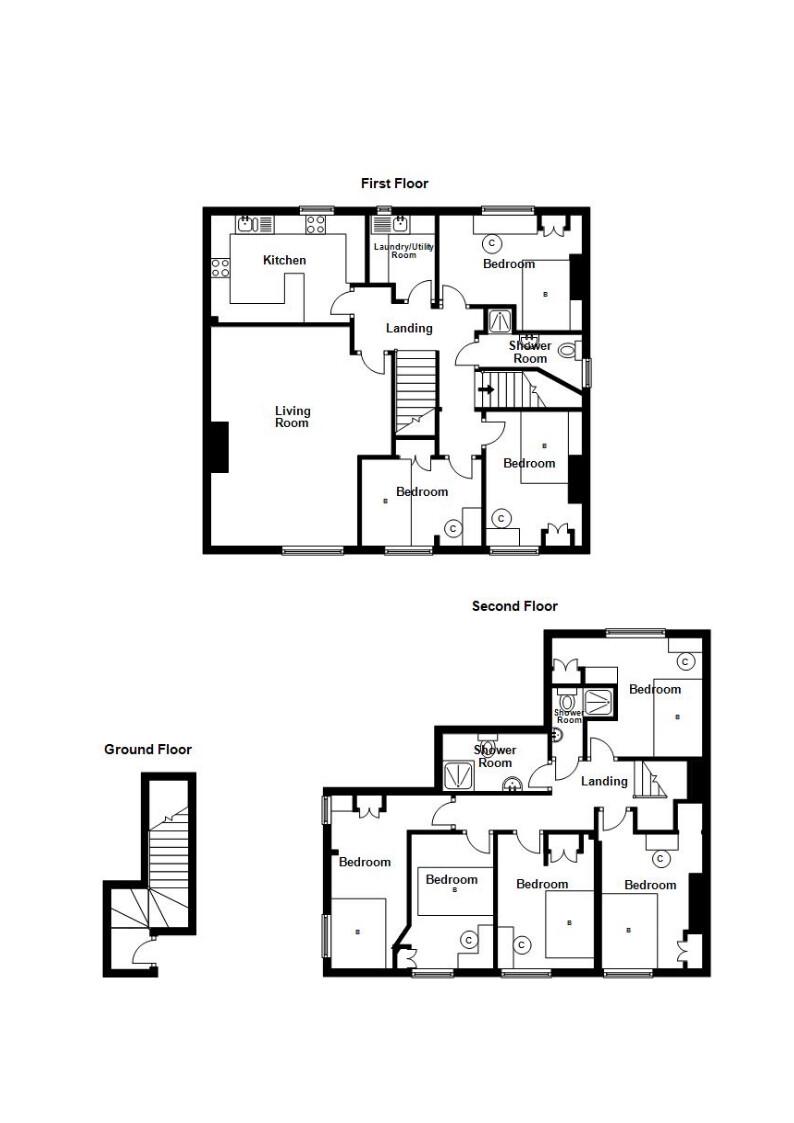
Discover The Albion, a charming traditional English pub expertly transformed into two expansive Sheffield student flats, ideally located for large groups seeking proximity to The University of Sheffield and the vibrant student nightlife. The ground floor apartment features 9 bedrooms, 3 luxury bathrooms, a modern kitchen, a separate living/dining area, and a large paved rear yard for outdoor gatherings, along with a generous cellar for additional storage. The duplex apartment spans two floors, offering 8 bedrooms, 3 luxury bathrooms, a contemporary kitchen, a spacious living/dining area, and a convenient utility room. Both apartments come fully furnished with 3 comfortable sofas, a dining table with chairs, a breakfast bar with stools, and a Smart TV for entertainment. Enjoy the convenience of , alongside essential white goods such as a dishwasher, 2 fridges, 2 freezers, and washing and drying machines. These exceptional flats are perfect for large groups wishing to live together, offering the flexibility to rent as two separate apartments or accommodate a combined group of up to 17 students. Experience student living at its finest at The Albion!
Availability
EPC rating
An Energy Performance Certificate (EPC) tells you how energy efficient a property is.
The details shown about this property are part of a property advertisement. UniHomes does not guarantee the accuracy or completeness of the advertisement or any related information, and has no control over its content. The advertisement does not serve as official property particulars. The information is provided and maintained by the Letting Agent. Please contact the agent directly if you have any queries about the information provided in the advertisement.
4A Brook Drive, City Centre
- House
- with 8 bedrooms
- and 3 bathrooms
Bills included
We take the stress out of student living. All student homes have bills included!£99 per person per week including bills
To arrange a viewing or find out more about this property .
If you need to contact the UniHomes Customer Service team because you haven't heard back from the letting agent following an enquiry (please allow 3 days) or any other reason call 0330 822 0266.
Please have the following reference number ready:
1569453696More property and tenancy information
Extra features
| Parking | Ask agent |
|---|---|
| Property accessibility | Ask agent |
Utilities and Council Tax
| Council Tax band Student exemptions may apply | Ask agent |
|---|---|
| Electricity supply | Ask agent |
| Water supply | Ask agent |
| Gas supply | Ask agent |
| Broadband | Ask agent |
Permitted payments and tenant information
Permitted payments
For properties in England, the Tenant Fees Act 2019 means that in addition to rent, lettings agents or landlords can only charge tenants the following payments associated with a tenancy:
- Holding deposits (a maximum of 1 week's rent);
- Deposits (a maximum deposit of 5 weeks' rent for annual rent below