Richmond Road, Roath
House with 6 bedrooms and 3 bathrooms
Available from 1st July 2026
Bills included
We take the stress out of student living. All student homes have bills included!Plans and tours
Key features
Burglar alarm
Communal storage
Close to the university
Fully furnished
Large rooms
Large kitchen
Bills included
Location
Description
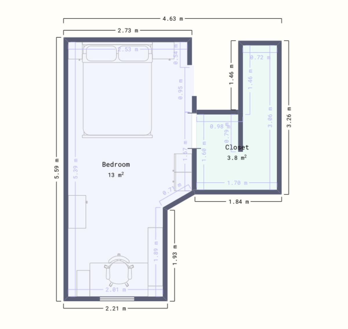
Welcome to this vibrant and bustling 6-bedroom semi-detached house, located just a stone's throw away from Cardiff University. This lively student hub promises a perfect blend of comfort and convenience, making it an ideal choice for those seeking a dynamic student living experience.
Step inside this inviting abode, and you are greeted by a spacious kitchen complete with a diner area, where you can enjoy delicious meals with your housemates. The kitchen boasts modern amenities, including two fridge freezers, providing ample storage space for all your culinary delights. The inclusion of a dining table and chairs adds a touch of warmth, creating a cosy setting for shared meals and lively conversations.
The property features a separate lounge, offering a relaxing space to unwind after a long day of lectures and study sessions. The lounge provides the perfect opportunity for housemates to come together, bond over their shared experiences, and create lasting memories.
With a full bathroom and a full shower room, this house ensures that everyone's needs are met, providing flexibility and convenience for all residents. Additionally, a walk-in shower room adds a touch of luxury to the property, offering a spa-like experience within the comfort of your own home.
Off-road parking further enhances the convenience of this property, ensuring that residents have easy access to transportation and can explore the vibrant city of Cardiff with ease. Whether you're heading to campus for classes or venturing into the city centre for leisure activities, this property's prime location serves as the perfect starting point for all your adventures.
In conclusion, this 6-bedroom semi-detached house near Cardiff University is more than just a place to live – it is a vibrant community where students can come together, socialise, and thrive. With its functional amenities, cosy living spaces, and convenient location, this property offers the perfect setting for a fulfilling and enjoyable student living experience. Don't miss this opportunity to make this house your home away from home!
Availability
EPC rating
An Energy Performance Certificate (EPC) tells you how energy efficient a property is.
The details shown about this property are part of a property advertisement. UniHomes does not guarantee the accuracy or completeness of the advertisement or any related information, and has no control over its content. The advertisement does not serve as official property particulars. The information is provided and maintained by the Letting Agent. Please contact the agent directly if you have any queries about the information provided in the advertisement.
Richmond Road, Roath
- House
- with 6 bedrooms
- and 3 bathrooms
Bills included
We take the stress out of student living. All student homes have bills included!£161 per person per week including bills
To arrange a viewing or find out more about this property .
If you need to contact the UniHomes Customer Service team because you haven't heard back from the letting agent following an enquiry (please allow 3 days) or any other reason call 0330 822 0266.
Please have the following reference number ready:
1659318465More property and tenancy information
Extra features
| Parking | 2 SPACES |
|---|---|
| Property accessibility | Ask agent |
Utilities and Council Tax
| Council Tax band Student exemptions may apply | Ask agent |
|---|---|
| Electricity supply | Ask agent |
| Water supply | Ask agent |
| Gas supply | Ask agent |
| Broadband | Ask agent |
Tenancy information
Permitted payments and tenant information
Permitted payments
For properties in England, the Tenant Fees Act 2019 means that in addition to rent, lettings agents or landlords can only charge tenants the following payments associated with a tenancy:
- Holding deposits (a maximum of 1 week's rent);
- Deposits (a maximum deposit of 5 weeks' rent for annual rent below £50,000);
- Payments to change a tenancy agreement eg. change of sharer (capped at £50 or any reasonable costs);
- Payments associated with early termination of a tenancy (capped at the landlord's loss or the agent's reasonably incurred costs);
- Utilities, communication services e.g. gas, electricity, internet. TV licence and council tax.
- Interest payments for the late payment of rent (up to 3% above Bank of England's annual percentage rate);
- Reasonable costs for replacement of lost keys or other security devices;
- Contractual damages in the event of the tenant's default of a tenancy agreement; and
- Any other permitted payments under the Tenant Fees Act 2019.
Tenant information
In addition to publishing relevant fees, lettings agents are also required to publish details of:
- the redress scheme they are a member of; and
- the name of the approved or designated Client Money Protection scheme they are a member of (if any).