Hillside, Moulsecoomb
House with 5 bedrooms and 2 bathrooms
Available from 1st July 2026
Bills included
We take the stress out of student living. All student homes have bills included!Plans and tours
Key features
Students
Bills included
Location
Description
VIDEO TOUR AVAILABLE | NO DEPOSIT OPTION | AVAILABLE BILLS INCLUSIVE |.
For Brighton University students, you couldn't be in a better location as the campus is just a short walk away, and for Sussex students, you can jump on a bus or a train, and arrive in minutes.
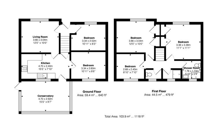
Bedrooms: 5 double Living Rooms: 1 spacious plus conservatory Outside: Large rear garden Location: Lewes Road/Bevendean Parking: free on street Why you'll like it: Houses built during this period are known for being spacious and light, so it is perfect as a multi-occupancy let, as you can spread out to study, and don't feel on top of one another, whilst also having ample room to socialise. The living room is comfortable and aligned with the kitchen so it is great for socialising, and there's even a garden for respectful summer gatherings and barbecues. There are two spacious double bedrooms on the ground floor and a further three on the first floor. The bathroom is spacious with a separate WC to avoid queues on busy mornings. Sainsburys and several smaller supermarkets are also within walking distance, as are many reputable take away establishments, so you won't go hungry, and there are many busses to take you into the city and beyond if you are looking for entertainment off campus. Please be aware photographs are for marekting purposes only. Actual contents and layout may vary. Please note council tax is not payable where all the occupants of a property are in full time higher education.
Availability
EPC rating
An Energy Performance Certificate (EPC) tells you how energy efficient a property is.
The details shown about this property are part of a property advertisement. UniHomes does not guarantee the accuracy or completeness of the advertisement or any related information, and has no control over its content. The advertisement does not serve as official property particulars. The information is provided and maintained by the Letting Agent. Please contact the agent directly if you have any queries about the information provided in the advertisement.
Hillside, Moulsecoomb
- House
- with 5 bedrooms
- and 2 bathrooms
Bills included
We take the stress out of student living. All student homes have bills included!£170 per person per week including bills
To arrange a viewing or find out more about this property .
If you need to contact the UniHomes Customer Service team because you haven't heard back from the letting agent following an enquiry (please allow 3 days) or any other reason call 0330 822 0266.
Please have the following reference number ready:
1744305736More property and tenancy information
Extra features
| Parking | Ask agent |
|---|---|
| Property accessibility | Ask agent |
Utilities and Council Tax
| Council Tax band Student exemptions may apply | Ask agent |
|---|---|
| Electricity supply | Ask agent |
| Water supply | Ask agent |
| Gas supply | Ask agent |
| Broadband | Ask agent |
Permitted payments and tenant information
Permitted payments
For properties in England, the Tenant Fees Act 2019 means that in addition to rent, lettings agents or landlords can only charge tenants the following payments associated with a tenancy:
- Holding deposits (a maximum of 1 week's rent);
- Deposits (a maximum deposit of 5 weeks' rent for annual rent below