Sparkford Close, Stanmore
House with 6 bedrooms and 2 bathrooms
Available from 14th August 2026
Bills included
We take the stress out of student living. All student homes have bills included!Plans and tours
Key features
Six bed student house
Seperate shower room & bathroom
Off road parking
Spacious lounge & separate kitchen
Gas central heating & double glazing
0.2 mile walk to University of Winchester
EPC: C
Council tax: Exempt for full time students
Bills included
Location
Description
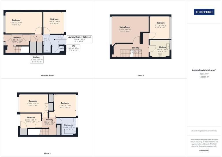
**STUDENT PROPERTY** We are pleased to present a six bedroom student house in Winchester. The property comprises entrance hall, kitchen, living room, bathroom, shower room, five double bedrooms, single bedroom and utility area. Offered furnished the property benefits from enclosed rear garden, off roar parking for four cars, double glazing and gas central heating.
The tenancy entered into is an AST (assured shorthold tenancy) where each tenant and chosen guarantor is joint and severally liable for the duration for the tenancy.
The package is offered by a third party and is not included within the tenancy agreement or a service offered by the landlord directly.
Availability
EPC rating
An Energy Performance Certificate (EPC) tells you how energy efficient a property is.
The details shown about this property are part of a property advertisement. UniHomes does not guarantee the accuracy or completeness of the advertisement or any related information, and has no control over its content. The advertisement does not serve as official property particulars. The information is provided and maintained by the Letting Agent. Please contact the agent directly if you have any queries about the information provided in the advertisement.
Sparkford Close, Stanmore
- House
- with 6 bedrooms
- and 2 bathrooms
Bills included
We take the stress out of student living. All student homes have bills included!£155.27 per person per week including bills
To arrange a viewing or find out more about this property .
If you need to contact the UniHomes Customer Service team because you haven't heard back from the letting agent following an enquiry (please allow 3 days) or any other reason call 0330 822 0266.
Please have the following reference number ready:
1778579878More property and tenancy information
Extra features
| Parking | Ask agent |
|---|---|
| Property accessibility | Ask agent |
Utilities and Council Tax
| Council Tax band Student exemptions may apply | Ask agent |
|---|---|
| Electricity supply | Ask agent |
| Water supply | Ask agent |
| Gas supply | Ask agent |
| Broadband | Ask agent |
Permitted payments and tenant information
Permitted payments
For properties in England, the Tenant Fees Act 2019 means that in addition to rent, lettings agents or landlords can only charge tenants the following payments associated with a tenancy:
- Holding deposits (a maximum of 1 week's rent);
- Deposits (a maximum deposit of 5 weeks' rent for annual rent below