Viaduct Road East Sussex, Preston
House with 6 bedrooms and 2 bathrooms
Available from 14th August 2026
Bills included
We take the stress out of student living. All student homes have bills included!Plans and tours
Key features
Featured
Private garden
Central Heating
Double glazing
Washing Machine
Tumble Dryer
Microwave
Cooker
Bills included
Location
Description
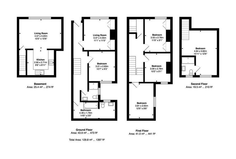
Six-Bedroom Furnished House
We are delighted to offer this six double-bedroom fully furnished house, located in a desirable area near The Level and London Road.
Set over three floors, the property includes a loft conversion with a double bedroom and en-suite shower room. The first floor features three large furnished double bedrooms, while the ground floor has two further double bedrooms, a main bathroom with bath, basin, and toilet, plus an additional shower room with basin and toilet.
The basement hosts the open-plan lounge and kitchen, fitted with white goods, a dishwasher, and a dining area. The property is neutrally decorated throughout, double-glazed, and has gas central heating.
Early internal viewing is highly recommended.
Availability
EPC rating
An Energy Performance Certificate (EPC) tells you how energy efficient a property is.
The details shown about this property are part of a property advertisement. UniHomes does not guarantee the accuracy or completeness of the advertisement or any related information, and has no control over its content. The advertisement does not serve as official property particulars. The information is provided and maintained by the Letting Agent. Please contact the agent directly if you have any queries about the information provided in the advertisement.
Viaduct Road East Sussex, Preston
- House
- with 6 bedrooms
- and 2 bathrooms
Bills included
We take the stress out of student living. All student homes have bills included!£182 per person per week including bills
To arrange a viewing or find out more about this property .
If you need to contact the UniHomes Customer Service team because you haven't heard back from the letting agent following an enquiry (please allow 3 days) or any other reason call 0330 822 0266.
Please have the following reference number ready:
188552324More property and tenancy information
Extra features
| Parking | Ask agent |
|---|---|
| Property accessibility | Ask agent |
Utilities and Council Tax
| Council Tax band Student exemptions may apply | Ask agent |
|---|---|
| Electricity supply | Ask agent |
| Water supply | Ask agent |
| Gas supply | Ask agent |
| Broadband | Ask agent |
Permitted payments and tenant information
Permitted payments
For properties in England, the Tenant Fees Act 2019 means that in addition to rent, lettings agents or landlords can only charge tenants the following payments associated with a tenancy:
- Holding deposits (a maximum of 1 week's rent);
- Deposits (a maximum deposit of 5 weeks' rent for annual rent below