Wilmslow Road Gatley, Withington
Apartment with 6 bedrooms and 2 bathrooms
Available from 1st July 2026
Bills included
We take the stress out of student living. All student homes have bills included!Plans and tours
Key features
Furnished
Close to Public Transport
Walk to Shops & Restaurants
Close to Christie Hospital
Fully Fitted Kitchen
Available from 1 July 2026
Bills included
Location
Description
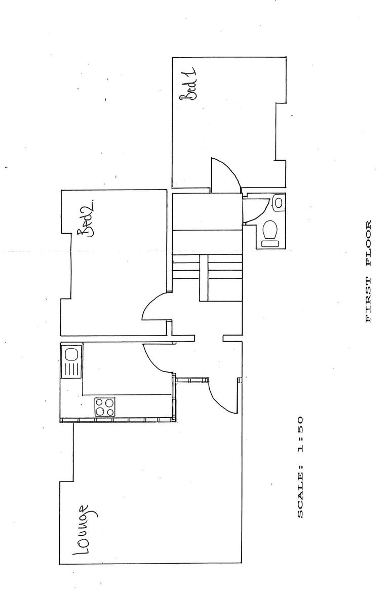
This spacious 6 bed student home can be found on Wilmslow Road in Withington. It is situated a short walk away from buses to and from the universities and the city centre. It is also walking distance from the Christie Hospital, and Withington's shopping street where you can find a Sainsbury's Local, Costa, Co-op and some excellent local bars and restaurants.There are 6 large bedrooms, all equipped with a bed, drawers, wardrobe, desk and chair.The communal areas comprise of a fully fitted kitchen and a separate lounge. There is two wc, two showers and a bath. The deposit is £500 per person.Contact us today to book a viewing on 0161 560 1583.Further details:Please note you may be asked to pay a holding deposit to secure the property. Holding deposits will be up to one weeks rent (£125 per person). Council tax band C - If you are all students you are exempt from council tax and will have to complete an exemption form.Council tax band: C, EPC rating: D.
This property is listed by Hybr: The rental platform for students in the UK. By enquiring on this property, you consent to Hybr managing your enquiry and passing on your information to the landlord or agent that manages this property.
Availability
EPC rating
An Energy Performance Certificate (EPC) tells you how energy efficient a property is.
The details shown about this property are part of a property advertisement. UniHomes does not guarantee the accuracy or completeness of the advertisement or any related information, and has no control over its content. The advertisement does not serve as official property particulars. The information is provided and maintained by the Letting Agent. Please contact the agent directly if you have any queries about the information provided in the advertisement.
Wilmslow Road Gatley, Withington
- Apartment
- with 6 bedrooms
- and 2 bathrooms
Bills included
We take the stress out of student living. All student homes have bills included!£137 per person per week including bills
To arrange a viewing or find out more about this property .
If you need to contact the UniHomes Customer Service team because you haven't heard back from the letting agent following an enquiry (please allow 3 days) or any other reason call 0330 822 0266.
Please have the following reference number ready:
1985638278More property and tenancy information
Extra features
| Parking | Ask agent |
|---|---|
| Property accessibility | Ask agent |
Utilities and Council Tax
| Council Tax band Student exemptions may apply | Ask agent |
|---|---|
| Electricity supply | Ask agent |
| Water supply | Ask agent |
| Gas supply | Ask agent |
| Broadband | Ask agent |
Tenancy information
Permitted payments and tenant information
Permitted payments
For properties in England, the Tenant Fees Act 2019 means that in addition to rent, lettings agents or landlords can only charge tenants the following payments associated with a tenancy:
- Holding deposits (a maximum of 1 week's rent);
- Deposits (a maximum deposit of 5 weeks' rent for annual rent below £50,000);
- Payments to change a tenancy agreement eg. change of sharer (capped at £50 or any reasonable costs);
- Payments associated with early termination of a tenancy (capped at the landlord's loss or the agent's reasonably incurred costs);
- Utilities, communication services e.g. gas, electricity, internet. TV licence and council tax.
- Interest payments for the late payment of rent (up to 3% above Bank of England's annual percentage rate);
- Reasonable costs for replacement of lost keys or other security devices;
- Contractual damages in the event of the tenant's default of a tenancy agreement; and
- Any other permitted payments under the Tenant Fees Act 2019.
Tenant information
In addition to publishing relevant fees, lettings agents are also required to publish details of:
- the redress scheme they are a member of; and
- the name of the approved or designated Client Money Protection scheme they are a member of (if any).