Harefield Road, Ecclesall
House with 3 bedrooms and 1 bathroom
Available from 1st July 2026
Bills included
We take the stress out of student living. All student homes have bills included!Plans and tours
Key features
Close to the university
Fully furnished
Large kitchen
Large rooms
Low deposit
Garden
Additional bedroom (property that will accept group of 3)
Great location
Bills included
Location
Description
ADDITIONAL BEDROOM (PROPERTY, THAT WILL ACCEPT A GROUP OF 3) STUDENT OPTION AVAILABLE AT AVAILABLE FOR A GROUP OF 3 or 4
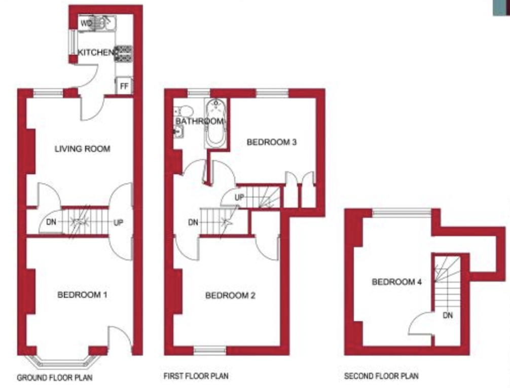
A WELL LOCATED, mid terrace property, located just off ECCLESALL ROAD. Ideal for STUDENTS studying at SHEFFIELD HALLAM UNIVERSITY and close to an abundance of local amenities. In brief the accommodation comprises: lounge, separate kitchen and large double bedroom to the ground floor. To the first floor are two double bedrooms and a bathroom/WC. To the second floor is a large double bedroom. An early viewing is highly recommended to avoid disappointment! EPC Grade E.
Availability
EPC rating
An Energy Performance Certificate (EPC) tells you how energy efficient a property is.
The details shown about this property are part of a property advertisement. UniHomes does not guarantee the accuracy or completeness of the advertisement or any related information, and has no control over its content. The advertisement does not serve as official property particulars. The information is provided and maintained by the Letting Agent. Please contact the agent directly if you have any queries about the information provided in the advertisement.
Harefield Road, Ecclesall
- House
- with 3 bedrooms
- and 1 bathroom
Bills included
We take the stress out of student living. All student homes have bills included!£136 per person per week including bills
To arrange a viewing or find out more about this property .
If you need to contact the UniHomes Customer Service team because you haven't heard back from the letting agent following an enquiry (please allow 3 days) or any other reason call 0330 822 0266.
Please have the following reference number ready:
2022716562More property and tenancy information
Extra features
| Parking | Ask agent |
|---|---|
| Property accessibility | Ask agent |
Utilities and Council Tax
| Council Tax band Student exemptions may apply | Ask agent |
|---|---|
| Electricity supply | Ask agent |
| Water supply | Ask agent |
| Gas supply | Ask agent |
| Broadband | Ask agent |
Tenancy information
Permitted payments and tenant information
Permitted payments
For properties in England, the Tenant Fees Act 2019 means that in addition to rent, lettings agents or landlords can only charge tenants the following payments associated with a tenancy:
- Holding deposits (a maximum of 1 week's rent);
- Deposits (a maximum deposit of 5 weeks' rent for annual rent below £50,000);
- Payments to change a tenancy agreement eg. change of sharer (capped at £50 or any reasonable costs);
- Payments associated with early termination of a tenancy (capped at the landlord's loss or the agent's reasonably incurred costs);
- Utilities, communication services e.g. gas, electricity, internet. TV licence and council tax.
- Interest payments for the late payment of rent (up to 3% above Bank of England's annual percentage rate);
- Reasonable costs for replacement of lost keys or other security devices;
- Contractual damages in the event of the tenant's default of a tenancy agreement; and
- Any other permitted payments under the Tenant Fees Act 2019.
Tenant information
In addition to publishing relevant fees, lettings agents are also required to publish details of:
- the redress scheme they are a member of; and
- the name of the approved or designated Client Money Protection scheme they are a member of (if any).