Brunswick Street, Broomhall
House with 4 bedrooms and 1 bathroom
Available from 1st July 2026
Bills included
We take the stress out of student living. All student homes have bills included!Plans and tours
Key features
* Ideal for students
* Fully Furnished
* 5 mins walk to University of Sheffield Students Union
* 4 Spacious and cosy bedrooms with large beds
* Within walking distance to Sheffield Hallam University
Bills included
Location
Description
The house comprises of 4 spacious bedrooms, lounge, 2 w/c of which one is incorporated in the bathroom and a fitted kitchen. The house benefits from double glazing, class A condensing gas central heating boiler and radiators. The house is conveniently located within walking distance of both University of Sheffield and Sheffield Hallam University Collegiate Campus.
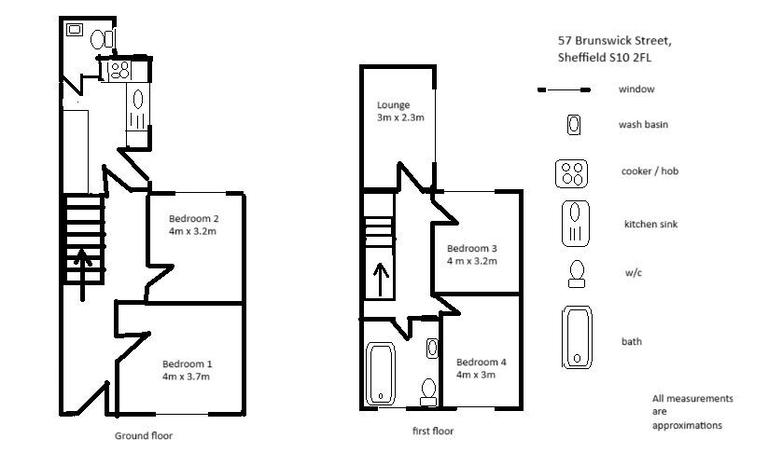
Ground Floor:
Bedroom 1:
The spacious bedrooms comprise of a Double Bed, desk, wardrobe, chair, curtains, fitted carpets, a chest of draws and thermostatically controlled central heating radiator.
Bedroom 2:
The spacious bedrooms comprise of a Double Bed, desk, wardrobe, chair, curtains, fitted carpets, a chest of draws and thermostatically controlled central heating radiator.
W/C:
Located on the ground floor, at the back of the house.
Kitchen:
The kitchen comprises of a fully fitted kitchen with a fridge/freezer, washing machine, stainless steel sink, gas hob, an electric oven, extractor fan, microwave and thermostatically controlled central heating radiator.
Second Floor:
Lounge:
Sofa, coffee table, fitted carpet, folding dining table and 2 chairs.
Bedroom 3:
The bedrooms comprise of a Double Bed, desk, built in wardrobe, chair, curtains, fitted carpets and thermostatically controlled central heating radiator.
Bedroom 4:
The bedrooms comprise of a Double Bed, desk, wardrobe, chair, curtains, fitted carpets and thermostatically controlled central heating radiator.
Bathroom:
The bathroom comprises of a sink, w/c, bath with electric shower and a central heating radiator.
No Smokers
This property is presented on an 'Advertising only' basis for a local Landlord. Applicants for the property will have their contact details passed to the Landlord who will then contact you to organise a viewing of the property. Should the viewing be successful, tenancy contract negotiations will be handled by the Landlord. Please note the Landlords terms and conditions may therefore be diffeto those outlined on our website information pages.
Electricity supply: Mains
Heating: Gas Mains
Water supply: Mains
Sewerage: Mains
Accessibility measures: Not suitable for wheelchair users
£1,875
DUE
Monthly
COUNCIL TAX BAND
Band B - **Council tax not applicable where all tenants are full time students**
PARKING
Limited parking may be available at the property or on nearby streets. Please note that parking permits may be required. For more information, including permit zones and how to apply, please refer to the Sheffield City Council website.
Availability
EPC rating
An Energy Performance Certificate (EPC) tells you how energy efficient a property is.
The details shown about this property are part of a property advertisement. UniHomes does not guarantee the accuracy or completeness of the advertisement or any related information, and has no control over its content. The advertisement does not serve as official property particulars. The information is provided and maintained by the Letting Agent. Please contact the agent directly if you have any queries about the information provided in the advertisement.
Brunswick Street, Broomhall
- House
- with 4 bedrooms
- and 1 bathroom
Bills included
We take the stress out of student living. All student homes have bills included!£101 per person per week including bills
To arrange a viewing or find out more about this property .
If you need to contact the UniHomes Customer Service team because you haven't heard back from the letting agent following an enquiry (please allow 3 days) or any other reason call 0330 822 0266.
Please have the following reference number ready:
2117865928More property and tenancy information
Extra features
| Parking | Ask agent |
|---|---|
| Property accessibility | Ask agent |
Utilities and Council Tax
| Council Tax band Student exemptions may apply | Ask agent |
|---|---|
| Electricity supply | Ask agent |
| Water supply | Ask agent |
| Gas supply | Ask agent |
| Broadband | Ask agent |
Permitted payments and tenant information
Permitted payments
For properties in England, the Tenant Fees Act 2019 means that in addition to rent, lettings agents or landlords can only charge tenants the following payments associated with a tenancy:
- Holding deposits (a maximum of 1 week's rent);
- Deposits (a maximum deposit of 5 weeks' rent for annual rent below