Headingley Ave, Headingley
Apartment with 3 bedrooms and 2 bathrooms
Available from 1st July 2026
Bills included
We take the stress out of student living. All student homes have bills included!Plans and tours
Bills included
Location
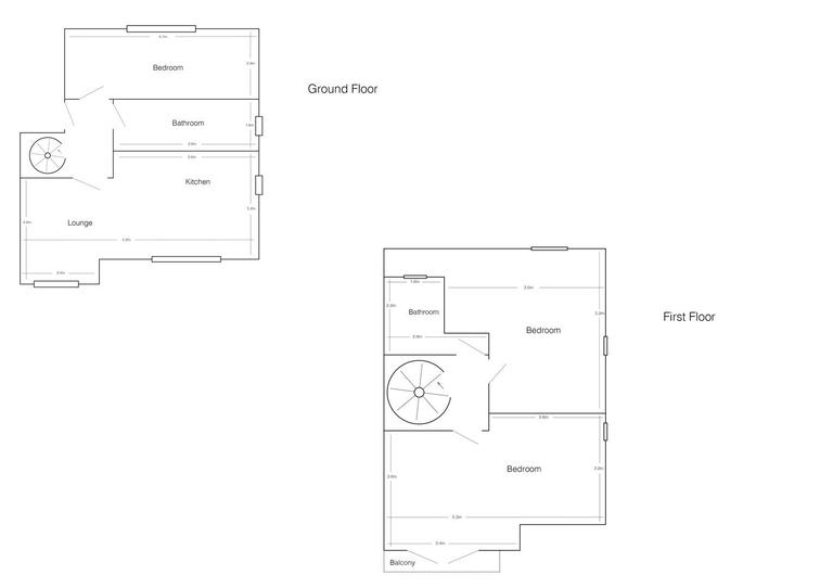
Description
Purpose built luxury 3 bedroom furnished apartment.
Open plan lounge kitchen with wood floors, Bathroom with shower bath, 3 large double bedrooms set over 2 floors with En-suite bathrooms.
3rd bedroom accessed via a feature spiral staircase.
All bedrooms furnished with double beds, wardrobe, chest of drawers, desk and chair.
Double glazed with gas central heating.
Great location only a short walk to Leeds Uni and close to Headingley stadium.
Availability
EPC rating
An Energy Performance Certificate (EPC) tells you how energy efficient a property is.
The details shown about this property are part of a property advertisement. UniHomes does not guarantee the accuracy or completeness of the advertisement or any related information, and has no control over its content. The advertisement does not serve as official property particulars. The information is provided and maintained by the Letting Agent. Please contact the agent directly if you have any queries about the information provided in the advertisement.
Headingley Ave, Headingley
- Apartment
- with 3 bedrooms
- and 2 bathrooms
Bills included
We take the stress out of student living. All student homes have bills included!£148 per person per week including bills
To arrange a viewing or find out more about this property .
If you need to contact the UniHomes Customer Service team because you haven't heard back from the letting agent following an enquiry (please allow 3 days) or any other reason call 0330 822 0266.
Please have the following reference number ready:
271874176More property and tenancy information
Extra features
| Parking | Ask agent |
|---|---|
| Property accessibility | Ask agent |
Utilities and Council Tax
| Council Tax band Student exemptions may apply | Ask agent |
|---|---|
| Electricity supply | Ask agent |
| Water supply | Ask agent |
| Gas supply | Ask agent |
| Broadband | Ask agent |
Permitted payments and tenant information
Permitted payments
For properties in England, the Tenant Fees Act 2019 means that in addition to rent, lettings agents or landlords can only charge tenants the following payments associated with a tenancy:
- Holding deposits (a maximum of 1 week's rent);
- Deposits (a maximum deposit of 5 weeks' rent for annual rent below