Norwood Place, Hyde Park
House with 4 bedrooms and 1 bathroom
Available from 1st July 2026
Bills included
We take the stress out of student living. All student homes have bills included!Plans and tours
Key features
4 Bedrooms
Hyde Park
House
One Bathroom
Managed by Landlord
Fully furnished
15mins walk
BBQ area
Bills included
Location
Description
SPACIOUS 4 BEDROOM HOUSE IN HYDE PARK
This is a spacious Four-bedroom house in hyde park, ideal for students or professionals.
Students Pay Monthly in July, August and September and then Quarterly in line with student loans.
Professionals pay Monthly in advance on the 1st of each month.
: £452.83 per person per month
- Deposit: £452.83 per person
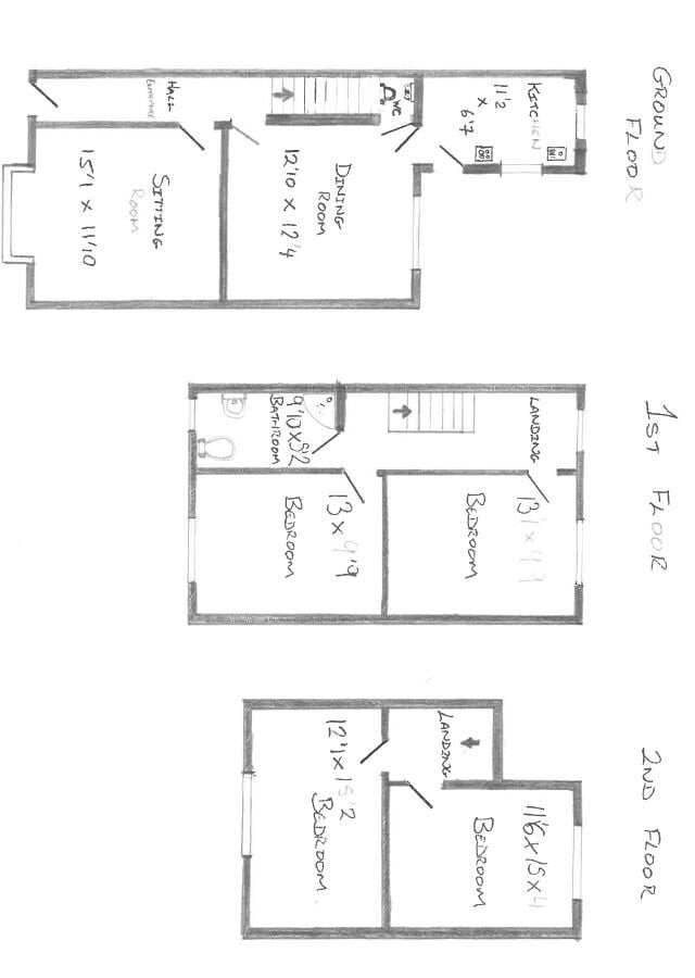
- Four bedroom spacious brick built house
- Large fully fitted Kitchen with large fridge freezer and washing machine.
- Cosy living room with sofas and coffee table
- Four fully furnished bedrooms with furniture and desks.
- Tiled bathroom with cubicle shower
- Great location in Hyde Park
- Council Tax Band: B
- Property Type: Through Terrace
- Electric supply: Mains.
- Gas supply: Yes.
- Water Supply: Meter.
- Sewerage: Mains.
- Heating: Gas Boiler.
- Water heating: Gas.
- Broadband: Ultrafast available (more information on speeds can be searched through the Ofcom website).
- Mobile Coverage: Likely coverage for voice and data (more information on providers can be searched through the Ofcom website).
- Parking: Street parking.
- Restrictions: No Restrictions
- Flood Risk: The property is at very low risk of surface water and very low risk of flooding due to rivers/sea. No flooding has occurred at the property in the last 5 years.
- Coalfield: This property is located on the coalfield.
- This property is in a great location close to transport links and local amenities.
Availability
EPC rating
An Energy Performance Certificate (EPC) tells you how energy efficient a property is.
The details shown about this property are part of a property advertisement. UniHomes does not guarantee the accuracy or completeness of the advertisement or any related information, and has no control over its content. The advertisement does not serve as official property particulars. The information is provided and maintained by the Letting Agent. Please contact the agent directly if you have any queries about the information provided in the advertisement.
Norwood Place, Hyde Park
- House
- with 4 bedrooms
- and 1 bathroom
Bills included
We take the stress out of student living. All student homes have bills included!£130 per person per week including bills
To arrange a viewing or find out more about this property .
If you need to contact the UniHomes Customer Service team because you haven't heard back from the letting agent following an enquiry (please allow 3 days) or any other reason call 0330 822 0266.
Please have the following reference number ready:
273783046More property and tenancy information
Extra features
| Parking | Ask agent |
|---|---|
| Property accessibility | Ask agent |
Utilities and Council Tax
| Council Tax band Student exemptions may apply | Ask agent |
|---|---|
| Electricity supply | Ask agent |
| Water supply | Ask agent |
| Gas supply | Ask agent |
| Broadband | Ask agent |
Tenancy information
Permitted payments and tenant information
Permitted payments
For properties in England, the Tenant Fees Act 2019 means that in addition to rent, lettings agents or landlords can only charge tenants the following payments associated with a tenancy:
- Holding deposits (a maximum of 1 week's rent);
- Deposits (a maximum deposit of 5 weeks' rent for annual rent below £50,000);
- Payments to change a tenancy agreement eg. change of sharer (capped at £50 or any reasonable costs);
- Payments associated with early termination of a tenancy (capped at the landlord's loss or the agent's reasonably incurred costs);
- Utilities, communication services e.g. gas, electricity, internet. TV licence and council tax.
- Interest payments for the late payment of rent (up to 3% above Bank of England's annual percentage rate);
- Reasonable costs for replacement of lost keys or other security devices;
- Contractual damages in the event of the tenant's default of a tenancy agreement; and
- Any other permitted payments under the Tenant Fees Act 2019.
Tenant information
In addition to publishing relevant fees, lettings agents are also required to publish details of:
- the redress scheme they are a member of; and
- the name of the approved or designated Client Money Protection scheme they are a member of (if any).