Ashley Road, Montpelier
House with 5 bedrooms and 5 bathrooms
Available from 15th June 2026
Bills included
We take the stress out of student living. All student homes have bills included!Plans and tours
Bills included
Location
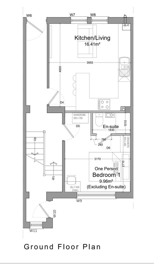
Description
BRAND NEW ROOM STUDENT PROPERTY 26/27 | 5 ENSUITES | PRIME BS5 LOCATION.
A fantastic opportunity to secure a brand newly renovated five-bedroom student property on Ashley Road! Currently undergoing a full refurbishment, this property will be finished to a very high modern standard throughout. In a highly sought-after location for students, offering excellent access to both the University of Bristol and the city centre. The surrounding area provides a wide selection of cafés, restaurants, supermarkets, and independent shops, with nearby Gloucester Road and Stokes Croft known for their vibrant food and social scene. Excellent transport links also make getting around the city quick and convenient.
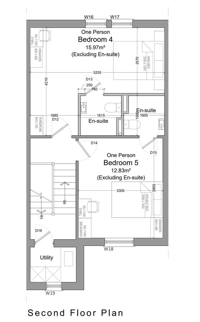
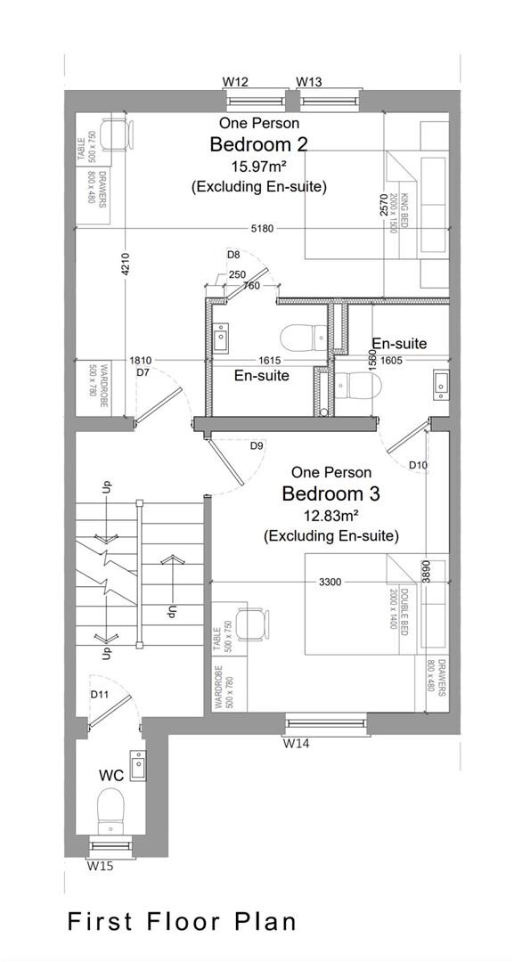
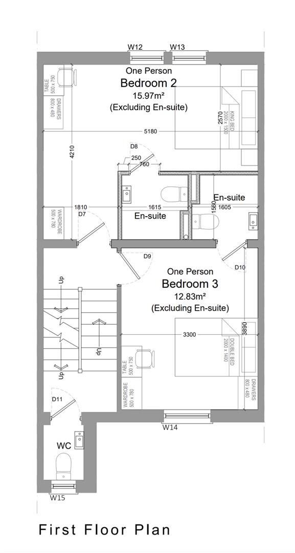
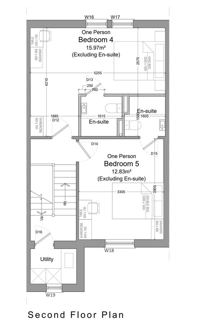
Designed with students in mind, the property will offer five generously sized double bedrooms with high ceilings enhancing the space that is on offer. Each bedroom will benefit from be fully furnished to include a double bed and mattress, desk and chair, wardrobe and bedside table. its own private ensuite shower room, providing both comfort and privacy. The property will also feature a stylish, open plan communal living area with a contemporary, fully quipped kitchen with fitted appliances and ample storage space. There is a separate utility room, which will minimise noise levels in the communal living space.
Early enquiries are strongly recommended due to high demand for high-spec student properties in this location.
Please note: Images provided are CGI and for illustrative purposes only, intended to demonstrate the expected finish and style of the completed renovation.
Availability
EPC rating
An Energy Performance Certificate (EPC) tells you how energy efficient a property is.
The details shown about this property are part of a property advertisement. UniHomes does not guarantee the accuracy or completeness of the advertisement or any related information, and has no control over its content. The advertisement does not serve as official property particulars. The information is provided and maintained by the Letting Agent. Please contact the agent directly if you have any queries about the information provided in the advertisement.
Ashley Road, Montpelier
- House
- with 5 bedrooms
- and 5 bathrooms
Bills included
We take the stress out of student living. All student homes have bills included!£230.77 per person per week including bills
To arrange a viewing or find out more about this property .
If you need to contact the UniHomes Customer Service team because you haven't heard back from the letting agent following an enquiry (please allow 3 days) or any other reason call 0330 822 0266.
Please have the following reference number ready:
1021879134More property and tenancy information
Extra features
| Parking | Ask agent |
|---|---|
| Property accessibility | Ask agent |
Utilities and Council Tax
| Council Tax band Student exemptions may apply | Ask agent |
|---|---|
| Electricity supply | Ask agent |
| Water supply | Ask agent |
| Gas supply | Ask agent |
| Broadband | Ask agent |
Permitted payments and tenant information
Permitted payments
For properties in England, the Tenant Fees Act 2019 means that in addition to rent, lettings agents or landlords can only charge tenants the following payments associated with a tenancy:
- Holding deposits (a maximum of 1 week's rent);
- Deposits (a maximum deposit of 5 weeks' rent for annual rent below