Coleman Street East Sussex, Hanover
House with 4 bedrooms and 1 bathroom
Available from 20th August 2026
Bills included
We take the stress out of student living. All student homes have bills included!Plans and tours
Key features
Private garden
Central Heating
Washing Machine
Microwave
Cooker
Freezer
Postgraduates Eligible
Undergraduate Student Eligible
Bills included
Location
Description
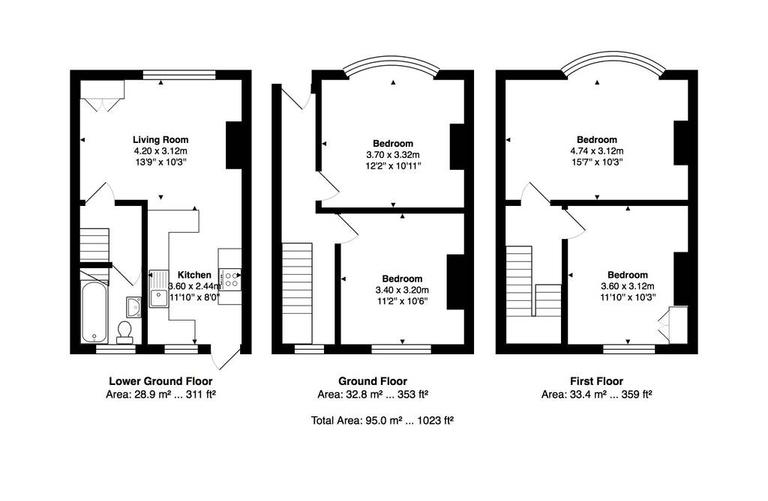
We are delighted to present this popular four double-bedroom fully furnished student house in the highly sought-after Hanover area, just a short walk from central Brighton and Phoenix Halls of Residence.
Spread over three floors, the property features bright and airy double bedrooms, all neutrally decorated. The ground floor comprises two large furnished bedrooms, while the basement includes a fully fitted kitchen with white goods and access to a rear paved garden. At the front, a spacious lounge provides ample seating, alongside a bathroom with shower over bath, toilet, and basin. The first floor offers two further large double bedrooms.
Ideal for students seeking comfortable, generously sized bedrooms in a central location, this property combines style, practicality, and convenience.
Early internal viewing is strongly recommended.
Availability
EPC rating
An Energy Performance Certificate (EPC) tells you how energy efficient a property is.
The details shown about this property are part of a property advertisement. UniHomes does not guarantee the accuracy or completeness of the advertisement or any related information, and has no control over its content. The advertisement does not serve as official property particulars. The information is provided and maintained by the Letting Agent. Please contact the agent directly if you have any queries about the information provided in the advertisement.
Coleman Street East Sussex, Hanover
- House
- with 4 bedrooms
- and 1 bathroom
Bills included
We take the stress out of student living. All student homes have bills included!£168 per person per week including bills
To arrange a viewing or find out more about this property .
If you need to contact the UniHomes Customer Service team because you haven't heard back from the letting agent following an enquiry (please allow 3 days) or any other reason call 0330 822 0266.
Please have the following reference number ready:
1034244899More property and tenancy information
Extra features
| Parking | Ask agent |
|---|---|
| Property accessibility | Ask agent |
Utilities and Council Tax
| Council Tax band Student exemptions may apply | Ask agent |
|---|---|
| Electricity supply | Ask agent |
| Water supply | Ask agent |
| Gas supply | Ask agent |
| Broadband | Ask agent |
Permitted payments and tenant information
Permitted payments
For properties in England, the Tenant Fees Act 2019 means that in addition to rent, lettings agents or landlords can only charge tenants the following payments associated with a tenancy:
- Holding deposits (a maximum of 1 week's rent);
- Deposits (a maximum deposit of 5 weeks' rent for annual rent below