Trinity Street East Sussex, Hanover
House with 5 bedrooms and 2 bathrooms
Available from 10th August 2026
Bills included
We take the stress out of student living. All student homes have bills included!Plans and tours
Key features
Private garden
Central Heating
Double glazing
Washing Machine
Microwave
Cooker
Freezer
Postgraduates Eligible
Bills included
Location
Description
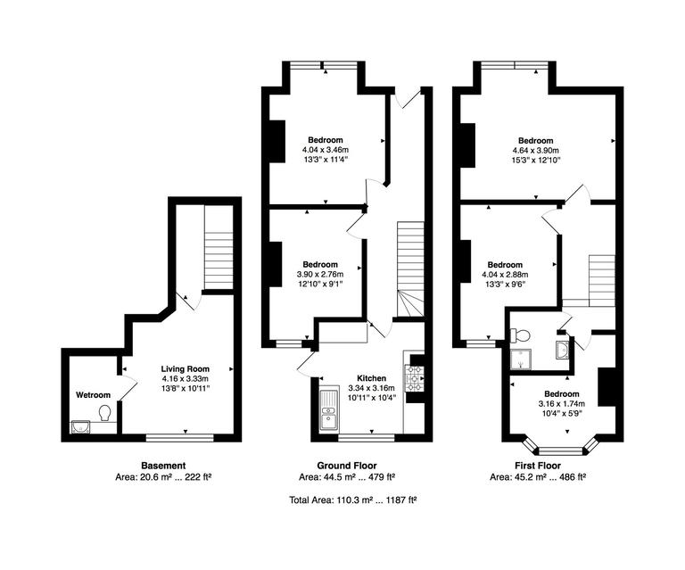
We are pleased to present this fantastic 5 double bedroom , perfectly positioned in the ever-popular Lewes Road and Hanover area, one of Brighton’s most vibrant student neighbourhoods.
The house offers generous living throughout, including five well-proportioned double bedrooms, a welcoming communal lounge ideal for relaxing or socialising, and a unique kitchen and dining space complete with table and chairs, great for shared meals or study sessions.
Just off Lewes Road, the property is ideally situated for students attending both the University of Brighton and the University of Sussex, with excellent bus and cycle routes providing quick and easy access to campus. You’ll also find an abundance of local amenities nearby, including cafes, bars, restaurants, supermarkets, and independent shops, as well as easy links to Brighton city centre and the seafront.
With its spacious layout, great communal areas, and unbeatable location, this property is perfect for students looking to make the most of Brighton’s lively and convenient Lewes Road lifestyle.
Availability
EPC rating
An Energy Performance Certificate (EPC) tells you how energy efficient a property is.
The details shown about this property are part of a property advertisement. UniHomes does not guarantee the accuracy or completeness of the advertisement or any related information, and has no control over its content. The advertisement does not serve as official property particulars. The information is provided and maintained by the Letting Agent. Please contact the agent directly if you have any queries about the information provided in the advertisement.
Trinity Street East Sussex, Hanover
- House
- with 5 bedrooms
- and 2 bathrooms
Bills included
We take the stress out of student living. All student homes have bills included!£169 per person per week including bills
To arrange a viewing or find out more about this property .
If you need to contact the UniHomes Customer Service team because you haven't heard back from the letting agent following an enquiry (please allow 3 days) or any other reason call 0330 822 0266.
Please have the following reference number ready:
1130706803More property and tenancy information
Extra features
| Parking | Ask agent |
|---|---|
| Property accessibility | Ask agent |
Utilities and Council Tax
| Council Tax band Student exemptions may apply | Ask agent |
|---|---|
| Electricity supply | Ask agent |
| Water supply | Ask agent |
| Gas supply | Ask agent |
| Broadband | Ask agent |
Permitted payments and tenant information
Permitted payments
For properties in England, the Tenant Fees Act 2019 means that in addition to rent, lettings agents or landlords can only charge tenants the following payments associated with a tenancy:
- Holding deposits (a maximum of 1 week's rent);
- Deposits (a maximum deposit of 5 weeks' rent for annual rent below