Peveril Road, Beeston
House with 6 bedrooms and 3 bathrooms
Available from 28th August 2026
Bills included
We take the stress out of student living. All student homes have bills included!Plans and tours
Bills included
Location
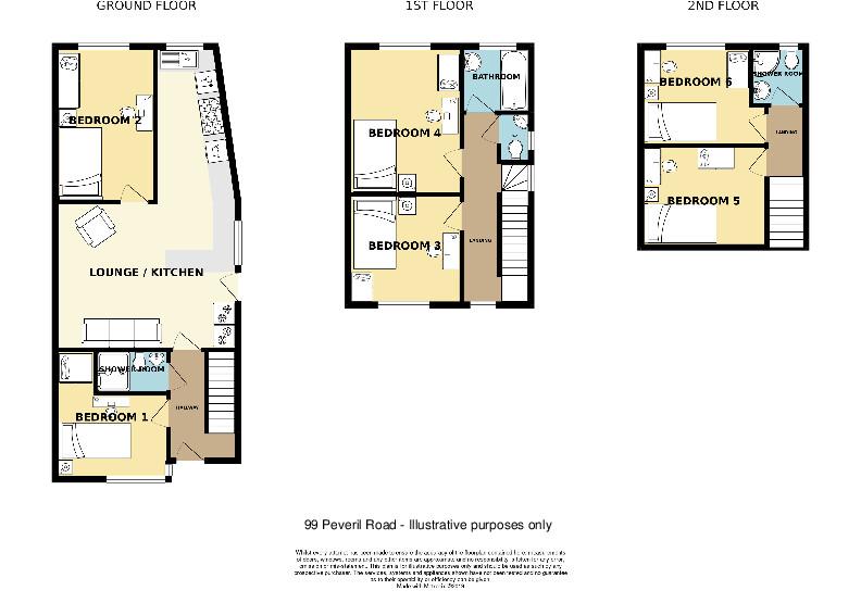
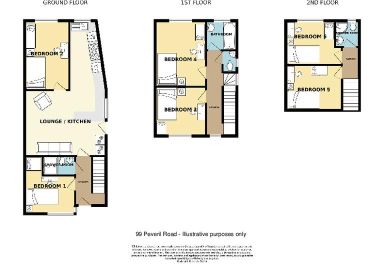
Description
STUDENT HOUSE TO RENT.
Fully furnished 6-bed house with spacious open plan kitchen and communal area, in the perfect location for the University of Nottingham. Close to the West entrance to University Park and Beeston town centre with its mixture of independent shops, pubs and cafes.
Price inclusive of bills (gas, electricity, water, tv licence and Virgin high speed internet) from August 2026.
Deposit is £350 per person and secured in the DPS (Deposit Protection Service)
Furnished double bedrooms with:
Small double bed & mattress
Fitted wardrobe
Bedside table & drawers
Pin board, bookcase, mirror, desk & chair
Wall mounted 24-inch TV
Fully fitted modern kitchen equipped with:
Double electric fan oven & 5-ring gas hob
2x fridge freezers
Combination microwave oven
Integrated dishwasher
Washer dryer
Modern base and wall units
Spacious furnished lounge dining area with:
Large sofa & armchair
Wall mounted 49-inch TV
Breakfast bar & stools
3x shower rooms & extra WC.
Large private rear garden with seated decking area & bike rack. Free on-street parking available (subject to availability). 3D Virtual Tour available on request.
Regular bus and tram service to and from Nottingham City Centre.
All tenants are required to provide a UK-based homeowner Guarantor. Without this we would require an increased deposit and full rent for the Contract term in advance.
EPC rating: D - 66
Call us now for further details and to book a viewing quoting ref 99PR.
Availability
EPC rating
An Energy Performance Certificate (EPC) tells you how energy efficient a property is.
The details shown about this property are part of a property advertisement. UniHomes does not guarantee the accuracy or completeness of the advertisement or any related information, and has no control over its content. The advertisement does not serve as official property particulars. The information is provided and maintained by the Letting Agent. Please contact the agent directly if you have any queries about the information provided in the advertisement.
Peveril Road, Beeston
- House
- with 6 bedrooms
- and 3 bathrooms
Bills included
We take the stress out of student living. All student homes have bills included!£99 per person per week including bills
To arrange a viewing or find out more about this property .
If you need to contact the UniHomes Customer Service team because you haven't heard back from the letting agent following an enquiry (please allow 3 days) or any other reason call 0330 822 0266.
Please have the following reference number ready:
1236747500More property and tenancy information
Extra features
| Parking | Ask agent |
|---|---|
| Property accessibility | Ask agent |
Utilities and Council Tax
| Council Tax band Student exemptions may apply | Ask agent |
|---|---|
| Electricity supply | Ask agent |
| Water supply | Ask agent |
| Gas supply | Ask agent |
| Broadband | Ask agent |
Tenancy information
Permitted payments and tenant information
Permitted payments
For properties in England, the Tenant Fees Act 2019 means that in addition to rent, lettings agents or landlords can only charge tenants the following payments associated with a tenancy:
- Holding deposits (a maximum of 1 week's rent);
- Deposits (a maximum deposit of 5 weeks' rent for annual rent below £50,000);
- Payments to change a tenancy agreement eg. change of sharer (capped at £50 or any reasonable costs);
- Payments associated with early termination of a tenancy (capped at the landlord's loss or the agent's reasonably incurred costs);
- Utilities, communication services e.g. gas, electricity, internet. TV licence and council tax.
- Interest payments for the late payment of rent (up to 3% above Bank of England's annual percentage rate);
- Reasonable costs for replacement of lost keys or other security devices;
- Contractual damages in the event of the tenant's default of a tenancy agreement; and
- Any other permitted payments under the Tenant Fees Act 2019.
Tenant information
In addition to publishing relevant fees, lettings agents are also required to publish details of:
- the redress scheme they are a member of; and
- the name of the approved or designated Client Money Protection scheme they are a member of (if any).