Corner House, Cathays
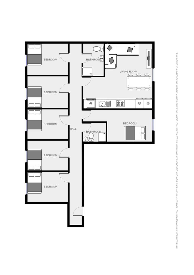
Apartment with 4 bedrooms and 2 bathrooms
Available from 1st July 2026
Bills included
We take the stress out of student living. All student homes have bills included!Plans and tours
Key features
Four bedroom flat share
Half rent July and Full rent August
A purpose built six-bedroom apartment within a 10 minute walk of Cardiff University
Two bathrooms
Open-plan kitchen/lounge
Washer/dryer and dishwasher
NO onsite parking available
Bills included
Location
Description
CHECK OUT THIS VIDEO TOUR: FOUR BEDROOM STUDENT FLAT SHARE. Situated on the corner of Woodville Road and Crwys Road is Corner House; a purpose -built block of student apartments.This six-bedroom flat is on the second-floor of the building and boasts a designer finish with state-of-the-art furniture, a corner sofa and a wall-mounted TV, offering comfortable, stylish and open-plan living.The kitchen is equipped with modern appliances, including a washer/dryer and dishwasher. Situated within a 10 minute walk of Cardiff University, the building comes with a secure video entry system to each flat, lift access to each of the six floors, a communal garden area and storage for bicycles.
- To secure this property, you will be required to complete an Application Form and pay a Holding Deposit equal to – at most – one weeks' rent. Thereafter, we will conduct a Referencing Process using the information provided within your Application Form. If your Application is successful, your Holding Deposit will be used towards your Security Deposit (if a Security Deposit isn't payable, your Holding Deposit will be used towards your first month's rent). If you withdraw your Application or provide false/misleading within it, or you fail to adhere to the terms of the Application, we may retain your Holding Deposit.- If the property has an allocated vehicle bay, it will be stated above, and you may be required to display or have a permit to use it. Where an allocated vehicle bay is not included, there may be on-street bays available outside the property or on the surrounding roads. These bays may be time restricted and/or require a permit. For more information on bay availability and permits, please contact either the relevant concierge/building management (if applicable) or your local authority.- For an indication of specific broadband speeds and supply, or mobile coverage in the area, please refer to Ofcom's Mobile And Broadband Checker.- Unless otherwise stated, we believe the water, electricity and gas (if there is gas) supplies to the property to be fed via mains supplies, with the building of standard construction.- While every reasonable effort has been made to ensure the accuracy of this advert and it is true to the best of our knowledge, you are advised to make your own enquiries, particularly in respect of furnishings and appliances that are included/not included, and what vehicle bay facilities are available.
Availability
EPC rating
An Energy Performance Certificate (EPC) tells you how energy efficient a property is.
The details shown about this property are part of a property advertisement. UniHomes does not guarantee the accuracy or completeness of the advertisement or any related information, and has no control over its content. The advertisement does not serve as official property particulars. The information is provided and maintained by the Letting Agent. Please contact the agent directly if you have any queries about the information provided in the advertisement.
Corner House, Cathays
- Apartment
- with 4 bedrooms
- and 2 bathrooms
Bills included
We take the stress out of student living. All student homes have bills included!£132 per person per week including bills
To arrange a viewing or find out more about this property .
If you need to contact the UniHomes Customer Service team because you haven't heard back from the letting agent following an enquiry (please allow 3 days) or any other reason call 0330 822 0266.
Please have the following reference number ready:
1423322604More property and tenancy information
Extra features
| Parking | Ask agent |
|---|---|
| Property accessibility | Ask agent |
Utilities and Council Tax
| Council Tax band Student exemptions may apply | Ask agent |
|---|---|
| Electricity supply | Ask agent |
| Water supply | Ask agent |
| Gas supply | Ask agent |
| Broadband | Ask agent |
To secure a property after viewing it, we will ask you to complete an Application Form and pay a Holding Deposit equal to – at most – one weeks' rent. Your Holding Deposit will then be used towards your Security Deposit.