Grimthorpe Terrace, Headingley
House with 6 bedrooms and 7 bathrooms
Available from 1st July 2026
Bills included
We take the stress out of student living. All student homes have bills included!Plans and tours
Key features
All-ensuite
Cleaner included
Washer and dryer
Dishwasher
Stunning kitchen with peninsula
Additional guest toilet
Fully refurbished
TV in all bedrooms
Bills included
Location
Description
ALL En-SUITE Luxury Property in Central Headingley
All-inclusive (including council tax), luxury 6-bed house in Central Headingley. Completely renovated in the summer of 2024, this property boasts a high-end finish with luxury fittings throughout.
Prime Location: Situated in central Headingley, the property offers on-road front and rear parking, making it convenient for residents.
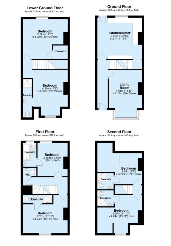
Spacious Bedrooms: Each of the 6 large double bedrooms features its own en-suite bathroom with feature wallpaper, providing privacy and style. An additional communal guest toilet is also available.
All-Inclusive Bills: Enjoy the convenience of all utilities and council tax included, along with super-fast Virgin Business fibre WiFi, and a monthly gardener and cleaner.
Comfortable Living Room: The separate living room is perfect for relaxation, featuring a 50-inch smart TV, 2 luxury sofas, an occasional chair, and wood flooring.
Modern Kitchen: The brand new Howdens kitchen is a highlight, with integrated appliances and a stunning peninsula with leather bar stools. It includes an integrated washing machine, separate dryer, dishwasher, 2 full-sized tall fridge freezers, and a brand new oven and hob, making it the perfect space for socialising.
Well-Equipped Bedrooms: Each bedroom is furnished with a double bed, new luxury mattress, chest of drawers, wardrobe, desk, chair, bedside table, 33-inch smart TV, Cat 6 ethernet cabling for fast hard-wired connection, plenty of sockets, and floating display shelving.
Tenancy Management App: The landlord provides a tenancy management app for easy logging and tracking of maintenance issues and communications.
Managed by Ixana Property, a provider of luxury accommodation and finalists for 5 awards at the HMO Awards this year, this stylish house share offers everything you need for a comfortable and convenient lifestyle.
Availability
EPC rating
An Energy Performance Certificate (EPC) tells you how energy efficient a property is.
The details shown about this property are part of a property advertisement. UniHomes does not guarantee the accuracy or completeness of the advertisement or any related information, and has no control over its content. The advertisement does not serve as official property particulars. The information is provided and maintained by the Letting Agent. Please contact the agent directly if you have any queries about the information provided in the advertisement.
Grimthorpe Terrace, Headingley
- House
- with 6 bedrooms
- and 7 bathrooms
Bills included
We take the stress out of student living. All student homes have bills included!£169 per person per week including bills
To arrange a viewing or find out more about this property .
If you need to contact the UniHomes Customer Service team because you haven't heard back from the letting agent following an enquiry (please allow 3 days) or any other reason call 0330 822 0266.
Please have the following reference number ready:
1435383528More property and tenancy information
Extra features
| Parking | Parking available on street at front and rear |
|---|---|
| Property accessibility | Ask agent |
Utilities and Council Tax
| Council Tax band Student exemptions may apply | Ask agent |
|---|---|
| Electricity supply | Ask agent |
| Water supply | Ask agent |
| Gas supply | Ask agent |
| Broadband | Ask agent |
Tenancy information
Permitted payments and tenant information
Permitted payments
For properties in England, the Tenant Fees Act 2019 means that in addition to rent, lettings agents or landlords can only charge tenants the following payments associated with a tenancy:
- Holding deposits (a maximum of 1 week's rent);
- Deposits (a maximum deposit of 5 weeks' rent for annual rent below £50,000);
- Payments to change a tenancy agreement eg. change of sharer (capped at £50 or any reasonable costs);
- Payments associated with early termination of a tenancy (capped at the landlord's loss or the agent's reasonably incurred costs);
- Utilities, communication services e.g. gas, electricity, internet. TV licence and council tax.
- Interest payments for the late payment of rent (up to 3% above Bank of England's annual percentage rate);
- Reasonable costs for replacement of lost keys or other security devices;
- Contractual damages in the event of the tenant's default of a tenancy agreement; and
- Any other permitted payments under the Tenant Fees Act 2019.
Tenant information
In addition to publishing relevant fees, lettings agents are also required to publish details of:
- the redress scheme they are a member of; and
- the name of the approved or designated Client Money Protection scheme they are a member of (if any).