Filton Avenue, Filton
House with 6 bedrooms and 3 bathrooms
Available from 4th August 2026
Bills included
We take the stress out of student living. All student homes have bills included!Plans and tours
Key features
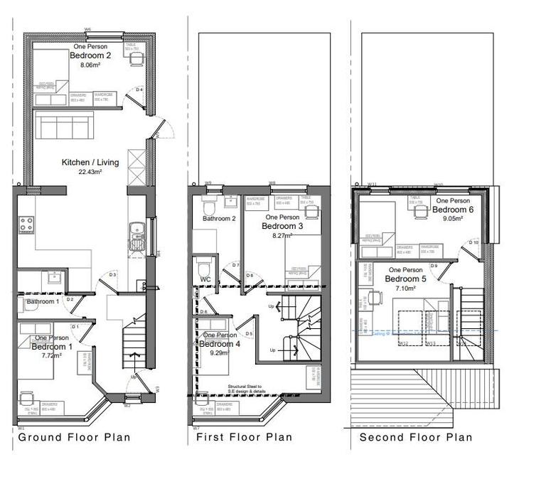
Six Generous Sized Double Bedrooms, Three shower rooms
Internet included in rental
25 minute walk to UWE Frenchay
Excellent transport links & local amenities
Open Plan communal living space with Smart TV
Ample street parking with no permit required
Modern Design and High Spec throughout
Low maintenance rear garden
Bills included
Location
Description
* Available to secure for 26/27 - SIX BEDROOMS*
**4 BEDROOMS LEFT**
Available from August 4th 2026 - Total (pm), inclusive of Internet connection with Wifi Points on each floor, and ethernet points in every bedroom.
This beautifully refurbished is perfectly located on Filton Avenue offering excellent transport links to both UWE and UOB.
The property has been renovated to a high standard with a large, open plan kitchen, living area complete with flatscreen Smart TV and sofa. The kitchen is fully equipped with everything you need, including two ovens, hobs, cooker hoods, a fridge freezer, dishwasher and two washer dryers, making shared living simple and convenient.
Each bedroom is fully furnished with a double bed and mattress, desk, chair, and clothes storage, providing a comfortable and private study space for every tenant. The property also includes two modern shower rooms and an additional WC, ensuring plenty of facilities for everyone.
Outside, the low-maintenance garden with patio and artificial grass offers a great outdoor space for all.
Please contact us to check the requirements each tenant and guarantor will need to meet in order to reserve the property including the holding that will need to be paid which equates to 1 week's rent. This will be deducted from your first rental payment at the start of your tenancy.
Availability
EPC rating
An Energy Performance Certificate (EPC) tells you how energy efficient a property is.
The details shown about this property are part of a property advertisement. UniHomes does not guarantee the accuracy or completeness of the advertisement or any related information, and has no control over its content. The advertisement does not serve as official property particulars. The information is provided and maintained by the Letting Agent. Please contact the agent directly if you have any queries about the information provided in the advertisement.
Filton Avenue, Filton
- House
- with 6 bedrooms
- and 3 bathrooms
Bills included
We take the stress out of student living. All student homes have bills included!£178.92 per person per week including bills
To arrange a viewing or find out more about this property .
If you need to contact the UniHomes Customer Service team because you haven't heard back from the letting agent following an enquiry (please allow 3 days) or any other reason call 0330 822 0266.
Please have the following reference number ready:
147418382More property and tenancy information
Extra features
| Parking | On Street |
|---|---|
| Property accessibility | Ask agent |
Utilities and Council Tax
| Council Tax band Student exemptions may apply | Ask agent |
|---|---|
| Electricity supply | Ask agent |
| Water supply | Ask agent |
| Gas supply | Ask agent |
| Broadband | Ask agent |
Permitted payments and tenant information
Permitted payments
For properties in England, the Tenant Fees Act 2019 means that in addition to rent, lettings agents or landlords can only charge tenants the following payments associated with a tenancy:
- Holding deposits (a maximum of 1 week's rent);
- Deposits (a maximum deposit of 5 weeks' rent for annual rent below