Gloucester Place, London Road
House with 2 bedrooms and 2 bathrooms
Available from 1st July 2026
Bills included
We take the stress out of student living. All student homes have bills included!Plans and tours
Key features
Students
Bills included
Location
Description
| NO OPTION AVAILABLE.
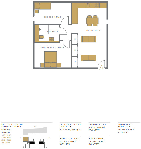
This generous and well-presented student property has 2 bedrooms making it the ideal home for student sharers looking to live the student lifestyle in the city.
Student Property.
Style: Apartment.
Bedrooms: 2
Bathrooms: 1
Living/Social Space: 1
Location: City Centre.
Important information regarding this property.
Prospective tenants are advised of the following information in relation to this property.
Deposit: Equivalent to 5 weeks’ rent. A No Option may be available for this property, please enquire.
Furnished Type: Furnished/ Unfurnished.
Parking Availability: None.
Utilities: Mains supplied gas, electricity, water & sewerage.
Council Tax band: E.
Broadband: up to 1000mb available. (source: OFCOM) please check to confirm type and speed checker.ofcom.org.uk.
Mobile coverage: Indoor: Voice & Data. Outdoor: Voice & Data & Enhanced Data. (source: OFCOM) checker.ofcom.org.uk.
Want to apply?
Please enquire.
Disclaimer:
Important information is provided in good faith and to the best of our knowledge, based on information available at the time of publication, which may change from time to time. Prospective tenants are encouraged to make their own further enquiries in regard to Important Information regarding the property. We are happy to assist any prospective tenant in doing so, where practical. Please enquire for further detail.
Please be aware photographs are for marketing purposes only and the actual contents and furniture included may vary.
Please note that council tax is not payable where all tenants are in full time higher education.
Property reference: BVB260026
Availability
EPC rating
An Energy Performance Certificate (EPC) tells you how energy efficient a property is.
The details shown about this property are part of a property advertisement. UniHomes does not guarantee the accuracy or completeness of the advertisement or any related information, and has no control over its content. The advertisement does not serve as official property particulars. The information is provided and maintained by the Letting Agent. Please contact the agent directly if you have any queries about the information provided in the advertisement.
Gloucester Place, London Road
- House
- with 2 bedrooms
- and 2 bathrooms
Bills included
We take the stress out of student living. All student homes have bills included!£273 per person per week including bills
To arrange a viewing or find out more about this property .
If you need to contact the UniHomes Customer Service team because you haven't heard back from the letting agent following an enquiry (please allow 3 days) or any other reason call 0330 822 0266.
Please have the following reference number ready:
1499095487More property and tenancy information
Extra features
| Parking | Ask agent |
|---|---|
| Property accessibility | Ask agent |
Utilities and Council Tax
| Council Tax band Student exemptions may apply | Ask agent |
|---|---|
| Electricity supply | Ask agent |
| Water supply | Ask agent |
| Gas supply | Ask agent |
| Broadband | Ask agent |
Permitted payments and tenant information
Permitted payments
For properties in England, the Tenant Fees Act 2019 means that in addition to rent, lettings agents or landlords can only charge tenants the following payments associated with a tenancy:
- Holding deposits (a maximum of 1 week's rent);
- Deposits (a maximum deposit of 5 weeks' rent for annual rent below