Knowland Grove, City Centre
House with 3 bedrooms and 1 bathroom
Available from 1st September 2026
Bills included
We take the stress out of student living. All student homes have bills included!Plans and tours
Key features
Spacious 3-Bedroom
modern communal living area
fully equipped kitchen
Bills included
Location
Description
Spacious 3-Bedroom HMO Recently Refurbished – NR5, Norwich.
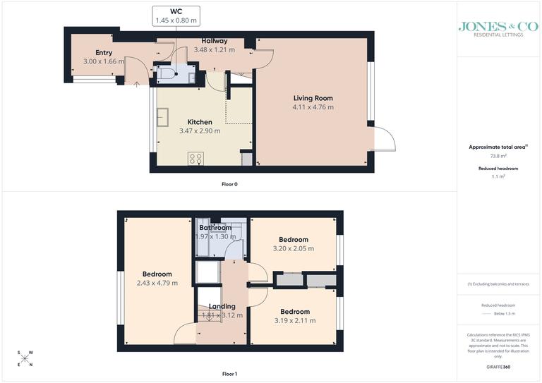
This newly refurbished three-bedroom HMO property is ideally located in the popular NR5 area of Norwich and is perfect for sharers. All three double bedrooms are available and come fully furnished with new furniture throughout.
Each bedroom is generously sized and includes a bed, desk, and chair, making them ideal for both working professionals and students.
The property benefits from a modern communal living area, featuring a large L-shaped sofa, TV, and a dining table with chairs, providing a comfortable space to relax or socialise.
The fully equipped kitchen includes an oven, electric hob, fridge/freezer, washing machine, and microwave, offering everything needed for convenient day-to-day living.
Additional features include:
Downstairs WC.
Upstairs bathroom with bath, shower, and toilet.
Private rear garden area.
On-street parking available.
Finished to a high standard following recent refurbishment, this property offers comfortable, modern living in a well-connected Norwich location.
Early viewing is highly recommended.
Availability
EPC rating
An Energy Performance Certificate (EPC) tells you how energy efficient a property is.
The details shown about this property are part of a property advertisement. UniHomes does not guarantee the accuracy or completeness of the advertisement or any related information, and has no control over its content. The advertisement does not serve as official property particulars. The information is provided and maintained by the Letting Agent. Please contact the agent directly if you have any queries about the information provided in the advertisement.
Knowland Grove, City Centre
- House
- with 3 bedrooms
- and 1 bathroom
Bills included
We take the stress out of student living. All student homes have bills included!£132.69 per person per week including bills
To arrange a viewing or find out more about this property .
If you need to contact the UniHomes Customer Service team because you haven't heard back from the letting agent following an enquiry (please allow 3 days) or any other reason call 0330 822 0266.
Please have the following reference number ready:
172897891More property and tenancy information
Extra features
| Parking | Ask agent |
|---|---|
| Property accessibility | Ask agent |
Utilities and Council Tax
| Council Tax band Student exemptions may apply | Ask agent |
|---|---|
| Electricity supply | Ask agent |
| Water supply | Ask agent |
| Gas supply | Ask agent |
| Broadband | Ask agent |
Permitted payments and tenant information
Permitted payments
For properties in England, the Tenant Fees Act 2019 means that in addition to rent, lettings agents or landlords can only charge tenants the following payments associated with a tenancy:
- Holding deposits (a maximum of 1 week's rent);
- Deposits (a maximum deposit of 5 weeks' rent for annual rent below