Portland Street, Golden Triangle
House with 3 bedrooms and 1 bathroom
Available from 31st July 2026
Bills included
We take the stress out of student living. All student homes have bills included!Plans and tours
Key features
Gas central heated
Double glazed
Close to amenities
Bills included
Location
Description
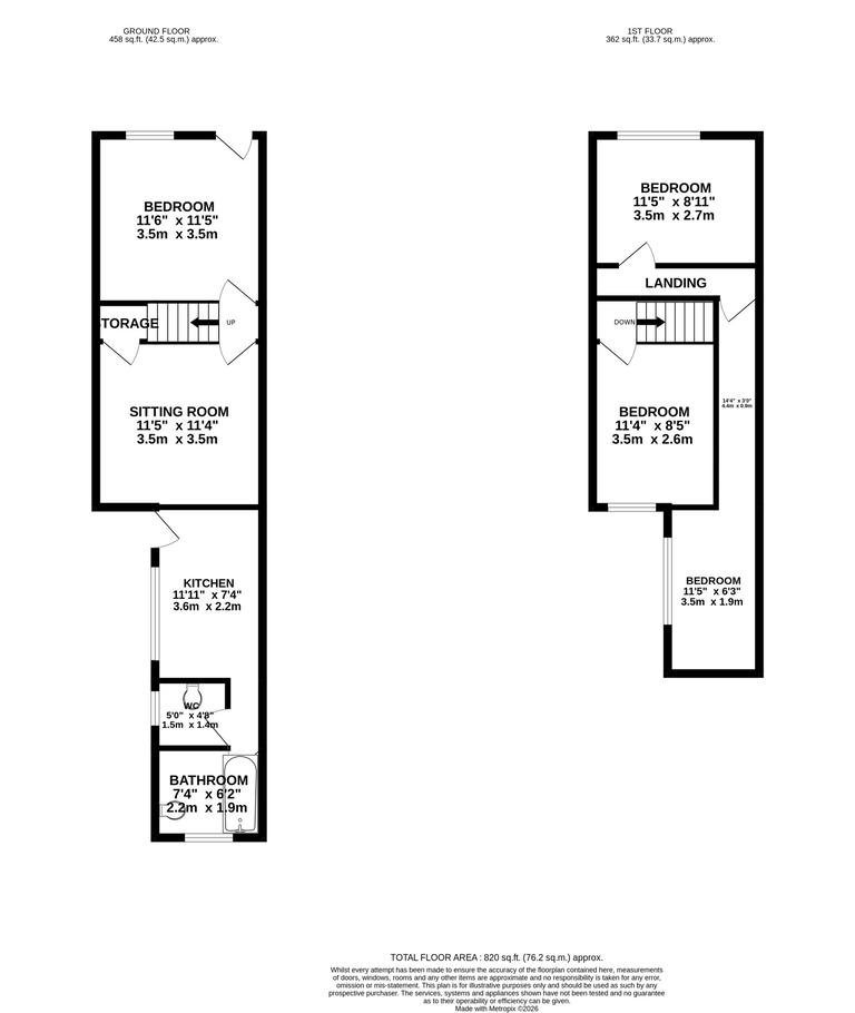
A fully furnished four bedroom student terrace house situated just off Unthank Road of which is located within the prestigious Golden Triangle with convenience stores, restaurants and some fantastic pubs being in close proximity this is the ideal location for students.
The property offers a lounge with sofas, modern fitted kitchen with cooker and fridge/freezer.
There is downstairs bathroom with a shower over the bath and a separate toilet.
Upstairs offers three bedrooms. The property is gas central heated and offers a small rear garden and on street permit parking. This property also has UPVC windows.
Availability
EPC rating
An Energy Performance Certificate (EPC) tells you how energy efficient a property is.
The details shown about this property are part of a property advertisement. UniHomes does not guarantee the accuracy or completeness of the advertisement or any related information, and has no control over its content. The advertisement does not serve as official property particulars. The information is provided and maintained by the Letting Agent. Please contact the agent directly if you have any queries about the information provided in the advertisement.
Portland Street, Golden Triangle
- House
- with 3 bedrooms
- and 1 bathroom
Bills included
We take the stress out of student living. All student homes have bills included!£141 per person per week including bills
To arrange a viewing or find out more about this property .
If you need to contact the UniHomes Customer Service team because you haven't heard back from the letting agent following an enquiry (please allow 3 days) or any other reason call 0330 822 0266.
Please have the following reference number ready:
1913653721More property and tenancy information
Extra features
| Parking | Ask agent |
|---|---|
| Property accessibility | Ask agent |
Utilities and Council Tax
| Council Tax band Student exemptions may apply | Ask agent |
|---|---|
| Electricity supply | Ask agent |
| Water supply | Ask agent |
| Gas supply | Ask agent |
| Broadband | Ask agent |
Permitted payments and tenant information
Permitted payments
For properties in England, the Tenant Fees Act 2019 means that in addition to rent, lettings agents or landlords can only charge tenants the following payments associated with a tenancy:
- Holding deposits (a maximum of 1 week's rent);
- Deposits (a maximum deposit of 5 weeks' rent for annual rent below