Coleman Street, Hanover
House with 4 bedrooms and 1 bathroom
Available from 8th September 2026
Bills included
We take the stress out of student living. All student homes have bills included!Plans and tours
Key features
Open Plan Living Space
Fully Furnished
Popular Hanover Area
Good Bus Connection To Universities
Modern Shower Room
Close To City Centre
Large Fully Equipped Kitchen
Spacious Patio Area
Bills included
Location
Description
WILL HAVE FULL REDECORATION THROUGHOUT | CLEANER INCLUDED | GARDENER INCLUDED | Tenancy Length: 11.5 Months | Four Double Bedrooms | Open Plan Living Space | Fully Furnished | Popular Hanover Area | Good Bus Connection To Universities | Modern Shower Room | Close To City Centre | Large Fully Equipped Kitchen | Spacious Patio Area | Available Sept 2026 |
The house will have a redecoration and full repaint throughout, before the start of the September 2026 tenancy.
The rent includes:
*Gas
*Electricity
*Water
*Broadband
*TV Licence
*Cleaner every 2 weeks **
*gardener three times a year
** The cleaner will only clean the common ways, halls stairs landlings, bathroom and kitchen.
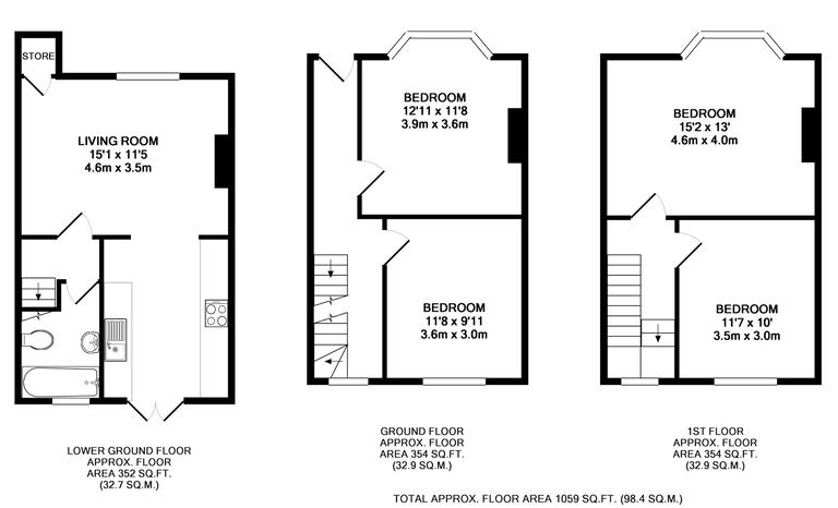
This large four double bedroom student house is set in the heart of the popular Hanover area of Brighton and is located near the Level and Lewes Road. This is a desired area for students with all its amenities and transport connections.
The property is finished to a high standard throughout, with a large open plan living area set in the lower ground floor. The kitchen is fully equipped and leads out to spacious patio area.
All four bedrooms are good-sized doubles and in each bedroom, is a wardrobe, desk and chair, chest of draws and double bed provided. The property is fully furnished and has gas central heating. There is the option of permit parking or pay and display for residence and visitors.
All of our properties are strictly no smoking.
All tenants will be required to provide a guarantor who will need to be a UK resident, have clean credit history and have an income of 3 x times the individual tenant's rent share. Guarantors’ income could be in the form of salary, dividends, savings or pensions. Self-employed guarantors MUST have a minimum of one year’s worth of accounts and can be verified using an accountant’s reference or by providing their self-assessment form from HMRC.
All tenants looking to reserve this property will need to be able to provide suitable evidence of their right to rent in the UK, in person at the Q Estate Agents office, or by share-code (non-British citizens).
Availability
EPC rating
An Energy Performance Certificate (EPC) tells you how energy efficient a property is.
The details shown about this property are part of a property advertisement. UniHomes does not guarantee the accuracy or completeness of the advertisement or any related information, and has no control over its content. The advertisement does not serve as official property particulars. The information is provided and maintained by the Letting Agent. Please contact the agent directly if you have any queries about the information provided in the advertisement.
Coleman Street, Hanover
- House
- with 4 bedrooms
- and 1 bathroom
Bills included
We take the stress out of student living. All student homes have bills included!£197 per person per week including bills
To arrange a viewing or find out more about this property .
If you need to contact the UniHomes Customer Service team because you haven't heard back from the letting agent following an enquiry (please allow 3 days) or any other reason call 0330 822 0266.
Please have the following reference number ready:
2034095649More property and tenancy information
Extra features
| Parking | Ask agent |
|---|---|
| Property accessibility | Ask agent |
Utilities and Council Tax
| Council Tax band Student exemptions may apply | Ask agent |
|---|---|
| Electricity supply | Ask agent |
| Water supply | Ask agent |
| Gas supply | Ask agent |
| Broadband | Ask agent |
Permitted payments and tenant information
Permitted payments
For properties in England, the Tenant Fees Act 2019 means that in addition to rent, lettings agents or landlords can only charge tenants the following payments associated with a tenancy:
- Holding deposits (a maximum of 1 week's rent);
- Deposits (a maximum deposit of 5 weeks' rent for annual rent below