Baden Road, Coombe Road
House with 6 bedrooms and 2 bathrooms
Available from 31st August 2026
Bills included
We take the stress out of student living. All student homes have bills included!Plans and tours
Key features
The house is conveniently located near shops and public transport to Brighton and Sussex University!
Well sized kitchen with with oven and fridge.
Spacious garden ideal for BBQs and socialising with your housemates or friends!
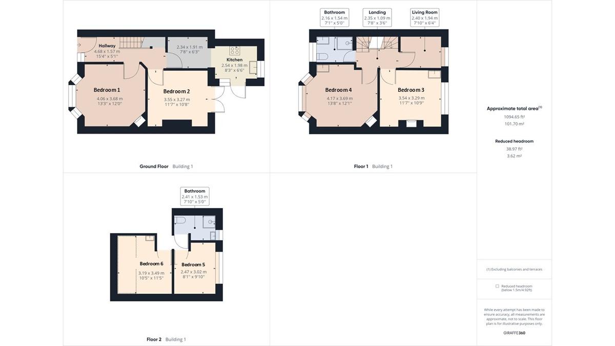
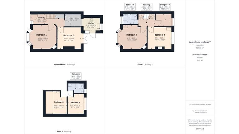
2 Bathrooms with showers, toilet, and sink
Each bedroom has a double bed and mattress, desk and chair, and wardrobe.
Bills included
Location
Description
ALL STUDENTS WELCOME! We offer flexible guarantor options including Housing Hand and rent-in-advance to make the process easy for you. Contact us today for a live video tour
This is the one you've been waiting for. A spacious 6-bed where the location is second to none. Forget long bus rides home—you're positioned perfectly in a vibrant student hub, a short walk from the main bus routes on Lewes Road. Combining an incredible location with great value, a private garden for summer, and six double bedrooms, this house is the ideal base for your university life.
KEY INFORMATION AT A GLANCE:
Rent: 139 per person, per week. To make life easy, you can get a comprehensive bills package from our trusted partner company for a fixed 22 per person, per week. This means your total weekly cost for and all bills (Gas, Electricity, Water, TV Licence & high-speed Wi-Fi) would be just 161. You simply pay the to us, and the bills package directly to our partner. We can help you get it set up in minutes.
Deposit: Choose between a traditional 5-week deposit (protected with Mydeposits) OR a much smaller one-off payment via a deposit replacement scheme.
Council Tax: Band C (Full-time students are exempt, subject to application to the council)
Energy Performance (EPC): Rating D
Licence: Fully compliant with a Brighton & Hove HMO Licence.
Available From: 31st August 2026
Floorplan: ✅ Included in the image gallery.
WHY YOU'LL LOVE THIS HOUSE:
📍 THE PERFECT LOCATION: Convenience & Calm: This is the property's masterstroke. Enjoy the absolute best of both worlds: all the convenience of a prime location, with the peace and quiet of a residential street. You are perfectly positioned just off the main Lewes Road. This means you are only a moment's walk from the area's best shops, cafes, and pubs, but you don't have the constant noise right outside your window. Crucially, the major bus stops are at the end of the road, providing fast and frequent services to both the University of Sussex and University of Brighton campuses, as well as the city centre and seafront.
🛏️ 6 FULLY FURNISHED DOUBLE BEDROOMS: No small rooms here! Every room has a double bed (with a clean mattress protector), wardrobe, desk, chair, and its own individual lock for privacy.
💡 IDEAL FOR STUDY: Every bedroom is set up to be your personal study space. Each comes furnished with a desk and chair, offering a comfortable and dedicated area to focus on your university work outside of the library.
🚿 2 BATHROOMS: With two bathrooms featuring walk-in showers and toilets, those morning queues before lectures are a thing of the past.
✨ VANITY SINKS IN BEDROOMS: A fantastic feature for a shared house! Many of the bedrooms come equipped with their own private vanity sink and mirror, adding a superb level of convenience and privacy to your personal space. This really helps ease the morning bathroom queues!
🌳 PRIVATE GARDEN OASIS: A huge bonus in this central location! The private rear garden is the perfect spot to relax with housemates, enjoy a summer BBQ, or get some revision done in the fresh air.
🛋️ GREAT COMMUNAL SPACE: The property features a comfortable communal lounge area, perfect for socialising and unwinding after a day on campus.
IMPORTANT INFORMATION:
🚌 Transport Links: You are on a direct and frequent bus route to both Sussex University and Brighton city centre (including the 24, 25, & 49 routes). The main bus stop is just a 3-minute walk away.
🤝 Guarantor Information: We are flexible with our guarantor requirements. Our standard process is a UK-based guarantor who can pass an affordability check (note: they do not need to be a homeowner). If that isn’t possible, we have other options available, including accepting Housing Hand or discussing a rent-in-advance payment schedule. We aim to find a solution that works for you.
📹 Virtual Tour: A full video tour is available! Please ask for the link.
🅿️ Parking Information: This property is in Parking Zone U. It is the tenant's responsibility to check their own eligibility and the availability of permits directly with Brighton & Hove City Council before signing the tenancy agreement.
This house offers outstanding value and a fantastic set of features.
It must be seen to be fully appreciated – contact us today to find out more and arrange a viewing!
Availability
EPC rating
An Energy Performance Certificate (EPC) tells you how energy efficient a property is.
The details shown about this property are part of a property advertisement. UniHomes does not guarantee the accuracy or completeness of the advertisement or any related information, and has no control over its content. The advertisement does not serve as official property particulars. The information is provided and maintained by the Letting Agent. Please contact the agent directly if you have any queries about the information provided in the advertisement.
Baden Road, Coombe Road
- House
- with 6 bedrooms
- and 2 bathrooms
Bills included
We take the stress out of student living. All student homes have bills included!£161 per person per week including bills
To arrange a viewing or find out more about this property .
If you need to contact the UniHomes Customer Service team because you haven't heard back from the letting agent following an enquiry (please allow 3 days) or any other reason call 0330 822 0266.
Please have the following reference number ready:
25845111More property and tenancy information
Extra features
| Parking | Controlled parking zone U covers the area around Coombe Road |
|---|---|
| Property accessibility | Ask agent |
Utilities and Council Tax
| Council Tax band Student exemptions may apply | C |
|---|---|
| Electricity supply | Ask agent |
| Water supply | Ask agent |
| Gas supply | Ask agent |
| Broadband | Ask agent |
Permitted payments and tenant information
Permitted payments
For properties in England, the Tenant Fees Act 2019 means that in addition to rent, lettings agents or landlords can only charge tenants the following payments associated with a tenancy:
- Holding deposits (a maximum of 1 week's rent);
- Deposits (a maximum deposit of 5 weeks' rent for annual rent below