Charlotte Road, City Centre
House with 4 bedrooms and 4 bathrooms
Available from 15th August 2026
Bills included
We take the stress out of student living. All student homes have bills included!Plans and tours
Key features
Full refurbishment planned for 2026!!
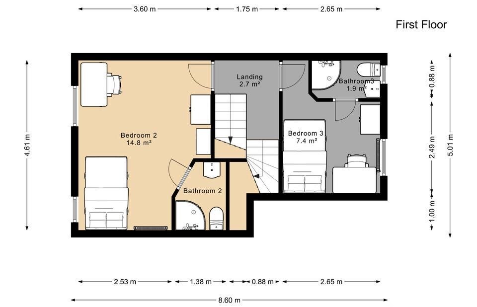
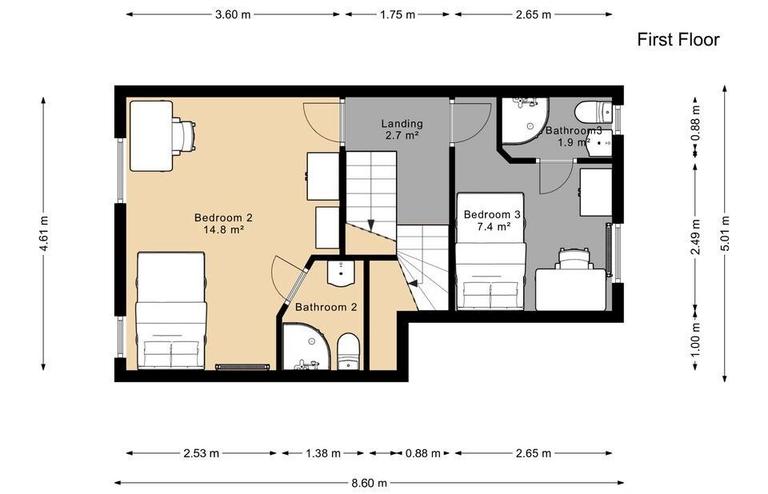
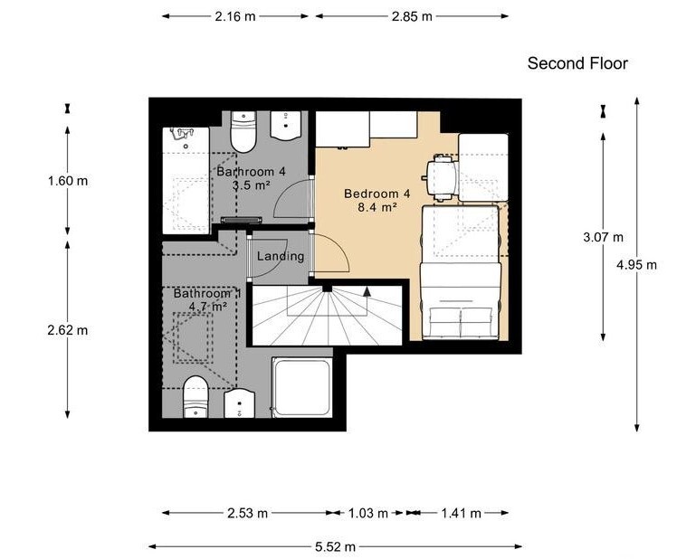
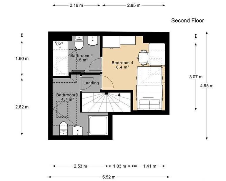
A bathroom for every tenant
Modern and open-plan kitchen-lounge
Smart TV
Award winning Managing Agent
Great location - close to SHU and city centre shopping
Well established and popular student area
Permit parking available
Bills included
Location
Description
This property will benefit from a complete refurbishment in Summer 2026, offering high-quality, modern living with everything brand new throughout.
The house features four well-proportioned double bedrooms, each will have its own private bathroom and be furnished with a three-quarter bed, study desk and chair, and ample wardrobe space.
At the heart of the home there will be a modern open-plan kitchen and lounge area, designed for both relaxing and socialising. The contemporary kitchen will come fully equipped with all essential appliances and include a breakfast bar with stools. The lounge area will be furnished with a comfortable sofa, coffee table, and smart TV, creating a welcoming communal space.
The property benefits from high ceilings and large windows, giving it a bright and airy feel throughout. To the rear, there is a shared paved yard providing useful outdoor space.
Ideally located, the property is just a short walk from Sheffield city centre, Sheffield Hallam University, and the train station. A 24-hour convenience store is located directly across the road, adding to the everyday convenience.
Availability
EPC rating
An Energy Performance Certificate (EPC) tells you how energy efficient a property is.
The details shown about this property are part of a property advertisement. UniHomes does not guarantee the accuracy or completeness of the advertisement or any related information, and has no control over its content. The advertisement does not serve as official property particulars. The information is provided and maintained by the Letting Agent. Please contact the agent directly if you have any queries about the information provided in the advertisement.
Charlotte Road, City Centre
- House
- with 4 bedrooms
- and 4 bathrooms
Bills included
We take the stress out of student living. All student homes have bills included!£120 per person per week including bills
To arrange a viewing or find out more about this property .
If you need to contact the UniHomes Customer Service team because you haven't heard back from the letting agent following an enquiry (please allow 3 days) or any other reason call 0330 822 0266.
Please have the following reference number ready:
382174742More property and tenancy information
Extra features
| Parking | Yes with a permit |
|---|---|
| Property accessibility | Contact Us |
Utilities and Council Tax
| Council Tax band Student exemptions may apply | Ask agent |
|---|---|
| Electricity supply | Ask agent |
| Water supply | Ask agent |
| Gas supply | Ask agent |
| Broadband | Ask agent |
Permitted payments and tenant information
Permitted payments
For properties in England, the Tenant Fees Act 2019 means that in addition to rent, lettings agents or landlords can only charge tenants the following payments associated with a tenancy:
- Holding deposits (a maximum of 1 week's rent);
- Deposits (a maximum deposit of 5 weeks' rent for annual rent below