Sweetbriar Road, Westcotes
House with 4 bedrooms and 2 bathrooms
Available from 1st September 2026
Bills included
We take the stress out of student living. All student homes have bills included!Plans and tours
Key features
Academic year 2026-27
Fully furnished
2nd bathroom to be added summer 2026
Free on-road parking
Sociable lounge
Dining table and chairs
Large rooms
Short tenancy - 44 weeks
Bills included
Location
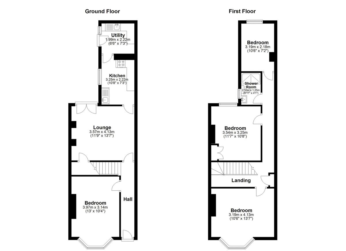
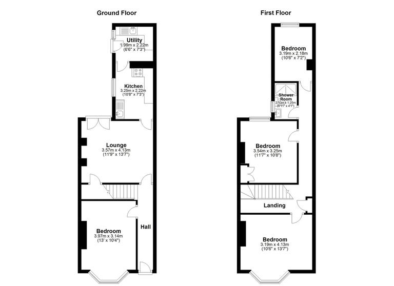
Description
This great property provides a sociable living room with a dining table and chairs, 4 double bedrooms, and a fitted kitchen. There is a modern shower room with another one to be added in the summer of 2026. With a sunny, paved rear garden, this house has everything a student might need.
The house is on Sweetbriar Road, just off Narborough Road and is perfectly located for DMU students. It is only a 5-minute walk from the shops and nightlife on Narborough Road, while keeping its quiet, leafy feel. Only a 15-20 minute walk to the university.
This house is available on a fixed-term 44-week contract starting from 1st September 2026.
Each BEDROOM comes with:
- Bed & mattress
- Desk & Chair
- Large wardrobe
- Chest of drawers.
Availability
EPC rating
An Energy Performance Certificate (EPC) tells you how energy efficient a property is.
The details shown about this property are part of a property advertisement. UniHomes does not guarantee the accuracy or completeness of the advertisement or any related information, and has no control over its content. The advertisement does not serve as official property particulars. The information is provided and maintained by the Letting Agent. Please contact the agent directly if you have any queries about the information provided in the advertisement.
Sweetbriar Road, Westcotes
- House
- with 4 bedrooms
- and 2 bathrooms
Bills included
We take the stress out of student living. All student homes have bills included!£124 per person per week including bills
To arrange a viewing or find out more about this property .
If you need to contact the UniHomes Customer Service team because you haven't heard back from the letting agent following an enquiry (please allow 3 days) or any other reason call 0330 822 0266.
Please have the following reference number ready:
467428430More property and tenancy information
Extra features
| Parking | Free on-road parking and off-road parking |
|---|---|
| Property accessibility | Ask agent |
Utilities and Council Tax
| Council Tax band Student exemptions may apply | Ask agent |
|---|---|
| Electricity supply | Ask agent |
| Water supply | Ask agent |
| Gas supply | Ask agent |
| Broadband | Ask agent |
Permitted payments and tenant information
Permitted payments
For properties in England, the Tenant Fees Act 2019 means that in addition to rent, lettings agents or landlords can only charge tenants the following payments associated with a tenancy:
- Holding deposits (a maximum of 1 week's rent);
- Deposits (a maximum deposit of 5 weeks' rent for annual rent below