Portland Street, Golden Triangle
House with 4 bedrooms and 1 bathroom
Available from 14th September 2026
Bills included
We take the stress out of student living. All student homes have bills included!Plans and tours
Key features
Quiet area
Fully furnished
Newly re-decorated
Double bedrooms
Bills included
Location
Description
We are pleased to offer this spacious four bedroom student let in prime Golden Triangle location, close to a wealth of amenities.
A fully furnished four bedroom student terrace house situated just off Unthank Road of which is located within the prestigious Golden Triangle with convenience stores, restaurants and some fantastic pubs being in close proximity this is the ideal location for students.
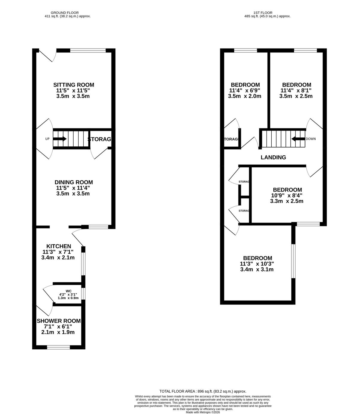
The property boasts four double bedrooms (one downstairs and three upstairs) a lounge, fully fitted kitchen, family bathroom, and separate toilet. The house is furnished with students in mind, with each room including a double bed, wardrobe, desk, and chair. There is also a rear yard with a brick shed, which is perfect for bike storage.
Availability
EPC rating
An Energy Performance Certificate (EPC) tells you how energy efficient a property is.
The details shown about this property are part of a property advertisement. UniHomes does not guarantee the accuracy or completeness of the advertisement or any related information, and has no control over its content. The advertisement does not serve as official property particulars. The information is provided and maintained by the Letting Agent. Please contact the agent directly if you have any queries about the information provided in the advertisement.
Portland Street, Golden Triangle
- House
- with 4 bedrooms
- and 1 bathroom
Bills included
We take the stress out of student living. All student homes have bills included!£121 per person per week including bills
To arrange a viewing or find out more about this property .
If you need to contact the UniHomes Customer Service team because you haven't heard back from the letting agent following an enquiry (please allow 3 days) or any other reason call 0330 822 0266.
Please have the following reference number ready:
476540953More property and tenancy information
Extra features
| Parking | Ask agent |
|---|---|
| Property accessibility | Ask agent |
Utilities and Council Tax
| Council Tax band Student exemptions may apply | Ask agent |
|---|---|
| Electricity supply | Ask agent |
| Water supply | Ask agent |
| Gas supply | Ask agent |
| Broadband | Ask agent |
Permitted payments and tenant information
Permitted payments
For properties in England, the Tenant Fees Act 2019 means that in addition to rent, lettings agents or landlords can only charge tenants the following payments associated with a tenancy:
- Holding deposits (a maximum of 1 week's rent);
- Deposits (a maximum deposit of 5 weeks' rent for annual rent below