Trix Road, Golden Triangle
House with 4 bedrooms and 2 bathrooms
Available from 12th September 2026
Bills included
We take the stress out of student living. All student homes have bills included!Plans and tours
Key features
Modern kitchen
Fully furnished
Gas central heated
Double glazed
Bike storage
Bills included
Location
Description
Trix Road is located close to the popular student area close to Unthank Road, with its regular bus routes running to Norwich City Centre, UEA and to the N&N Hospital.
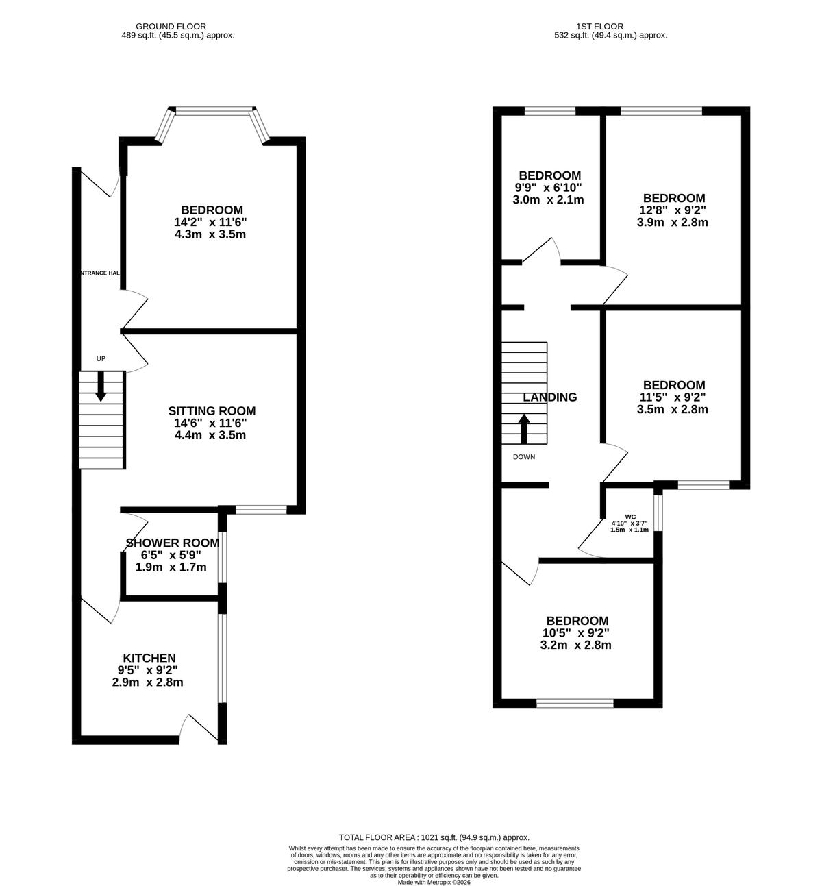
The downstairs of this property offers one of the large double bedrooms, along with a spacious lounge social area, downstairs bathroom and large modern kitchen. The large modern kitchen comes fully equipped with electric oven and hob, fridge-freezer and a washing machine-dryer. Upstairs there are the remaining three double bedrooms; there is also a second toilet room. To the rear of the property there is a good sized patio garden as well as an outhouse perfect for bike storage which also contains an additional fridge and freezer. The property also offers on street permit parking.
Availability
EPC rating
An Energy Performance Certificate (EPC) tells you how energy efficient a property is.
The details shown about this property are part of a property advertisement. UniHomes does not guarantee the accuracy or completeness of the advertisement or any related information, and has no control over its content. The advertisement does not serve as official property particulars. The information is provided and maintained by the Letting Agent. Please contact the agent directly if you have any queries about the information provided in the advertisement.
Trix Road, Golden Triangle
- House
- with 4 bedrooms
- and 2 bathrooms
Bills included
We take the stress out of student living. All student homes have bills included!£119 per person per week including bills
To arrange a viewing or find out more about this property .
If you need to contact the UniHomes Customer Service team because you haven't heard back from the letting agent following an enquiry (please allow 3 days) or any other reason call 0330 822 0266.
Please have the following reference number ready:
487134842More property and tenancy information
Extra features
| Parking | Ask agent |
|---|---|
| Property accessibility | Ask agent |
Utilities and Council Tax
| Council Tax band Student exemptions may apply | Ask agent |
|---|---|
| Electricity supply | Ask agent |
| Water supply | Ask agent |
| Gas supply | Ask agent |
| Broadband | Ask agent |
Permitted payments and tenant information
Permitted payments
For properties in England, the Tenant Fees Act 2019 means that in addition to rent, lettings agents or landlords can only charge tenants the following payments associated with a tenancy:
- Holding deposits (a maximum of 1 week's rent);
- Deposits (a maximum deposit of 5 weeks' rent for annual rent below