Coronation Street East Sussex, Lewes Road
House with 4 bedrooms and 1 bathroom
Available from 13th August 2026
Bills included
We take the stress out of student living. All student homes have bills included!Plans and tours
Key features
Undergraduate Student Eligible
Private garden
Central Heating
Double glazing
Washing Machine
Microwave
Cooker
Freezer
Bills included
Location
Description
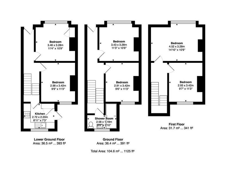
We are delighted to present this fully furnished four-bedroom student house, conveniently located off Lewes Road in one of Brighton’s most popular student areas. The property is set over three floors, offering bright and spacious living throughout.
On the ground floor, there are two double bedrooms and a main bathroom fitted with a shower over bath, wash hand basin, and toilet. A staircase leads to the first floor, which houses two additional fully furnished double bedrooms. The front bedroom benefits from a large bay window, while the rear bedroom offers ample space and natural light.
The lower ground floor features an open-plan lounge and dining area, complete with table and chairs, perfect for socialising or studying. At the rear, a kitchen is equipped with white goods, including a washing machine, and provides access to a private patio and garden.
The property also benefits from double glazing and gas central heating, ensuring comfort throughout the year. With evenly sized bedrooms, generous communal areas, and a prime location close to Lewes Road amenities, cafes, bars, and transport links to both the University of Brighton and University of Sussex, this home is a highly sought-after student let. Early viewings are strongly recommended.
Availability
EPC rating
An Energy Performance Certificate (EPC) tells you how energy efficient a property is.
The details shown about this property are part of a property advertisement. UniHomes does not guarantee the accuracy or completeness of the advertisement or any related information, and has no control over its content. The advertisement does not serve as official property particulars. The information is provided and maintained by the Letting Agent. Please contact the agent directly if you have any queries about the information provided in the advertisement.
Coronation Street East Sussex, Lewes Road
- House
- with 4 bedrooms
- and 1 bathroom
Bills included
We take the stress out of student living. All student homes have bills included!£176 per person per week including bills
To arrange a viewing or find out more about this property .
If you need to contact the UniHomes Customer Service team because you haven't heard back from the letting agent following an enquiry (please allow 3 days) or any other reason call 0330 822 0266.
Please have the following reference number ready:
503774300More property and tenancy information
Extra features
| Parking | Ask agent |
|---|---|
| Property accessibility | Ask agent |
Utilities and Council Tax
| Council Tax band Student exemptions may apply | Ask agent |
|---|---|
| Electricity supply | Ask agent |
| Water supply | Ask agent |
| Gas supply | Ask agent |
| Broadband | Ask agent |
Permitted payments and tenant information
Permitted payments
For properties in England, the Tenant Fees Act 2019 means that in addition to rent, lettings agents or landlords can only charge tenants the following payments associated with a tenancy:
- Holding deposits (a maximum of 1 week's rent);
- Deposits (a maximum deposit of 5 weeks' rent for annual rent below