Friends Road, North & West Earlham
House with 5 bedrooms and 5 bathrooms
Available from 1st September 2026
Bills included
We take the stress out of student living. All student homes have bills included!Plans and tours
Key features
Recently refurbished
High end finish
Top spec.
Contemporary
Close to the UEA
Close to amenities & bus routes
Ample parking on tarmac
Low maintenance outdoor areas
Bills included
Location
Description
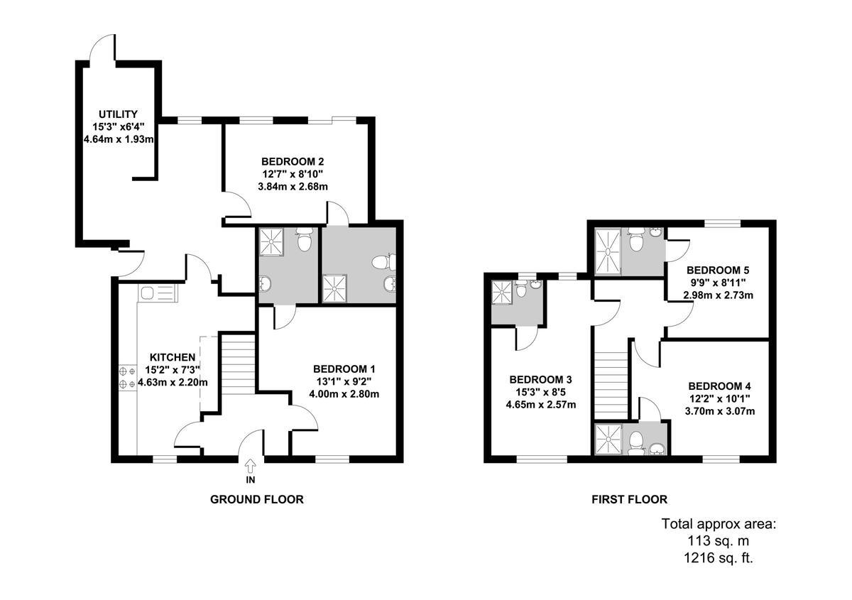
This cosy 5-bedroom student property is ideally located just a short walk from the University of East Anglia, making it perfect for students. Each bedroom comes with a built-in small double bed and an en-suite bathroom, providing privacy and comfort for all residents. The communal living area features a comfortable sofa and TV, perfect for relaxing or socializing.
The kitchen is well-equipped with two fridge freezers, a washing machine, and a tumble dryer, catering to all your practical needs. Outside, there’s an enclosed garden for outdoor relaxation and a driveway for convenient off-street parking. Additionally, the property includes a communal cleaner and 24-hour assistance service, ensuring a hassle-free living experience.
Availability
EPC rating
An Energy Performance Certificate (EPC) tells you how energy efficient a property is.
The details shown about this property are part of a property advertisement. UniHomes does not guarantee the accuracy or completeness of the advertisement or any related information, and has no control over its content. The advertisement does not serve as official property particulars. The information is provided and maintained by the Letting Agent. Please contact the agent directly if you have any queries about the information provided in the advertisement.
Friends Road, North & West Earlham
- House
- with 5 bedrooms
- and 5 bathrooms
Bills included
We take the stress out of student living. All student homes have bills included!£186.50 per person per week including bills
To arrange a viewing or find out more about this property .
If you need to contact the UniHomes Customer Service team because you haven't heard back from the letting agent following an enquiry (please allow 3 days) or any other reason call 0330 822 0266.
Please have the following reference number ready:
53846870More property and tenancy information
Extra features
| Parking | Ask agent |
|---|---|
| Property accessibility | Ask agent |
Utilities and Council Tax
| Council Tax band Student exemptions may apply | Ask agent |
|---|---|
| Electricity supply | Ask agent |
| Water supply | Ask agent |
| Gas supply | Ask agent |
| Broadband | Ask agent |
Permitted payments and tenant information
Permitted payments
For properties in England, the Tenant Fees Act 2019 means that in addition to rent, lettings agents or landlords can only charge tenants the following payments associated with a tenancy:
- Holding deposits (a maximum of 1 week's rent);
- Deposits (a maximum deposit of 5 weeks' rent for annual rent below