Alexandra Terrace, Brynmill
House with 6 bedrooms and 5 bathrooms
Available from 1st September 2026
Bills included
We take the stress out of student living. All student homes have bills included!Plans and tours
Key features
Spacious lounge
Fully furnished
Large kitchen
Large rooms
Low deposit
ethernet ports in all bedrooms
modern design
Bills included
Location
Description
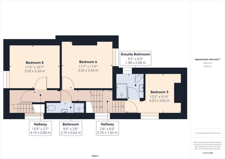
Looking for the perfect student home? This stylish and spacious 6-bedroom, 5-bathroom property in the heart of Brynmill offers everything you could possibly need whilst living and studying in Swansea.
Key Features:
6 double bedrooms – each fully furnished with a comfy bed, desk, chair, and plenty of storage
5 modern bathrooms, including 4 en-suites – no queues for the shower!
Large open-plan kitchen & lounge – a perfect space to socialise
Contemporary kitchen fitted with 2 large fridge-freezers, double oven, microwave, and ample cupboard space
Smart TV and fast broadband included – stream, study, and stay connected
Washer & dryer included for hassle-free laundry
All to take away all of the hassle
Fantastic Location:
Just a short walk from Swansea University bay campus through Singleton Park. Close to shops, cafes, and transport links – everything you need is right on your doorstep.
Rent: Competitive monthly rates per room, with all .
Don’t miss out on this incredible property, book a viewing today and secure your spot for the next academic year !
Virtual tour available upon request.
Availability
EPC rating
An Energy Performance Certificate (EPC) tells you how energy efficient a property is.
The details shown about this property are part of a property advertisement. UniHomes does not guarantee the accuracy or completeness of the advertisement or any related information, and has no control over its content. The advertisement does not serve as official property particulars. The information is provided and maintained by the Letting Agent. Please contact the agent directly if you have any queries about the information provided in the advertisement.
Alexandra Terrace, Brynmill
- House
- with 6 bedrooms
- and 5 bathrooms
Bills included
We take the stress out of student living. All student homes have bills included!from £147 per person per week including bills
To arrange a viewing or find out more about this property .
If you need to contact the UniHomes Customer Service team because you haven't heard back from the letting agent following an enquiry (please allow 3 days) or any other reason call 0330 822 0266.
Please have the following reference number ready:
632261941More property and tenancy information
Extra features
| Parking | 1 space on the drive |
|---|---|
| Property accessibility | Ask agent |
Utilities and Council Tax
| Council Tax band Student exemptions may apply | Ask agent |
|---|---|
| Electricity supply | Ask agent |
| Water supply | Ask agent |
| Gas supply | Ask agent |
| Broadband | Ask agent |
All tenancies will comply with Renting Homes (Amendment) (Wales) Act 2021
Permitted payments and tenant information
Permitted payments
For properties in Wales, the Tenant Fees Act 2019 means that in addition to rent, lettings agents or landlords can only charge tenants the following payments associated with a tenancy:
- Holding deposits (a maximum of 1 week's rent);
- Deposits (a maximum deposit of 5 weeks' rent for annual rent below