Birstall Road, Kensington
House with 6 bedrooms and 2 bathrooms
Available from 6th July 2026
Bills included
We take the stress out of student living. All student homes have bills included!Plans and tours
Key features
Close to the university
Fully furnished
Large kitchen
Large rooms
Burglar alarm
Bills included
Location
Description
**MAY MADNESS: £100 OFF IF YOU SIGN UP THIS MONTH!**ONLY 2 ROOMS LEFT**
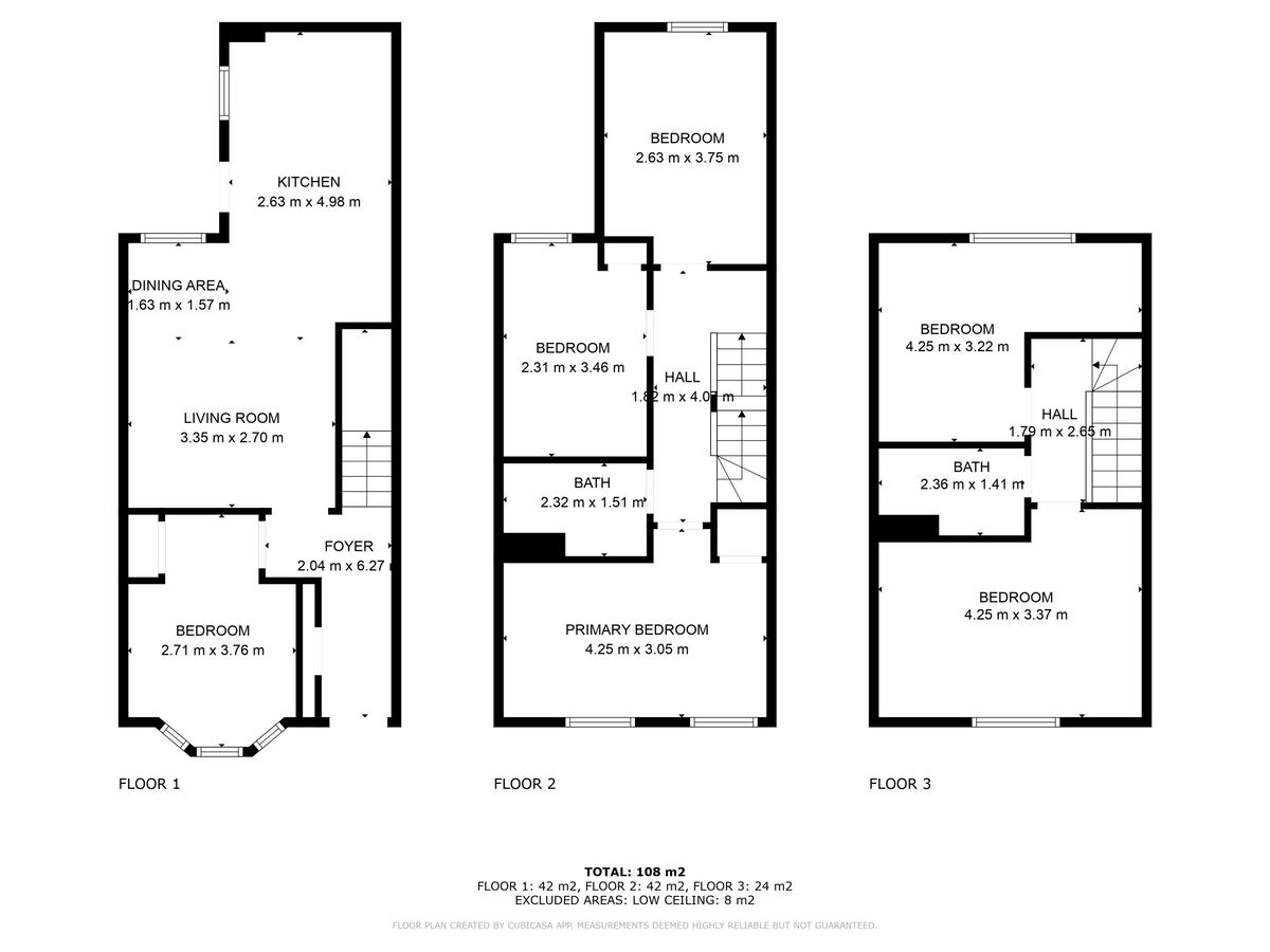
THIS BEAUTIFUL MODERN 6 BEDROOM 2 BATHROOM STUDENT HOUSE ONLY £110!
Our modern 6 Bedroom, 2 Bathroom property is ideal for students somewhere modern to stay during their studies.
With premium furnishings, cosy double bedrooms, large bathrooms, state-of-the-art appliances and classy décor throughout Birstall is truly the place to be next academic year.
Situated on one of the most popular student roads in the Kensington area and in Liverpool.
Rent is inclusive of ALL bills including super-fast Virgin Media broadband! The rent is £110 available July 2026!
The house boasts a spacious living/dining area, with a 50-inch smart TV extended integrated kitchen with 2 stoves, 2 ovens, 2 large fridges and a washer & tumble dryer. All bedrooms have double beds, plenty of storage with large built-in wardrobes, and a workspace with a desk chair!
We also have an excellent maintenance team who are normally able to deal with any property issues the same day they are reported (we doubt you will have any though!) Keeping our students safe is the most important thing to us! This house is fully equipped with a fire alarm, emergency lighting and a burglar alarm!
Live better. Live Bric.
Disclaimer:
*Please note photographs are for marketing purposes only and may not reflect the actual property.
Availability
EPC rating
An Energy Performance Certificate (EPC) tells you how energy efficient a property is.
The details shown about this property are part of a property advertisement. UniHomes does not guarantee the accuracy or completeness of the advertisement or any related information, and has no control over its content. The advertisement does not serve as official property particulars. The information is provided and maintained by the Letting Agent. Please contact the agent directly if you have any queries about the information provided in the advertisement.
Birstall Road, Kensington
- House
- with 6 bedrooms
- and 2 bathrooms
Bills included
We take the stress out of student living. All student homes have bills included!from £110 per person per week including bills
To arrange a viewing or find out more about this property .
If you need to contact the UniHomes Customer Service team because you haven't heard back from the letting agent following an enquiry (please allow 3 days) or any other reason call 0330 822 0266.
Please have the following reference number ready:
675952514More property and tenancy information
Extra features
| Parking | Off Road Parking |
|---|---|
| Property accessibility | Ask agent |
Utilities and Council Tax
| Council Tax band Student exemptions may apply | Ask agent |
|---|---|
| Electricity supply | Mains |
| Water supply | Mains |
| Gas supply | Mains |
| Broadband | Virgin |
Tenancy information
Permitted payments and tenant information
Permitted payments
For properties in England, the Tenant Fees Act 2019 means that in addition to rent, lettings agents or landlords can only charge tenants the following payments associated with a tenancy:
- Holding deposits (a maximum of 1 week's rent);
- Deposits (a maximum deposit of 5 weeks' rent for annual rent below £50,000);
- Payments to change a tenancy agreement eg. change of sharer (capped at £50 or any reasonable costs);
- Payments associated with early termination of a tenancy (capped at the landlord's loss or the agent's reasonably incurred costs);
- Utilities, communication services e.g. gas, electricity, internet. TV licence and council tax.
- Interest payments for the late payment of rent (up to 3% above Bank of England's annual percentage rate);
- Reasonable costs for replacement of lost keys or other security devices;
- Contractual damages in the event of the tenant's default of a tenancy agreement; and
- Any other permitted payments under the Tenant Fees Act 2019.
Tenant information
In addition to publishing relevant fees, lettings agents are also required to publish details of:
- the redress scheme they are a member of; and
- the name of the approved or designated Client Money Protection scheme they are a member of (if any).