Heavygate Road, Crookes
House with 5 bedrooms and 2 bathrooms
Available from 1st July 2026
Bills included
We take the stress out of student living. All student homes have bills included!Plans and tours
Key features
Unique home
Large bedrooms of equal size
Close to the university
Fully furnished
Spacious lounge
Large kitchen
Raised deck and picnic bench
Lots of free parking
Bills included
Location
Description
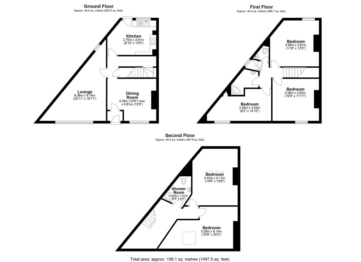
AVAILABLE FOR 2026/2027 ACADEMIC YEAR. Large, unique and very well equipped 5 bedroom student home that you'll simply love! Consisting of 5 spacious double bedrooms or roughly equal size, large living room and additional downstairs utility room, large, modern, fully fitted kitchen, 2 bathrooms and outdoor raised deck, patio and picnic bench - perfect for a morning coffee! The property has the added bonus of being fitted with double glazing throughout, providing warmth and keeping your place of study quiet and undisturbed for when you want to hit the books. There is also lots of free on-street parking and an off street space for a small city car too! Viewing highly recommended!
Location - Ideally located in the student heartland of Crookesmoor, with easy access to the University of Sheffield, shops, green spaces, public transport and easy, reliable access to the city centre.
Kitchen - This home has a very large, recently fitted, high gloss white kitchen with plenty of cupboard space, electric cooker & oven, dishwasher, clothes washer/dryer, fridge freezer, microwave, toaster and kettle.
Utility space - ideal for your laundry, ironing your clothes or storing everyone's coats and shoes.
Living Room - unique triangular shaped, large separate living room containing 2 huge sofas, comfy foot stool, huge flat screen wall mounted TV and media unit underneath, as well as shelves and other home comforts.
Bathrooms - Two shared bathrooms - one per floor.
Bedrooms - All 5 bedrooms are supplied with a double bed, desk and chair, bookshelf and plenty of room for storage.
Front - At the front of the property is a raised decked area and patio, with picnic bench.
Rear - There is also outside space to the rear.
Parking - Plenty of FREE on-street parking is available and there are no parking restrictions. There is also a small off street space suitable for a motorcycle or small city car.
All of our student homes are thoroughly professionally deep cleaned at the end of each tenancy ready for you to move in!
Rent, Fees and Terms
Rent - £ INCLUDING BILLS (Gas, Electricity, Water, TV Licence & Internet), excluding council tax (if applicable)
Deposit - £250
Available Date - 1st July 2026.
Call us now to book your viewing. We are open 7 days a week from 8am to 8pm.
Availability
EPC rating
An Energy Performance Certificate (EPC) tells you how energy efficient a property is.
The details shown about this property are part of a property advertisement. UniHomes does not guarantee the accuracy or completeness of the advertisement or any related information, and has no control over its content. The advertisement does not serve as official property particulars. The information is provided and maintained by the Letting Agent. Please contact the agent directly if you have any queries about the information provided in the advertisement.
Heavygate Road, Crookes
- House
- with 5 bedrooms
- and 2 bathrooms
Bills included
We take the stress out of student living. All student homes have bills included!£107 per person per week including bills
To arrange a viewing or find out more about this property .
If you need to contact the UniHomes Customer Service team because you haven't heard back from the letting agent following an enquiry (please allow 3 days) or any other reason call 0330 822 0266.
Please have the following reference number ready:
703211497More property and tenancy information
Extra features
| Parking | On street parking with a small off street parking space too |
|---|---|
| Property accessibility | Ask agent |
Utilities and Council Tax
| Council Tax band Student exemptions may apply | C |
|---|---|
| Electricity supply | Ask agent |
| Water supply | Ask agent |
| Gas supply | Ask agent |
| Broadband | Ask agent |
As per the Tenant Fee Act 2019 BEFORE YOU MOVE IN: A holding deposit equivalent to 1 week’s rent per person will be required. Should you be offered and you accept a tenancy with our Landlord, then your holding deposit will be credited to the first month’s rent due under that tenancy. This is to reserve a property Please Note: This will be withheld if any relevant person (including any guarantor(s) withdraw from the tenancy, fail a Right-to-Rent check, provide materially significant false or misleading information, or fail to sign their tenancy agreement (and / or Deed of Guarantee) within 15 calendar days (or other Deadline for Agreement as mutually agreed in writing). Security Deposit Per tenancy. Rent under £50,000 per year maximum of five weeks rent Rent over £50,000 per year maximum of six weeks rent Unpaid Rent: Interest at 3% above the Bank of England Base Rate from Rent Due Date until paid in order to pursue non-payment of rent. Please Note: This will not be levied until the rent is more than 14 days in arrears. Lost Key(s) or other Security Device(s): Tenants are liable to the actual cost of replacing any lost key(s) or other security device(s). If the loss results in locks needing to be changed, the actual costs of a locksmith, new lock and replacement keys for the tenant, landlord any other persons requiring keys will be charged to the tenant. If extra costs are incurred there will be a charge of £15 per hour (inc. VAT) for the time taken replacing lost key(s) or other security device(s). Variation of Contract (Tenants Request): £50 Inc. VAT per agreed variation. To cover the costs associated with taking landlords instructions as well as the preparation and execution of new legal documents. Change of Sharer (Tenants Request): £50 Inc. VAT per replacement tenant or any reasonable costs incurred if higher.
IF YOU HAVE ANY QUESTIONS ON OUR FEES, PLEASE ASK A MEMBER OF STAFF. CLIENT MONEY PROTECTION (CMP) PROVIDED BY: ARLA Propertymark INDEPENDENT REDRESS PROVIDED BY: TPO'S "THE PROPERTY OMBUDSMAN"
For Tenancy agreements signed before 1st June 2019
Late payment fee of £25 for every 7 days that the payment remains unpaid
Administration fee of £250 incl VAT per new assured shorthold tenancy agreement issued will be levied leaving the contract early
Replacement of lost Keys £50 inc VAT