Harland Road, Ecclesall
House with 5 bedrooms and 2 bathrooms
Available immediately
Bills included
We take the stress out of student living. All student homes have bills included!Plans and tours
Key features
5 Double Bedrooms
2 Bathrooms
Tenancy Dates: 2nd July 2025 - 29th July 2026
Appliances: Washer, Dryer, Dishwasher, Gas Hob, Fridge/Freezer, Microwave, TV
Distance to Uni: 1 min
Distance to shops: 4mins to Tesco
Parking Arrangements: Off-street driveway & permit
Available to both students & professionals
Bills included
Location
Description
Rent: Includes utilities..
Rent + utilities: £.
Security Deposit: £200.00 per person.
Tenancy Type: Cohesive joint & several assured shorthold tenancy agreement.
Tenancy Dates: 2nd July 2025 – 29th June 2026
Management: Property managed & rent collected by – Glossop Road.
Council tax: Tenants are liable for making payments if not exempt as a qualifying student. Details of exemption requirements can be found on the Sheffield City Council website.
Property Information
Property Type: House / End-Terrace (Brick).
Furnishing: Fully furnished and typically includes bed, mattress, wardrobe, desk, desk chair, drawers, blinds, doesn't include bedding/ decorative items.
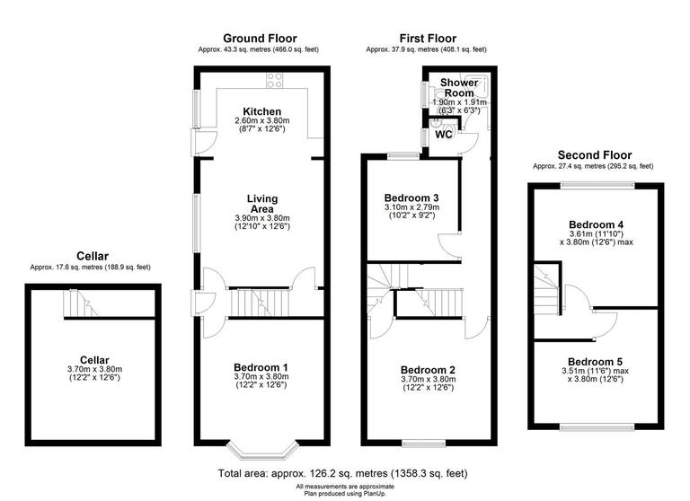
Bedrooms: 5
Bathrooms: 2
Living room: 1
Kitchen: 1
Basement: 1
All room dimensions to be detailed on the floorplan.
Off street parking - driveway
Appliances: Fridge, Freezer, Microwave, Gas hob, Washing machine, dishwasher.
Distance to University: 1 Minute walk to Collegiate Campus
Distance to local shops: 4 minutes walk to Tesco
Parking Arrangement: Permit parking.
Gas Supply: Mains gas with combi boiler.
Electricity Supply: Mains electric.
Water Supply: Mains water with no meter.
Sewerage: Mains Fed.
Mobile & Internet coverage: signal strength and coverage can be found using the checker below.
Mobile -
Internet -
EPC: D - 56
Council tax band: B.
Availability
EPC rating
An Energy Performance Certificate (EPC) tells you how energy efficient a property is.
The details shown about this property are part of a property advertisement. UniHomes does not guarantee the accuracy or completeness of the advertisement or any related information, and has no control over its content. The advertisement does not serve as official property particulars. The information is provided and maintained by the Letting Agent. Please contact the agent directly if you have any queries about the information provided in the advertisement.
Harland Road, Ecclesall
- House
- with 5 bedrooms
- and 2 bathrooms
Bills included
We take the stress out of student living. All student homes have bills included!£117 per person per week including bills
To arrange a viewing or find out more about this property .
If you need to contact the UniHomes Customer Service team because you haven't heard back from the letting agent following an enquiry (please allow 3 days) or any other reason call 0330 822 0266.
Please have the following reference number ready:
838955813More property and tenancy information
Extra features
| Parking | Ask agent |
|---|---|
| Property accessibility | Ask agent |
Utilities and Council Tax
| Council Tax band Student exemptions may apply | Ask agent |
|---|---|
| Electricity supply | Ask agent |
| Water supply | Ask agent |
| Gas supply | Ask agent |
| Broadband | Ask agent |
Permitted payments and tenant information
Permitted payments
For properties in England, the Tenant Fees Act 2019 means that in addition to rent, lettings agents or landlords can only charge tenants the following payments associated with a tenancy:
- Holding deposits (a maximum of 1 week's rent);
- Deposits (a maximum deposit of 5 weeks' rent for annual rent below