Prior Park Road, City Centre
House with 6 bedrooms and 2 bathrooms
Available from 17th September 2026
Bills included
We take the stress out of student living. All student homes have bills included!Plans and tours
Key features
Bright and spacious house set over three floors, situated close to the City Centre
Popular area near City Centre close to all local amenities
Permit parking available
Kitchenette facilities on second floor
Private courtyard garden
Part-Furnished
Close to amenities
Great location
Bills included
Location
Description
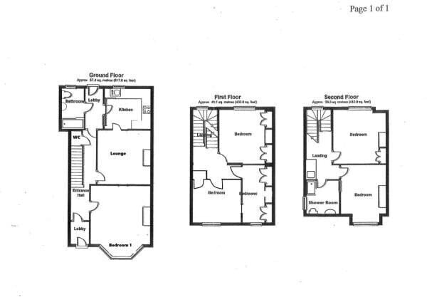
A spacious six double bedroomed student home.
Situated just off Widcombe High Street, this property is 5-minutes from the train and bus station, 9-minute drive to the university, and 2-minute walk from all the local amenities. There is a kitchen equipped with white goods, a large communal lounge, 2 shower rooms and a private rear garden. Each bedroom is lockable and offers a double bed with mattress, wardrobe, chest of drawers, desk, chair and bedside table. This property is excellent for a group seeking a central location, close to town and Bath University.
Offered: Part - Furnished.
Hold Fee: 120.00 per person.
Availability
EPC rating
An Energy Performance Certificate (EPC) tells you how energy efficient a property is.
The details shown about this property are part of a property advertisement. UniHomes does not guarantee the accuracy or completeness of the advertisement or any related information, and has no control over its content. The advertisement does not serve as official property particulars. The information is provided and maintained by the Letting Agent. Please contact the agent directly if you have any queries about the information provided in the advertisement.
Prior Park Road, City Centre
- House
- with 6 bedrooms
- and 2 bathrooms
Bills included
We take the stress out of student living. All student homes have bills included!£221.62 per person per week including bills
To arrange a viewing or find out more about this property .
If you need to contact the UniHomes Customer Service team because you haven't heard back from the letting agent following an enquiry (please allow 3 days) or any other reason call 0330 822 0266.
Please have the following reference number ready:
927381963More property and tenancy information
Extra features
| Parking | Ask agent |
|---|---|
| Property accessibility | Ask agent |
Utilities and Council Tax
| Council Tax band Student exemptions may apply | Ask agent |
|---|---|
| Electricity supply | Ask agent |
| Water supply | Ask agent |
| Gas supply | Ask agent |
| Broadband | Ask agent |
Permitted payments and tenant information
Permitted payments
For properties in England, the Tenant Fees Act 2019 means that in addition to rent, lettings agents or landlords can only charge tenants the following payments associated with a tenancy:
- Holding deposits (a maximum of 1 week's rent);
- Deposits (a maximum deposit of 5 weeks' rent for annual rent below