Bland Road, North & West Earlham
House with 6 bedrooms and 6 bathrooms
Available from 1st September 2026
Bills included
We take the stress out of student living. All student homes have bills included!Plans and tours
Key features
Private garden
Parking
Large Garden
Recently refurbished
Top spec
High end finish
Female Tenants
Modern fitted kitchen
Bills included
Location
Description
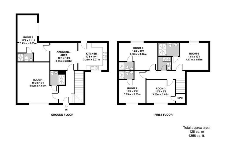
This recently refurbished 6-bedroom property is a true gem. Each room offers the perfect blend of comfort & privacy, with your very own double room complete with an ensuite for your convenience.
Inside, you'll find the essential furnishings such as a desk, chair, & wardrobe -- making it easy to settle in. The property features a spacious entrance hall leading to the living area, equipped with a smart TV, creating an ideal spot for relaxation & entertainment.
The well-appointed kitchen is a highlight, as it comes with white goods pre-installed & ready for your culinary adventures. With 2 bedrooms conveniently located on the ground floor & an additional 4 bedrooms on the first floor, you'll have plenty of space to choose from.
Furthermore, this property boasts a prime location, quiet with bus routes available - just a 5-minute drive away or 30 minute walk from the University of East Anglia UEA making it an excellent choice for students. You'll also enjoy the convenience of a driveway & spacious gardens both to the front & back, providing the perfect setting for enjoying those summer nights.
Availability
EPC rating
An Energy Performance Certificate (EPC) tells you how energy efficient a property is.
The details shown about this property are part of a property advertisement. UniHomes does not guarantee the accuracy or completeness of the advertisement or any related information, and has no control over its content. The advertisement does not serve as official property particulars. The information is provided and maintained by the Letting Agent. Please contact the agent directly if you have any queries about the information provided in the advertisement.
Bland Road, North & West Earlham
- House
- with 6 bedrooms
- and 6 bathrooms
Bills included
We take the stress out of student living. All student homes have bills included!£175 per person per week including bills
To arrange a viewing or find out more about this property .
If you need to contact the UniHomes Customer Service team because you haven't heard back from the letting agent following an enquiry (please allow 3 days) or any other reason call 0330 822 0266.
Please have the following reference number ready:
954274969More property and tenancy information
Extra features
| Parking | Driveway |
|---|---|
| Property accessibility | Ask agent |
Utilities and Council Tax
| Council Tax band Student exemptions may apply | Ask agent |
|---|---|
| Electricity supply | Ask agent |
| Water supply | Ask agent |
| Gas supply | Ask agent |
| Broadband | Ask agent |
Permitted payments and tenant information
Permitted payments
For properties in England, the Tenant Fees Act 2019 means that in addition to rent, lettings agents or landlords can only charge tenants the following payments associated with a tenancy:
- Holding deposits (a maximum of 1 week's rent);
- Deposits (a maximum deposit of 5 weeks' rent for annual rent below