Queens Road, 26/27 **, Abington
House with 5 bedrooms and 1 bathroom
Available from 1st July 2026
Bills included
We take the stress out of student living. All student homes have bills included!Plans and tours
Key features
26/27 Student Accommodation
STUDENTS ONLY
Fully Furnished
Easy Access to Waterside Campus
50% Summer retainer
Double glazing
Bills included
Location
Description
FIVE BEDROOM STUDENT HOUSE FOR THE 26/27 ACADEMIC YEAR
Nicholas Humphreys are pleased to bring this well presented student house share to the market, available for Academic Year 2026/27.
Located on Queens Road, Northampton it is well located for easy access to the Town Centre, Wellingborough Road and the Waterside Campus.
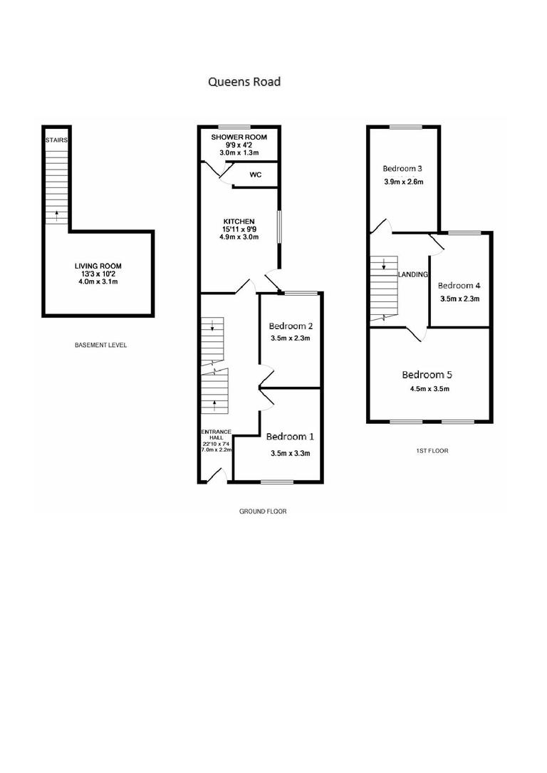
Internally, the property comprises of:
Five Double bedrooms: Each bedroom includes a double bed, wardrobe, chest of drawers, desk and chair.
Lounge: Including two sofas and a coffee table.
Kitchen: Modern kitchen including fitted units with plenty of storage, washing machine, fridge/freezer, oven, hob and microwave.
Shower room: Including a fitted shower cubicle , WC, heated towel rail and wash hand basin.
Separate WC: Including WC and WHB.
Outside: Mainly laid to paving.
Rent, Fees and Terms:
Rent:
Room 1: Ground floor double - £99.87 pw
£428.42 PCM
Room 2: Second ground floor double - £97.76 pw
£423.62 PCM
Room 3: First floor double rear - £99.87 pw
£428.42 PCM
Room 4: First floor double middle - £97.76 pw
£423.62 PCM
Room 5: First floor double front - £101.76 pw
£440.94 PCM
Rental Deposit: £400 Per Tenant.
Holding Deposit: £99 per person (based on group of 5)
Contract Length: 1st July 2026 - 30 June 2027 (50% Summer retainer for July and August)
Bills Included.
Viewing of this property is highly recommended.
THE PROCESS
PHYSICAL VIEWING - Please come along for the viewing with your group, but if all of your group can't make it, we can also do a virtual viewing.
VIRTUAL VIEWING - Why not use Facetime/Video Call with all of your group so you can all see it together?
RENTAL DEPOSIT - you will need to pay this when you sign the tenancy agreement.
GUARANTOR - All students must provide a UK Guarantor There are some alternatives if you are an overseas student, so please contact us to discuss.
Before reserving a property ensure that you know the length of the TENANCY and the PAYMENT TERMS (i.e. monthly or quarterly)
ELECTRONIC DOCUMENTATION - we send out all of the application and tenancy documents electronically. This allows you to complete them on your tablet or laptop and you do not have to visit the office or print them off.
Please note that the pictures and video tour shown are for viewing purposes only and have been taken previously, and the contents were accurate at the time it was prepared. There may be slight changes made in the property since the pictures/recording took place. The agent will not be held liable for anything that may be mentioned after the point that this pre-recording took place.
EPC rating: E. Council tax band: A,
Availability
EPC rating
An Energy Performance Certificate (EPC) tells you how energy efficient a property is.
The details shown about this property are part of a property advertisement. UniHomes does not guarantee the accuracy or completeness of the advertisement or any related information, and has no control over its content. The advertisement does not serve as official property particulars. The information is provided and maintained by the Letting Agent. Please contact the agent directly if you have any queries about the information provided in the advertisement.
Queens Road, 26/27 **, Abington
- House
- with 5 bedrooms
- and 1 bathroom
Bills included
We take the stress out of student living. All student homes have bills included!£123 per person per week including bills
To arrange a viewing or find out more about this property .
If you need to contact the UniHomes Customer Service team because you haven't heard back from the letting agent following an enquiry (please allow 3 days) or any other reason call 0330 822 0266.
Please have the following reference number ready:
961442321More property and tenancy information
Extra features
| Parking | Ask agent |
|---|---|
| Property accessibility | Ask agent |
Utilities and Council Tax
| Council Tax band Student exemptions may apply | Ask agent |
|---|---|
| Electricity supply | Ask agent |
| Water supply | Ask agent |
| Gas supply | Ask agent |
| Broadband | Ask agent |
Permitted payments and tenant information
Permitted payments
For properties in England, the Tenant Fees Act 2019 means that in addition to rent, lettings agents or landlords can only charge tenants the following payments associated with a tenancy:
- Holding deposits (a maximum of 1 week's rent);
- Deposits (a maximum deposit of 5 weeks' rent for annual rent below