Portland Street, Golden Triangle
House with 4 bedrooms and 1 bathroom
Available from 10th August 2026
Bills included
We take the stress out of student living. All student homes have bills included!Plans and tours
Key features
Four double bedrooms
Fully furnished
Close to amenities
Double glazed
Gas central heated
On street permit parking available
Bills included
Location
Description
Portland Street is located in the heart of the Golden Triangle, just off the popular Unthank Road. The Unthank Road area comprises of a wealth of convenience stores, restaurants, pubs and has gretransport links to the UEA, city centre, Norwich hospital and has easy access to the A47 and A11.
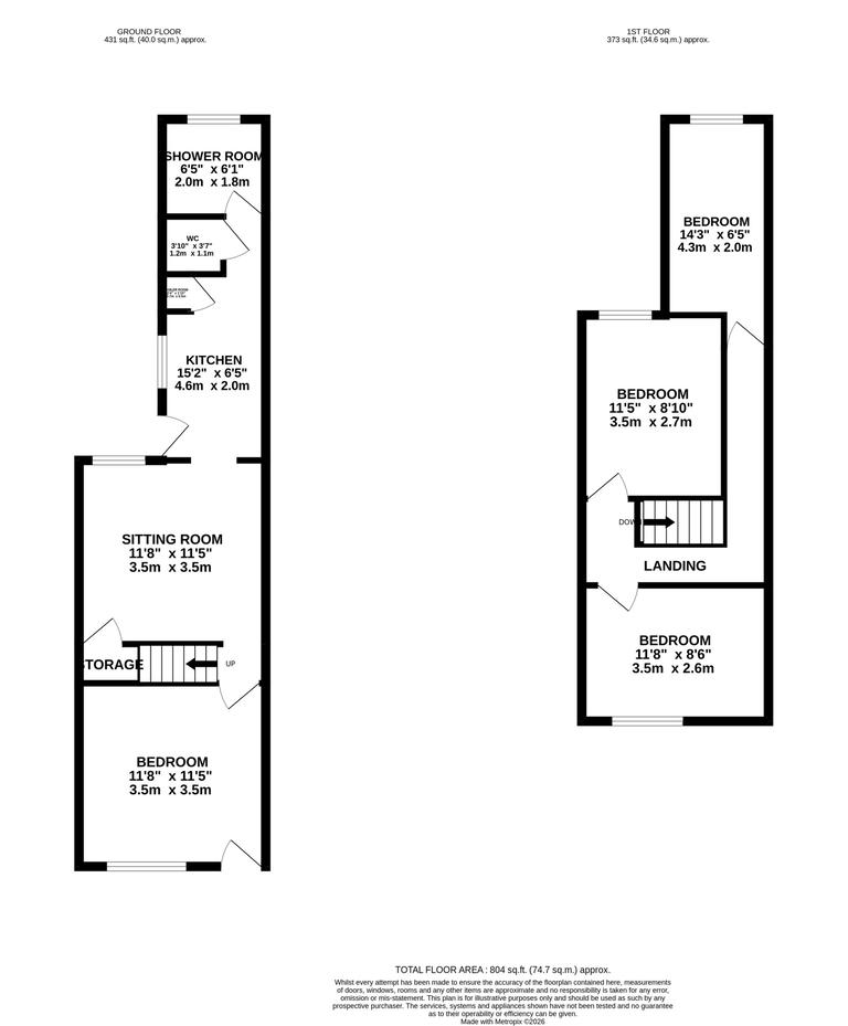
The property offers four double bedrooms, one downstairs and three upstairs. The property also has a lounge, downstairs bathroom, separate toilet room, and a modern, fitted kitchen. The kitchen is fitted with plenty of cupboard and worktop space, a cooker, fridge freezer, and washing machine. The property comes fully fitted with students in mind and all rooms come with a double bed, desk, chair, and clothes storage.
Availability
EPC rating
An Energy Performance Certificate (EPC) tells you how energy efficient a property is.
The details shown about this property are part of a property advertisement. UniHomes does not guarantee the accuracy or completeness of the advertisement or any related information, and has no control over its content. The advertisement does not serve as official property particulars. The information is provided and maintained by the Letting Agent. Please contact the agent directly if you have any queries about the information provided in the advertisement.
Portland Street, Golden Triangle
- House
- with 4 bedrooms
- and 1 bathroom
Bills included
We take the stress out of student living. All student homes have bills included!£121 per person per week including bills
To arrange a viewing or find out more about this property .
If you need to contact the UniHomes Customer Service team because you haven't heard back from the letting agent following an enquiry (please allow 3 days) or any other reason call 0330 822 0266.
Please have the following reference number ready:
1508297200More property and tenancy information
Extra features
| Parking | Ask agent |
|---|---|
| Property accessibility | Ask agent |
Utilities and Council Tax
| Council Tax band Student exemptions may apply | Ask agent |
|---|---|
| Electricity supply | Ask agent |
| Water supply | Ask agent |
| Gas supply | Ask agent |
| Broadband | Ask agent |
Permitted payments and tenant information
Permitted payments
For properties in England, the Tenant Fees Act 2019 means that in addition to rent, lettings agents or landlords can only charge tenants the following payments associated with a tenancy:
- Holding deposits (a maximum of 1 week's rent);
- Deposits (a maximum deposit of 5 weeks' rent for annual rent below