Totland Road, Elm Grove
House with 6 bedrooms and 2 bathrooms
Available from 2nd September 2026
Bills included
We take the stress out of student living. All student homes have bills included!Plans and tours
Key features
s
2 bathrooms
Great location
Close to amenities
Double bedrooms
Modern interior
Bills included
Location
Description
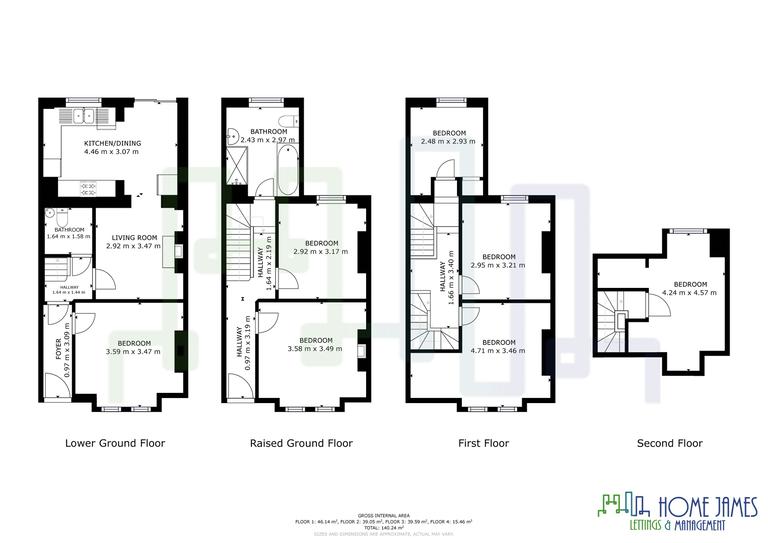
Fantastic Elm Grove Location | s | 2 Shower Rooms (1 with Bath) | Modern Fitted Kitchen with Dining Area | Sitting Room | Lawn Rear Garden | Gas Central Heating | Double Glazed | Spare Room
Spacious – Fully Furnished – Available 2nd September 2026
This well-maintained four-storey, seven-bedroom house is available fully furnished from August and is ideally situated in the ever-popular Elm Grove area of Brighton. Just a short walk from Lewes Road, you’ll have easy access to a great selection of shops, cafes, convenience stores, and pubs. Excellent transport links make getting to Brighton city centre, the seafront, and university campuses quick and easy.
The property features double bedrooms, a stylish and modern open-plan kitchen/diner complete with appliances, and patio doors that open onto a spacious lawned garden – perfect for summer BBQs and socialising.
There are two bathrooms: the main bathroom includes a full-sized bath and a separate double shower cubicle, while the second is a convenient wet room – ideal for busy student living.
This is a fantastic opportunity to secure a spacious, well-equipped home in a sought-after student location. Viewings available now – don’t miss out!
Available 02/09/2026 to 16/08/2027
Availability
EPC rating
An Energy Performance Certificate (EPC) tells you how energy efficient a property is.
The details shown about this property are part of a property advertisement. UniHomes does not guarantee the accuracy or completeness of the advertisement or any related information, and has no control over its content. The advertisement does not serve as official property particulars. The information is provided and maintained by the Letting Agent. Please contact the agent directly if you have any queries about the information provided in the advertisement.
Totland Road, Elm Grove
- House
- with 6 bedrooms
- and 2 bathrooms
Bills included
We take the stress out of student living. All student homes have bills included!£175 per person per week including bills
To arrange a viewing or find out more about this property .
If you need to contact the UniHomes Customer Service team because you haven't heard back from the letting agent following an enquiry (please allow 3 days) or any other reason call 0330 822 0266.
Please have the following reference number ready:
1545371116More property and tenancy information
Extra features
| Parking | Ask agent |
|---|---|
| Property accessibility | Ask agent |
Utilities and Council Tax
| Council Tax band Student exemptions may apply | Ask agent |
|---|---|
| Electricity supply | Ask agent |
| Water supply | Ask agent |
| Gas supply | Ask agent |
| Broadband | Ask agent |
Permitted payments and tenant information
Permitted payments
For properties in England, the Tenant Fees Act 2019 means that in addition to rent, lettings agents or landlords can only charge tenants the following payments associated with a tenancy:
- Holding deposits (a maximum of 1 week's rent);
- Deposits (a maximum deposit of 5 weeks' rent for annual rent below