Denbigh Road, Golden Triangle
House with 3 bedrooms and 1 bathroom
Available from 17th August 2026
Bills included
We take the stress out of student living. All student homes have bills included!Plans and tours
Key features
Double glazed
Central heated
Close to amenities
Close to bus routes
Bills included
Location
Description
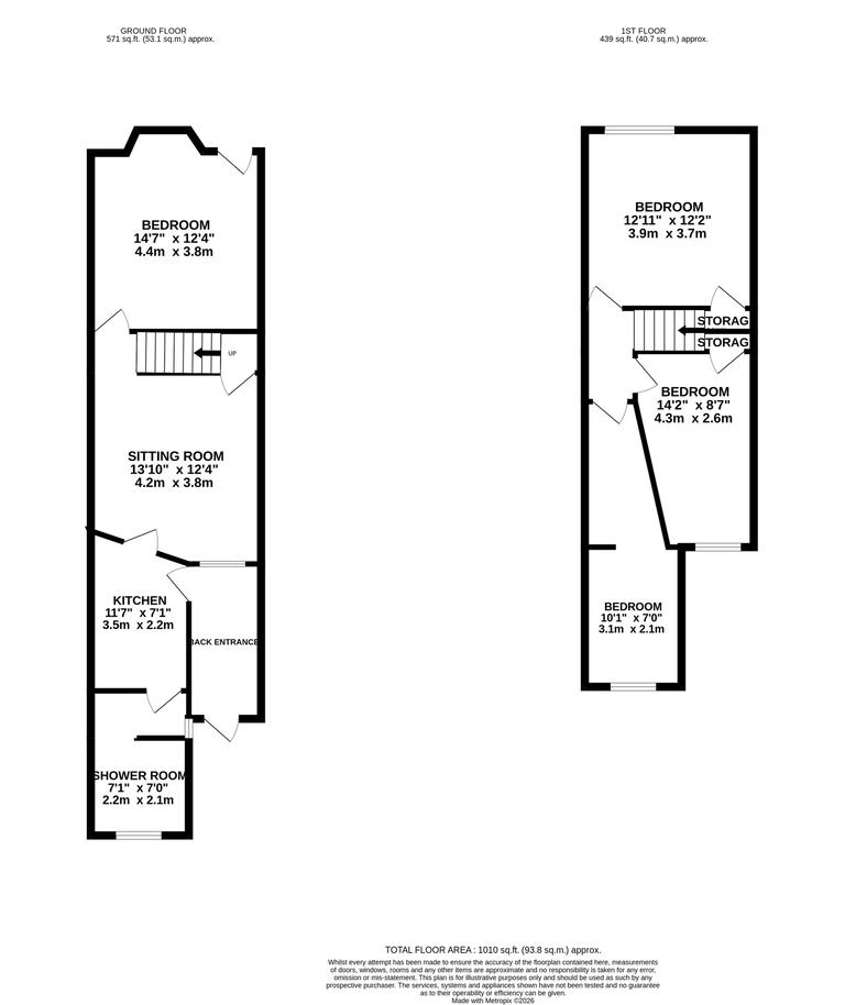
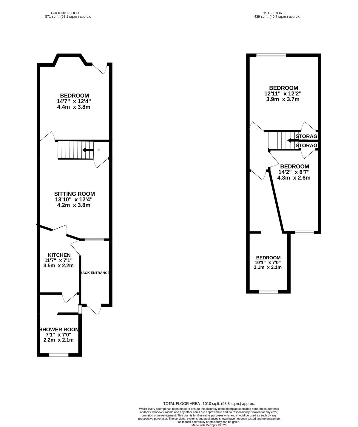
This fully furnished three bed property is situated in the heart of the Golden Triangle and is in a great location for local amenities including; Tesco extra, Co-op, local green grocers, newsagents and some great pubs and restaurants. Although the property is ideal for commuters wishing to get the 25/25a bus, it is just a 15 minute walk to the city centre and a 15 minute walk down the Avenues to the UEA.
The property offers one downstars bedroom, and two upstairs bedrooms, all furnished with students in mind. The property also has a living room, fully fitted modern kitchen including cooker and fridge freezer, bathroom with shower over the bath. The property has gas central heating, a rear porch entrance, small rear garden with shed and has on street parking.
Availability
EPC rating
An Energy Performance Certificate (EPC) tells you how energy efficient a property is.
The details shown about this property are part of a property advertisement. UniHomes does not guarantee the accuracy or completeness of the advertisement or any related information, and has no control over its content. The advertisement does not serve as official property particulars. The information is provided and maintained by the Letting Agent. Please contact the agent directly if you have any queries about the information provided in the advertisement.
Denbigh Road, Golden Triangle
- House
- with 3 bedrooms
- and 1 bathroom
Bills included
We take the stress out of student living. All student homes have bills included!£139 per person per week including bills
To arrange a viewing or find out more about this property .
If you need to contact the UniHomes Customer Service team because you haven't heard back from the letting agent following an enquiry (please allow 3 days) or any other reason call 0330 822 0266.
Please have the following reference number ready:
1714075655More property and tenancy information
Extra features
| Parking | Ask agent |
|---|---|
| Property accessibility | Ask agent |
Utilities and Council Tax
| Council Tax band Student exemptions may apply | Ask agent |
|---|---|
| Electricity supply | Ask agent |
| Water supply | Ask agent |
| Gas supply | Ask agent |
| Broadband | Ask agent |
Permitted payments and tenant information
Permitted payments
For properties in England, the Tenant Fees Act 2019 means that in addition to rent, lettings agents or landlords can only charge tenants the following payments associated with a tenancy:
- Holding deposits (a maximum of 1 week's rent);
- Deposits (a maximum deposit of 5 weeks' rent for annual rent below