Brook Road, Oldfield Park
House with 4 bedrooms and 1 bathroom
Available from 17th July 2026
Bills included
We take the stress out of student living. All student homes have bills included!Plans and tours
Key features
Close to amenities
rooms
1 bathroom
Gas central heating
Double glazed
Great location
Permit Parking
Double bedrooms
Bills included
Location
Description
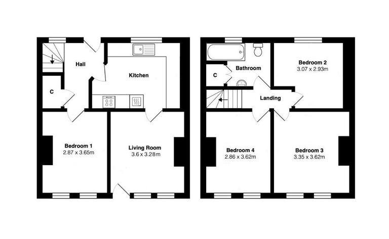
Situated close to Moorland Road local shops and Oldfield Park Train Station is this four double bedroomed student home.
On entering there is a lounge with a dining table for four. This leads through to the kitchen which is fully fitted with white goods. There is also a downstairs double bedroom to the front.
Upstairs there is the full bathroom and the remaining three double bedrooms.
Available 17th July 2026
It is a mandatory requirement for a Sales or Lettings Agent to be part of a redress scheme, we have membership with The Property Ombudsman (a government approved redress scheme).
It is a mandatory requirement for a Lettings Agent to be part of a Client Money Protection scheme, we have membership with PropertyMark (a government approved client money protection provider).
Permit Parking.
Availability
EPC rating
An Energy Performance Certificate (EPC) tells you how energy efficient a property is.
The details shown about this property are part of a property advertisement. UniHomes does not guarantee the accuracy or completeness of the advertisement or any related information, and has no control over its content. The advertisement does not serve as official property particulars. The information is provided and maintained by the Letting Agent. Please contact the agent directly if you have any queries about the information provided in the advertisement.
Brook Road, Oldfield Park
- House
- with 4 bedrooms
- and 1 bathroom
Bills included
We take the stress out of student living. All student homes have bills included!£222.15 per person per week including bills
To arrange a viewing or find out more about this property .
If you need to contact the UniHomes Customer Service team because you haven't heard back from the letting agent following an enquiry (please allow 3 days) or any other reason call 0330 822 0266.
Please have the following reference number ready:
1962567162More property and tenancy information
Extra features
| Parking | Permit only |
|---|---|
| Property accessibility | Ask agent |
Utilities and Council Tax
| Council Tax band Student exemptions may apply | Ask agent |
|---|---|
| Electricity supply | Ask agent |
| Water supply | Ask agent |
| Gas supply | Ask agent |
| Broadband | Ask agent |
Permitted payments and tenant information
Permitted payments
For properties in England, the Tenant Fees Act 2019 means that in addition to rent, lettings agents or landlords can only charge tenants the following payments associated with a tenancy:
- Holding deposits (a maximum of 1 week's rent);
- Deposits (a maximum deposit of 5 weeks' rent for annual rent below