North Park Avenue, Eaton
House with 6 bedrooms and 3 bathrooms
Available from 11th August 2026
Bills included
We take the stress out of student living. All student homes have bills included!Plans and tours
Key features
Modern fitted kitchen
3 bathrooms
Close to amenities
Great location
Double bedrooms
Modern interior
Driveway
Bills included
Location
Description
Welcome to North Park Avenue, Norwich! This fantastic student property is perfectly located just minutes from the University of East Anglia, making it the ideal home for a group of students looking for comfort and convenience.
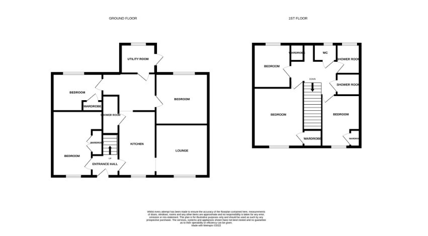
Six Good-Sized Bedrooms: Each room is bright, fully furnished, and perfect for studying and relaxing.
Large Communal Living Space: A cosy lounge area for socialising, movie nights or unwinding after classes.
Modern Kitchen: Equipped with ample storage, 2 x fridge-freezer, washing machine and tumble dryer, and other essential appliances.
Three Bathrooms: Conveniently designed for shared living, with modern fixtures and plenty of space.
Private Garden: A low-maintenance outdoor space, perfect for relaxing or hosting barbecues.
Off-Street Parking: Driveway and additional on-street parking available.
Prime Location for Students:
Situated in the sought-after NR4 area, this property is just a short walk or bike ride to the University of East Anglia campus. It’s also close to local shops, cafes, and public transport links, with easy access to Norwich city centre for shopping, dining, and entertainment.
Availability
EPC rating
An Energy Performance Certificate (EPC) tells you how energy efficient a property is.
The details shown about this property are part of a property advertisement. UniHomes does not guarantee the accuracy or completeness of the advertisement or any related information, and has no control over its content. The advertisement does not serve as official property particulars. The information is provided and maintained by the Letting Agent. Please contact the agent directly if you have any queries about the information provided in the advertisement.
North Park Avenue, Eaton
- House
- with 6 bedrooms
- and 3 bathrooms
Bills included
We take the stress out of student living. All student homes have bills included!£131.32 per person per week including bills
To arrange a viewing or find out more about this property .
If you need to contact the UniHomes Customer Service team because you haven't heard back from the letting agent following an enquiry (please allow 3 days) or any other reason call 0330 822 0266.
Please have the following reference number ready:
51631959More property and tenancy information
Extra features
| Parking | driveway |
|---|---|
| Property accessibility | Ask agent |
Utilities and Council Tax
| Council Tax band Student exemptions may apply | Ask agent |
|---|---|
| Electricity supply | Ask agent |
| Water supply | Ask agent |
| Gas supply | Ask agent |
| Broadband | Ask agent |
Tenancy information
Permitted payments and tenant information
Permitted payments
For properties in England, the Tenant Fees Act 2019 means that in addition to rent, lettings agents or landlords can only charge tenants the following payments associated with a tenancy:
- Holding deposits (a maximum of 1 week's rent);
- Deposits (a maximum deposit of 5 weeks' rent for annual rent below £50,000);
- Payments to change a tenancy agreement eg. change of sharer (capped at £50 or any reasonable costs);
- Payments associated with early termination of a tenancy (capped at the landlord's loss or the agent's reasonably incurred costs);
- Utilities, communication services e.g. gas, electricity, internet. TV licence and council tax.
- Interest payments for the late payment of rent (up to 3% above Bank of England's annual percentage rate);
- Reasonable costs for replacement of lost keys or other security devices;
- Contractual damages in the event of the tenant's default of a tenancy agreement; and
- Any other permitted payments under the Tenant Fees Act 2019.
Tenant information
In addition to publishing relevant fees, lettings agents are also required to publish details of:
- the redress scheme they are a member of; and
- the name of the approved or designated Client Money Protection scheme they are a member of (if any).