Highland Road, Golden Triangle
House with 4 bedrooms and 1 bathroom
Available from 14th August 2026
Bills included
We take the stress out of student living. All student homes have bills included!Plans and tours
Key features
Rear garden
Gas central heating
Double glazing
Fully furnished
Bills included
Location
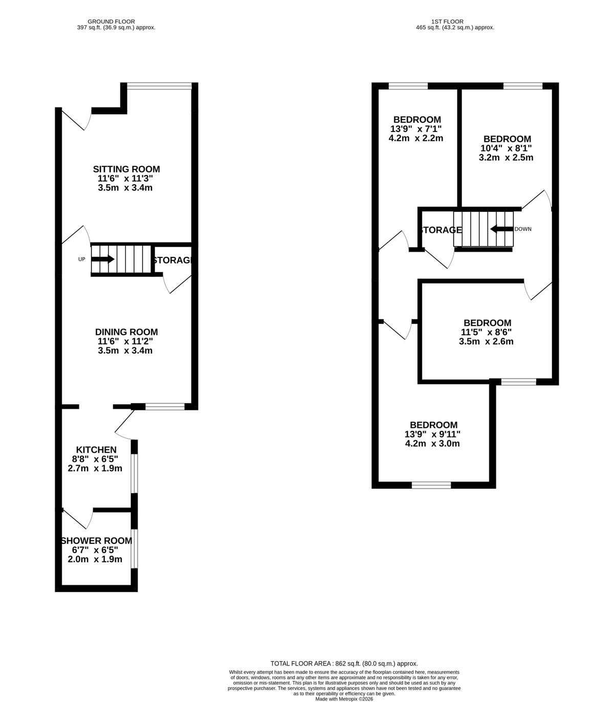
Description
Highland Road is a tree lined street located just off Christchurch road; a popular area students. It is within walking distance of the hustle and bustle of Unthank Road and the serenity of Eton park. There are regular bus services operating nearby which run between UEA and Norwich City centre. If you have a car, this property is located in a non permit parking area.
The property benefits from a front door entrance into a good sized living space that comes with sofas and a coffee table. Beyond the living room there is a sizeable dining room which adjoins the kitchen, and includes worktop and cupboard space and a full size fridge freezer. The bathroom is just behind the kitchen, and features a shower over bath. All bedupstairs and all are a similar size. They each come with a double bed, desk, and clothes storage. There is a small garden to the rear where clothes can be hung out to dry and bikes can be stored.
Availability
EPC rating
An Energy Performance Certificate (EPC) tells you how energy efficient a property is.
The details shown about this property are part of a property advertisement. UniHomes does not guarantee the accuracy or completeness of the advertisement or any related information, and has no control over its content. The advertisement does not serve as official property particulars. The information is provided and maintained by the Letting Agent. Please contact the agent directly if you have any queries about the information provided in the advertisement.
Highland Road, Golden Triangle
- House
- with 4 bedrooms
- and 1 bathroom
Bills included
We take the stress out of student living. All student homes have bills included!£119 per person per week including bills
To arrange a viewing or find out more about this property .
If you need to contact the UniHomes Customer Service team because you haven't heard back from the letting agent following an enquiry (please allow 3 days) or any other reason call 0330 822 0266.
Please have the following reference number ready:
863908703More property and tenancy information
Extra features
| Parking | Ask agent |
|---|---|
| Property accessibility | Ask agent |
Utilities and Council Tax
| Council Tax band Student exemptions may apply | Ask agent |
|---|---|
| Electricity supply | Ask agent |
| Water supply | Ask agent |
| Gas supply | Ask agent |
| Broadband | Ask agent |
Permitted payments and tenant information
Permitted payments
For properties in England, the Tenant Fees Act 2019 means that in addition to rent, lettings agents or landlords can only charge tenants the following payments associated with a tenancy:
- Holding deposits (a maximum of 1 week's rent);
- Deposits (a maximum deposit of 5 weeks' rent for annual rent below