Buckler Road, Summertown
House with 3 bedrooms and 1 bathroom
Available from 2nd September 2026
Bills included
We take the stress out of student living. All student homes have bills included!Plans and tours
Key features
Three Bedroom HMO
Sitting/Dining Room
Modern Kitchen
Good Size Front Garden
Large Rear Garden
Easy Access to Summertown and City Centre
Bills included
Location
Description
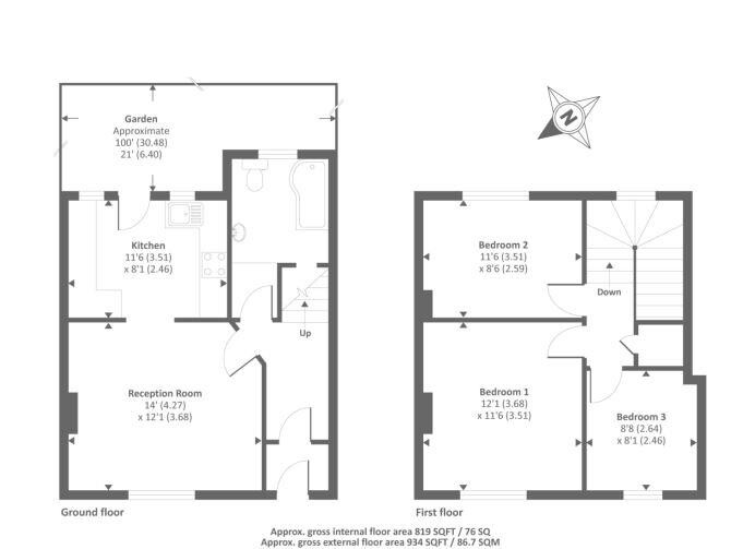
Three bedroom HMO licensed property available in North Oxford.
The property consists of an enclosed porch, entrance hall, sitting/dining room, kitchen, bathroom on the ground floor and three bedrooms on the first floor. There is a large rear garden and a shed to the rear aspect and a good size garden to the front aspect. The property benefits from double glazing.
Buckler Road is well placed for all the amenities in Summertown and Wolvercote which has a thriving weekly farmers market and popular gastropubs. There is also a nearby and frequent bus service to the City Centre. It is close to Oxford Parkway rail station for services to London Marylebone in 60 minutes and there is easy access to A34.
Notice
All photographs are provided for guidance only.
Redress scheme provided by: The Property Ombudsman (D03165)
Council Tax
Oxford City Council, Band C
Utilities
Electric: Mains Supply
Gas: None
Water: Mains Supply
Sewerage: None
Broadband: None
Telephone: Landline
Other Items
Heating: Electric Heaters
Garden/Outside Space: Yes
Parking: No
Garage: No.
Availability
EPC rating
An Energy Performance Certificate (EPC) tells you how energy efficient a property is.
The details shown about this property are part of a property advertisement. UniHomes does not guarantee the accuracy or completeness of the advertisement or any related information, and has no control over its content. The advertisement does not serve as official property particulars. The information is provided and maintained by the Letting Agent. Please contact the agent directly if you have any queries about the information provided in the advertisement.
Buckler Road, Summertown
- House
- with 3 bedrooms
- and 1 bathroom
Bills included
We take the stress out of student living. All student homes have bills included!£199 per person per week including bills
To arrange a viewing or find out more about this property .
If you need to contact the UniHomes Customer Service team because you haven't heard back from the letting agent following an enquiry (please allow 3 days) or any other reason call 0330 822 0266.
Please have the following reference number ready:
1845161971More property and tenancy information
Extra features
| Parking | Ask agent |
|---|---|
| Property accessibility | Ask agent |
Utilities and Council Tax
| Council Tax band Student exemptions may apply | Ask agent |
|---|---|
| Electricity supply | Ask agent |
| Water supply | Ask agent |
| Gas supply | Ask agent |
| Broadband | Ask agent |
Tenancy information
Permitted payments and tenant information
Permitted payments
For properties in England, the Tenant Fees Act 2019 means that in addition to rent, lettings agents or landlords can only charge tenants the following payments associated with a tenancy:
- Holding deposits (a maximum of 1 week's rent);
- Deposits (a maximum deposit of 5 weeks' rent for annual rent below £50,000);
- Payments to change a tenancy agreement eg. change of sharer (capped at £50 or any reasonable costs);
- Payments associated with early termination of a tenancy (capped at the landlord's loss or the agent's reasonably incurred costs);
- Utilities, communication services e.g. gas, electricity, internet. TV licence and council tax.
- Interest payments for the late payment of rent (up to 3% above Bank of England's annual percentage rate);
- Reasonable costs for replacement of lost keys or other security devices;
- Contractual damages in the event of the tenant's default of a tenancy agreement; and
- Any other permitted payments under the Tenant Fees Act 2019.
Tenant information
In addition to publishing relevant fees, lettings agents are also required to publish details of:
- the redress scheme they are a member of; and
- the name of the approved or designated Client Money Protection scheme they are a member of (if any).